查看完整案例

收藏

下载
Традиционный семейный дом в теплой палитре Трехэтажный загородный дом в поселке Дубровка
Автор проекта: Мельникова Маргарита
Соавтор(ы): Высоцкая Кристина
Объект: Традиционный семейный дом в теплой палитре
Общая площадь: 340 кв.м.
Уникальные характеристики обьекта: семейный дом с теплой атмосферой, природная палитра с теплыми оттенками, обилие дерева, сочных акцентов, сложных орнаментов, авторские изделия из дерева
Главный вход. Небольшая полукруглая прихожая похожа на дачную веранду. Стены выкрашены в нежный фисташковый цвет стен, на полу – терракотовая плитка, которые добавляют радости и солнца. Кресла, Bungalows в ткани Carlucci di Chivasso. Бра, Hudson Valley Lighting.
Холл более спокойный и прохладный, чем прихожая. Из него можно попасть в кабинет, санузел, совмещенный с постирочной, и в общественную зону кухни и гостиной-столовой.
Традиционный дом с теплой атмосферой. Интерьер холла. Дверная фурнитура, поставщик EMPORIO.ru.
Общая гостиная. На стенах – обои из сизаля, Thibaut. Диван, Vanguard Furniture. Столики, Universal Explore Home. Комод Bernhardt. Журнальный столик-пуф сделан на заказ. Кресло, Lexington в ткани Kravet Couture. Кресло, Theodore Alexander. Банкетка в ткани Clarke & Clarke сделана на заказ. Торшер, Wildwood Lamps. Шторы, Jim Thompson.
Дом в американском стиле с теплой палитрой. Интерьер гостиной.
Кухня. В доме чаще всего готовит супруг, поэтому кухня сделана строгой и лаконичной. Кухонная мебель, Albero Arte. Барные стулья, Lexington в ткани RM Coco. Массивная плита Smeg и брутальная вытяжка придают помещению мужской характер.
Столовая в общей гостиной. Стол сделан на заказ. Стулья, American Drew. Кресла, Bernhardt в ткани Robert Allen. Светильник, Paul Ferrante. Шторы, Jim Thompson.
Традиционный дом для большой семьи в Подмосковье. Интерьер столовой.
Вид из столовой на кухню. Кресло в полоску, Bernhardt в ткани Robert Allen.
Кабинет дедушки находится на перовом этаже. Письменный стол сделан на заказ. Кресло, Hooker. Стеллаж, CTH/ Sherrill Occasional. Шторы, Pepe Penalver.
Кабинет дедушки. Обои в английском стиле, York Wallcoverings. Встроенная мебель сделана на заказ. Мебельная фурнитура, поставщик EMPORIO.ru.
Прихожая с выходом во внутренний двор задумана как комната для курения. Кресла, Guadarte в ткани Century Furniture. Столик, Hooker. Бра, Visual Comfort & Co. Стены оформлены декоративной штукатуркой. На полу – терракотовые клинкерные шестигранники.
Лестничный холл с традиционным дизайном. Ступени и перила – деревянные.
Лестница на второй этаж. На втором этаже расположены три спальни, игровая и комната для чтения.
Хозяйский блок включает спальню, отдельный санузел и гардеробную. Кровать с балдахином, Bernhardt в ткани Carlucci di Chivasso. Тумбы, Lexington. Настольные лампы, Wildwood Lamps.
Хозяйская гардеробная находится в полукруглом помещении над верандой первого этажа. Мебельная фурнитура, поставщик EMPORIO.ru.
Хозяйский санузел. На полу – метлахская плитка оливкового цвета с английским орнаментом. На стенах – бежевый глянцевый «кабанчик». Раковина, Villeroy & Boch.
Детская сына оформлена в морском стиле. Кровать и тумбы, Lexington. Пуфы, Universal Explore Home в ткани Sahco. Настольная лампа, Uttermost. Обои Anna French.
Спальня дочери-студентки с элементами ар-деко.
Традиционный дом для большой семьи в Подмосковье. Интерьер детской дочери.
Санузел на втором этаже. На стене глянцевая плитка-«кабанчик» нескольких оттенков бежевого. Раковина, Villeroy & Boch.
Ванная комната на втором этаже. Сантехника, Villeroy & Boch.
Чайная комната на втором этаже, она же полукруглая библиотека. Обои, York Wallcoverings. Кресла, Universal Explore Home в ткани Kravet Couture. Столик, Uttermost. Бра, Robert Abbey.
Игровая детская комната.
В игровой сочетаются разные принты: растительный на обоях и геометричный на обивке мягкой мебели и шторах. Дверная фурнитура, поставщик EMPORIO.ru.
Гостевая зона в мансарде. Низкий столик с креслами вокруг в общей зоне располагает к настольным играм и уютным домашним посиделкам.
Одна из двух гостевых спален в мансарде. Обои, Anna French. Кровать, Theodore Alexander. Лампа, Visual Comfort & Co.
Одна из двух гостевых спален в мансарде. Обои, Anna French. Кресло, Lexington в ткани Fabricut. Кресло, Bernhardt в ткани Fabricut. Столик, Lexington.
Вторая гостевая спальня в мансарде. Обои, Sanderson. Кровать изготовлена на заказ. Бра, Restoration Hardware.
Гостевой санузел с постирочной. Тумба и встроенные шкафы сделаны на заказ. Мебельная фурнитура, поставщик EMPORIO.ru. Бра, Visual Comfort & Co. Раковина, Villeroy & Boch.
План первого этажа трехэтажного дома в поселке Дубровка. Общая площадь – 340 кв. м.
План второго этажа трехэтажного дома в поселке Дубровка. Общая площадь – 340 кв. м.
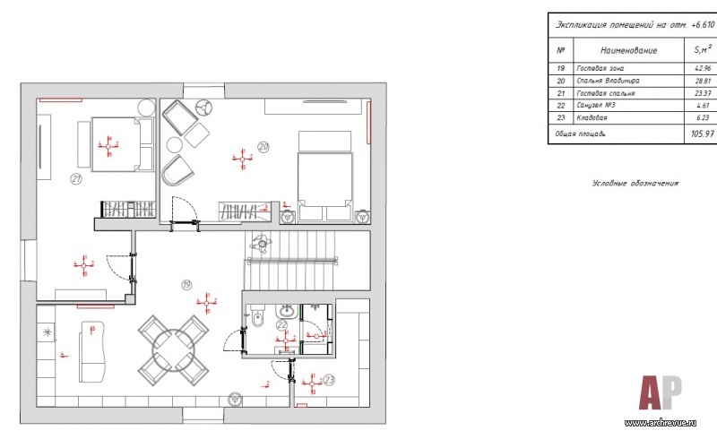
План третьего этажа трехэтажного дома в поселке Дубровка. Общая площадь – 340 кв. м.
Концепция
Этот оформленный дизайнерами Marion studio для большой и дружной семьи дом задумывался как любимая дача, наполненная теплом и уютом. Трехэтажный особняк с полукруглыми эркерами заказчики построили сами, семь лет жили в нем, пока не решили, что пришло время обновить инженерные системы и полностью переделать интерьер с помощью специалистов. Но к серьезной реконструкции, глобальной перепланировке и затяжному ремонту они готовы не были, поэтому задачу поставили сделать все с минимальным вмешательством в конструктив.
Стилистику выбрали традиционную, американская классика как нельзя лучше подошла для создания семейного дома с расслабленной атмосферой, без пафоса и излишней вычурности.
Планировка
Дом имеет несколько планировочных особенностей. Во-первых, входная группа состоит из двух помещений: небольшой полукруглой прихожей, которая напоминает веранду дачного дома, и просторного холла с красивой анфиладой, соединяющей с общими помещениями первого этажа. Во-вторых, организованная при входе постирочная имеет большую площадь, окно и выполняет функцию гостевого санузла: светлого и парадного. В-третьих, при выходе во внутренний двор, есть небольшая терраса, которая задумана как курительная.
На втором этаже расположены три спальни, игровая и комната для чтения. В мансарде третьего этажа сделана гостевая зона с комнатой отдыха (здесь удобно играть в настольные игры), санузлом и двумя спальнями. В целом при организации пространства и зонировании дизайнеры учли и общие помещения, где удобно собираться всей семьей, и личные пространства, чтобы можно было уединиться, найти свой уголок.
Декор
Дом оформлен в традиционном ключе, атмосфера в нем создана спокойная и очень дружелюбная. Здесь приятно скрыться от суеты большого города, собраться вместе с близкими людьми, поиграть с собакой. Тепло и уют обеспечивают природные фактуры и натуральные, летние оттенки солнца, неба, земли. В интерьере много дерева, разных фактур и орнаментов: к слову, практически вся мебель была создана с использованием оригинальных тканей американских и европейский брендов.
В общих помещениях использованы обои из сизаля с приятной тактильной текстурой. На полах – деревянный паркет, метлахская плитка или клинкерная мозаика. Фон помещений – теплый, солнечный, а детали сочные, насыщенные по цвету и рисунку, что вместе создает настроение радости, какое бывает в детстве на бабушкиной даче.
Комплектация объекта
Строительные и отделочные материалы и изделия
Изделия из дерева, панели-буазери, двери, компания «Мебель-Интерьер-Сервис»
Обои, Thibaut, York Wallcoverings, Colefax & Fowler, Anna French, Sanderson
Дверная и мебельная фурнитура Buster + Punch, Turnstyle Designs, Colombo Design (коллекция Antologhia), Salice Paolo, Enrico Cassina, Galbusera, поставщик EMPORIO.ru
Плитка Self Style, Ceramiche Grazia, Original Style
Свет Wildwood Lamps, Hudson Valley Lighting, Paul Ferrante, Robert Abbey, Visual Comfort & Co, Uttermost, Currey & Company, Restoration Hardware
Ковры, поставщик Art de Vivre
Постельное белье, поставщик Amalia Home Collection
Искусственные цветы, декор Don Maison
Вазы, поставщики «4Сeramics», Redecoration, Zara Home, RetroNord
Аксессуары, поставщик Moon stores
Сервировка стола сервиз, поставщик «Дом Фарфора»; вазы Zara Home; посуда Don Maison; подставки под посуду Truffle Bee (коллекция Etretat)
Шторы на подкладке, Jim Thompson, Pepe Penalver, Espocada, «Галерея Арбен»
Сантехника Villeroy & Boch
Мебель
Прихожая кресла Guadarte в ткани Century Furniture, столик Hooker, кресла Bungalows в ткани Carlucci di Chivasso
Гостиная диван Vanguard Furniture, столики Universal Explore Home, комод Bernhardt; журнальный столик-пуф сделан на заказ; кресло Lexington в ткани Kravet Couture, кресло Theodore Alexander; банкетка в ткани Clarke & Clarke сделана на заказ
Кухня Albero Arte, стулья Lexington в ткани RM Coco
Столовая стулья American Drew, кресло Bernhardt в ткани Robert Abbey; стол сделан на заказ
Комната для чтения кресла Universal Explore Home в ткани Kravet Couture, столик Uttermost
Кабинет стол сделан на заказ, кресло Hooker, стеллаж CTH/ Sherrill Occasional
Главная спальня кровать Bernhardt в ткани Carlucci di Chivasso, тумбы Lexington, кресла и столик Bungalows
Гостевая спальня на мансардном этаже кровать Theodore Alexander, кресло Lexington в ткани Fabricut, кресло Bernhardt в ткани Fabricut, столик Lexington
Детская сына кровать и тумбы Lexington, пуфы Universal Explore Home в ткани Sahco
Оборудование
Оборудование кухни Smeg
Фотограф: Сергей Красюк
Стилист: Дарья Соболева
客服
消息
收藏
下载
最近




































