查看完整案例

收藏

下载
זרקור על אדריכל: משרד הבוטיק של רז מלמד
זרקור על אדריכל: משרד הבוטיק של רז מלמד
אדריכל רז מלמד הקים את משרדו לפני כשש שנים, לאחר שצבר ניסיון במשך כמעט שני עשורים, במספר משרדי אדריכלים מהמובילים בארץ, בראשם פיצו קדם, עודד חלף, רמי גיל ועוד. העבודות שבוחר מלמד לבצע, הן תמיד מיוחדות ומיועדות לדיירים אנינים המבקשים בית בסגנון מודרני, נקי, מינימליסטי, ועם זאת מזמין, חמים ופרקטי בהתאם לצרכיהם. בחרנו להביא ולהאיר בזרקור שלוש מעבודות המשרד.
בשש השנים מאז שהוקם (2016), תכנן ומתכנן משרדו של מלמד, בתים פרטיים בכל רחבי הארץ, פנטהאוזים מיוחדים בראשי המגדלים או בבניינים חדשים, בעיקר בתל אביב וגם בתי מגורים בפרויקטים לשימור בעיר.
המשרד עובד בשיתוף פעולה עם היועצים המובילים בענף, ונעזר בשירותיהם של ספקים וקבלנים מהשורה הראשונה בלבד. הבתים שמתכנן המשרד מתפרסמים במגזינים ואתרי עיצוב ואדריכלות בארץ ובעולם כולו.
צוות המשרד: רעות נחמיאס סבן, ענת פנחס, ניב יושע ורז מלמד.
חוות נופש בשרון
כשאדריכלות העבר מתוכננת להווה וצופה לעתיד – תיאור מושלם לפרויקט שתכנן אדריכל רז מלמד, ללקוחה שהסבה את בית ילדותה למתחם נופש משפחתי.
הסיפור של שטח הבית מתחיל לפני שנים רבות במושב עם צריף, לול ורפת, מוקפים בעצים שנטעה מי שעומדת בראש המשפחה – היום הסבתא ואז ילדה שהתגוררה עם הוריה בסביבה פסטורלית.
השנים חלפו והקורונה הביאה גם סגר וגם התאחדות משפחתית והסבתא החליטה לנצל לטובה את המצב ולתכנן את השטח הישן לאיחוד בני משפחה בתקופה הזו. בהמשך, החיים חזרו למסלולם והיום המתחם משמש לריטריט משפחתי בסופי השבוע.
בעת בה האדריכל קיבל את המגרש לידיו היה ברור שמדובר בפרויקט עמוס נוסטלגיה, שהגיע עם בקשות תכנון לאירוח מפנק למשפחה ולפינוק הנכדים, בצורת בריכה ופינת טלוויזיה מהנה. בנוסף התבקש האדריכל לעצב מטבח חוץ לאירוח על שפת הבריכה, לה אף הוסיף ויצר אזור למדורה לחוויה ארץ ישראלית לצלות תפוחי אדמה ממש "כמו פעם".
בפועל, מלמד שימר את הגיאומטריה המקורית של המגרש, ובו בזמן יצק ניראות עכשווית ליסודות הרעועים. בעוד שמבנה הבית הראשי היה יכול לעבור שיפוץ, הרי ששאר המבנים היו רקובים מן היסוד, והיה צריך לטפל בהם ביחס מוקפד.
בשלב ההתחלתי הקבלן מילא אדמה ויצר גובה אחיד ליצר הרמוניה בין המבנים השונים. בהמשך פורקו הגגות הישנים וחוזקו באמצעות קורות עץ קונסטרוקטיביות, שנצבעו לבן ליצירת קלילות בחלל, ממש כמו כלל הקירות. נפרשו עליהם גגות משופעים, כשאת הרעפים האדומות המסורתיות החליפו רעפי בטון בצבעוניות אפורה ומודרנית לכל אחד מהבתים. תכנון המתחם מאפשר פרטיות לכל אחד מהמתארחים, ובמקביל יוצר תחושת ביחד בזכות העובדה שכל החדרים צופים לבריכה המרכזית המאגדת את כולם.
שער הכניסה מוליך לבית המרכזי בשביל מדרכי בטון, שמרצפים גם את פנים הבית. הכניסה היא תחת קשת, אלמנט אדריכלי שהיה סימן ההיכר של הבית כל השנים, כשהאדריכל שימר את צורת הקשת לבקשת הלקוחה, ונתן לה פרשנות עכשווית על ידי טיוחה, צביעתה בלבן, ושידוכה לגגון זכוכית. באופן זה יצר כניסה שמכניסה להווה דרך העבר, אדריכלית כמו גם מילולית.
הבית הראשי מכיל מטבח, סלון, סוויטה לסבתא ולסבא, חדר רחצה לאורחים ופינת טלוויזיה לנכדים, כשרקע נייטרלי של צבעוניות בגווני לבן-שחור-אפור הוא התפאורה להתרחשות המשפחתית. לעומתה, צבעוניות משמחת הוקדשה לפינת הנכדים, וריהוט צהוב וכתום מכניס שמחה וזכרונות ילדות.
המטבח מינימלי ופונקציונלי, נעדר ידיות, ובנוי נגרות לבנה כמו שאר נגרות הבית. שולחן אוכל לבן במרכזו, וסביבו כסאות בשחור ומוקה, שחוזרים על צבעוניות הכורסאות של הסלון. כורסאות אלה עשויות עץ ומכניסות חמימות, כמו גם הספה הבהירה, שמאחוריה קיר נגרות לבן המסתיר את יחידת ההורים. נגרות זו גם מחביאה ארון שירות וג’טים למיזוג.
את האורחים משמש חדר רחצה שניכר גם בו הקו הנקי: בטון מוחלק יוצר אדנית שתחומה בזכוכית מוטמעת בקיר, לצד נגרות לבנה ואביזרי סניטריה באותו הצבע.
סובבים את המבנה מפתחי חלונות שהורחבו והולבשו באלומיניום שחור ברוח התקופה. היציאה מהם לכיוון מטבח החוץ שעשוי מתכת מחופה משטח בטון, שחוזר על חומריות הריצוף. לצידו יחס מיוחד ניתן לעבר בצורת העץ המרכזי שמקושט בתאורה ועבר שימור, זכר לימים עברו, ולשורשים שנטועים בקרקע, תרתי משמע.
השביל המוליך ממנו מגיע לחדר אירוח ראשון, שהיה לול תרנגולות בעברו, ותוכנן כסוויטה. צמודה לו מבנה שמכיל 2 סוויטות, שהיו בעברן רפת, עם חניה שצמודה לה המאפשרת פרטיות מלאה למתארחים ולאורחים. לידה נשתלו גינת תבלינים, כשהבריכה מוקפת בעצי שנשתלו בערוגות שנגרעו בבטון לפי גריד הבריכה. ריהוט החוץ אוורירי, מחבר את העבר לימינו, ומתחבר לתפישה האדריכלית של מלמד שמדגישה קו נקי, ושימוש בחומרים בצורתם הטבעית, כדי ליצור רקע מעוצב לזכרונות החדשים שתיצור כאן המשפחה על 3 דורותיה.
לפני – ואחרי פתרונות אדריכליים בתכנון הבית
דלתות פלדלת מדגם מינימאל של רב בריח. ניתנת לשדרוג לדלת חכמה נשלטת ע"י אפליקציה, טביעת אצבע או קודן. עמידה בתנאי חוץ – צביעה אלקטרוסטטית. הקישו על התמונה לקבלת פרטים נוספים.
דלתות פנים וחוץ של רב בריח
בעלת בית בשרון, שהיה בית משק חקלאי צנוע, ביקשה לשפץ את הצריפים הישנים ולהפוך את המקום לבית נופש לילדים ולנכדים. כך, הפרויקט הוא בעצם תכנון מחדש של מספר מבנים קיימים ושיפוצם ליחידת נופש למשפחה אחת.
לבית המשופץ תוכננו דלת כניסה ראשית לכל יחידה ודלתות פנים, בעיצוב מודרני ונקי. אדריכל רז מלמד פנה לרב-בריח כבר בשלב התכנון המוקדם, כמעט באופן אוטומטי, בעקבות ניסיון קודם של עבודה משותפת ובשל היכולת שלהם לשילוב בין דלתות הכניסה ודלתות הפנים.
במשותף עם האדריכל נבחרה דלת כניסה בגוון שחור 9005, בעיצוב מודרני ונקי, עם ידית בגוון תואם, כל זה בצורה המשתלבת עם דלתות הפנים – שהן בגמר צבע, חלקות, בגובה 240 ס"מ, עם צירים נסתרים, כשאפילו הידיות אשר בהן, נצבעו בגוון שחור הזהה לדלתות הכניסה.
דלתות פלדלת מדגם מינימאל של רב בריח. ניתנת לשדרוג לדלת חכמה נשלטת ע"י אפליקציה, טביעת אצבע או קודן. עמידה בתנאי חוץ – צביעה אלקטרוסטטית. הקישו על התמונה לקבלת פרטים נוספים.
תכנון וביצוע מערכות מיזוג אוויר – קרור ספיר
התקנת מערכות המיזוג בבתי יוקרה, דורשת תכנון קפדני מוקדם, אשר יענה על הדרישות האקלימיות, לצד אסתטיקה בלתי מתפשרת. לכן גם בפרויקט זה, בר אדריכל רז מלמד בחברת ספיר קרור מערכות, אשר ביצעה בשלב הראשון את התכנון, אשר היא מאמינה כי הוא הדבר העיקרי והחשוב ביותר, אשר יבטיח ביצוע נכון של המערכות.
בתכנון היסודי והקפדני, נסגרו כל הפרטים הגדולים והקטנים, בו יושמו דרישות האדריכל לצד הפתרונות המקצועיים שידע צוות ספיר המיומן ללוות אותן. מלמד, כמו כל אדריכל בעל מעוף ורעיונות לא שיגרתים, חייב בבעלי מקצוע שיודע לתת גב מקצועי שיאפשרו את אותם רעיונות. זאת, כמובן, לאחר בחירת פתרונות המיזוג המתאימים, לפי המלצת בעל המקצוע ותכנית שילובה על ידי האדריכל.
בהסתמך על התכנון, נתנה ספיר לפרויקט את הביצוע והתקנת מערכות המיזוג, באיכות הכי גבוהה, איתה היא מזוהה – ביצוע כל תשתיות מיזוג האוויר VRS, ביצוע השלב הסופי והגמרים, ביצוע תריסים פינתיים מרותכים, בכל צורה וצבע וסגנון שביקש האדריכל, כיאה לאסתטיקה של מתחם שהוא סוג של בית נופש.
חברת "קירור ספיר מערכות מ"א בע"מ", פועלת משנת 1995 והיא מתמחה בתכנון וביצוע מערכות מיזוג אוויר מתקדמות בשיטת VRF ו- VRV. החברה מתמקדת בפרויקטים יוקרתיים וייחודיים למגזר הפרטי והעסקי והיא עובדת עם מיטב האדריכלים והקבלנים המובילים בארץ. בתחום זה היא רכשה מוניטין רב באיכות ובשרות, שהביא לכך ששם החברה הפך לסמל איכות, אמינות ויוקרה.
ספיר Sapir מערכות קירור. טלפון 04 - 6221085, 054 - 2553446
דלת פנים מסדרת TOP צבע לבן צחור של רב בריח. עמידה במים, בעלת בידוד אקוסטי, במגוון צבעים וניתנת לשדרוג. הקישו על התמונה לפרטים נוספים
בית בשרון
מיקום: נחלה במושב בשרון
שטח מיועד למגורים 2.5 דונם.
שטח בנוי: 180 מ"ר בשלושה מבנים.
קרדיטים
דלתות חוץ ופנים: רב בריח
שטיחים: Gan rugs
ספה: MDT italia
כורסאות: knoll
ספה כתומה: mutto
כורסא צהובה: poliform
ריהוט: knoll, living divani, gloster
פנטהאוז בלב תל אביב
הבריכה התכולה והצמחייה שמתנופפת ברוח העירונית, הופכים את דירת הגג בתל אביב לפינת חמד שמשקיפה על נוף אורבני אפור, שכולו שירה לעיר הסואנת.
הדירה תוכננה לזוג עם 3 בנות וכלב שביקשו לעצמם בית עם בריכה ובנוסף מטבח חוץ גדול, פינת אירוח וג’קוזי לאירוח מושלם. גם פרטיות החדרים הייתה חשובה לצד חדרי רחצה מוצנעים ואישיים.
אדריכל רז מלמד קיבל את המשימה כשהבניין היה בשלב הבנייה. בשיתוף פעולה עם אדריכל הבניין נעשו שינויים מבניים בעמודים וקירות, לרבות תכנון האלומיניום ייחודי והכנת התשתיות עבורו.
האתגר הגדול של מלמד היה אדריכלות הקומה שסובבת סביב גרעין הבניין, המדרגות והמעליות. המתווה הזה יצר מצב שבו אין חלל אחד מרכזי ולכן החלוקה צריכה להיות מוקפדת ויצירתית. כפתרון, האדריכל חילק את הקומה למרחב ציבורי ופרטי שניצבים זה מול זה.
בכל פרויקט של מלמד בולט קו נקי הן בתכנון והן בחומרים והריהוט. תפישה זו מופיעה במלוא הדרה גם כאן, כשלצד השקט החומרי והצבעוני מתקיימת אוירה ביתית קסומה ורגועה.
לבית 2 כניסות, לסלון ולמטבח, שמכניסות לחלל מרוצף אבן טבעית אפורה שממשיכה גם למרפסות.
מטבח מקבילים מחופה גוון גרפיט, כשחלקו הגבוה מיועד לאחסון ומסתיר משטחי עבודה פרקטיים. למולם אי עצום המחופה גרניט שחורה במראה מרחף ומשמש לעבודה וישיבה. את אורכו מדגישה תאורה שנתלתה בסימטריה מושלמת למרכז החלון הצופה לנוף, מהלך תכנוני שיושם עוד בשלב השלד, בו הוויטרינות והחלונות תוכננו כנגזרת של גובה המטבח ליצירת הרמוניה.
חזית המטבח מסתובבת לכיוון החדרים וממשיכה עד הקצה השני של הבית. הוטמעו בה דלתות לחדרי השירות והשינה, שיוצרות קשר חזק בין המרחבים, ובמקביל יוצרות פרטיות.
בסמוך למטבח יושבת פינת האוכל שסביבה כסאות דקיקים המשחקים בצבעוניות שחור-לבן-אפור, וחוזרים גם במרפסת. השולחן מחופה פלטה שחורה דקה כמו האי, אך כאן עשויה עץ שמכניס חמימות. היא מתקשטת בתאורה מרהיבה שצורתה המתפתלת מזכירה את העץ שמולה במרפסת.
פסי תאורה אורכיים יוצרים המשכיות בתקרת הבית ואף מושכים את המבט לכיוון הסלון והבריכה, כמו גם הספרייה האורכית. זו בנויה מפורניר לרכות וחמימות ומחופה מתכת שחורה שמסתירה מיזוג, ועליה מדפים דקים לאקססוריז ולהבלטת הקו העיצובי הדק. למולה שטיח אפור שמגדיר את הסלון – הריהוט מקבץ את צבעוניות הבית ועומד על רגליים, אלמנט שהאדריכל אוהב שמייצר מרחב וחושף מקסימום.
מהסלון נפתחת פרגולה שחורה להגנה מגשם ולהצללה ונתון בה מקרן לערבי קולנוע בחוץ.
מדרגות לולייניות עטופות מעקה דק קונסטרוקטיבי מובילות מהבריכה לגג עם מטבח, ג’קוזי וטאבון לחוויית אירוח מושלמת.
סוויטת ההורים, ככל החלל הפרטי, מרוצפת פרקט נעים. החדר עוצב קו מינימליסטי ואין שום פריט, אפילו לא הטלוויזיה על העמוד, שמפריע להתרגעות מול הנוף. הדבר מתרחש בזכות ביטול עמוד קונסטרוקטיבי עוד בשלב הבנייה והפיכתו לעמוד ברזל עגול וצר שאיפשר זכוכית היקפית על 2 פאות החדר. לצד המראה הישיר לגינה, יש פרטיות אבסולוטית שכן לא רואים מהחדר את הסלון.
ארונות בנגרות לבנה ומינימליסטית מוארים בתאורה שקועה בהתאם למיתאר שלהם, ומסתירים את חדר הרחצה המפנק.
חדרי הילדות חוזרים על השפה העיצובית של הבית: מיטות על רגליים, שטיחים להוספת חמימות, ונגרות לבנה עם מדפים שעליהם אקססוריז צבעוניים.
התכנון המוקפד לצד החזרתיות על השפה העיצובית ממחישה שבפרויקט הזה, כמו תמיד, רז מלמד יצר המשכיות מושלמת בין המרחבים בזכות חוט מקשר באדריכלות, בחומריות, ובאלמנטים עיצובים שקושרים את הבית לחלל שלם והרמוני.
במרפסת גולת הכותרת של הבית – הבריכה. היא חפורה מטה בזכות חתך הבניין המדורג שאיפשר לייצר בריכה בקו 0. צורתה האורכית נהיית צרה ליד סוויטת ההורים שממש נושקת אליה ואפילו אפשר לקפוץ ממנה ישירות לתוך המים, ממש כמו בריזורט מפנק. תורמים למראה המעוצב חלוקי הנחל שמשמשים כתעלת גלישה, והצמחייה הנמוכה שמאפשרת מבט אל הנוף דרך מעקה הזכוכית.
דירת פנטהאוז
מיקום: מרכז תל אביב
שטח בנוי: 220 מ"ר, 5 חדרים. מרפסות: 100 מ"ר. מרפסת גג: 60 מ"ר.
צילום: עמית גרון
צילום אוויר: דורון סער
קרדיטים:
מטבח: Poliform varenna
תאורה: Mooooi davide groppi
ריהוט: Vitra. Living divani. Mdf italia. More. Lema
מצעים: Meira siton
שטיחים: josephone
אקססוריז: Christina dum. Bolia
תכנון וביצוע מערכות מיזוג אוויר – קרור ספיר
התקנת מערכות המיזוג בבתי יוקרה, דורשת תכנון קפדני מוקדם, אשר יענה על הדרישות האקלימיות, לצד אסתטיקה בלתי מתפשרת. לכן גם בפרויקט זה, בר אדריכל רז מלמד בחברת ספיר קרור מערכות, אשר ביצעה בשלב הראשון את התכנון, אשר היא מאמינה כי הוא הדבר העיקרי והחשוב ביותר, אשר יבטיח ביצוע נכון של המערכות.
בתכנון היסודי והקפדני, נסגרו כל הפרטים הגדולים והקטנים, בו יושמו דרישות האדריכל לצד הפתרונות המקצועיים שידע צוות ספיר המיומן ללוות אותן. מלמד, כמו כל אדריכל בעל מעוף ורעיונות לא שיגרתים, חייב בבעלי מקצוע שיודע לתת גב מקצועי שיאפשרו את אותם רעיונות. זאת, כמובן, לאחר בחירת פתרונות המיזוג המתאימים, לפי המלצת בעל המקצוע ותכנית שילובה על ידי האדריכל.
בהסתמך על התכנון, נתנה ספיר לפרויקט את הביצוע והתקנת מערכות המיזוג, באיכות הכי גבוהה, איתה היא מזוהה – ביצוע כל תשתיות מיזוג האוויר VRS, ביצוע השלב הסופי והגמרים, ביצוע תריסים פינתיים מרותכים, בכל צורה וצבע וסגנון שביקש האדריכל, כיאה לאסתטיקה של פנטהאוז יוקרתי. ספיר כדרכה ידעה לספק פתרונות יצירתיים, כמו ביצוע מערכות מיזוגVRF בתוך נגרות, או התקנת כל התשתיות מאחורי מסך טלוויזיה, כך שהן יהיו מוסתרות.
חברת "קירור ספיר מערכות מ"א בע"מ", פועלת משנת 1995 והיא מתמחה בתכנון וביצוע מערכות מיזוג אוויר מתקדמות בשיטת VRF ו- VRV. החברה מתמקדת בפרויקטים יוקרתיים וייחודיים למגזר הפרטי והעסקי והיא עובדת עם מיטב האדריכלים והקבלנים המובילים בארץ. בתחום זה היא רכשה מוניטין רב באיכות ובשרות, שהביא לכך ששם החברה הפך לסמל איכות, אמינות ויוקרה.
ספיר Sapir מערכות קירור. טלפון 04-6221085, 054-2553446
ממטה עיתון הארץ ועד משרד עורכי דין מוביל משרד עורכי דין גדול יכול להציג עיצוב ביתי ומזמין, שיוצר תחושה חמימה לכל עובד ואורח.
משרד שמעונוב ושות’ הינו משרד עורכי הדין המוביל והפעיל ביותר בישראל בתחום שוק ההון וניירות ערך ואחד ממשרדי הבוטיק האיכותיים והמובילים בישראל.
בראש ובראשונה המטרה הייתה יצירת חלל ביתי לעשרות עורכי דין ומתמחים, שיעמוד בניגוד לעוד חלל אורבני באחד המגדלים הגבוהים בעיר.
לשם כך זמן רב חיפשו מרחב אדריכלי הולם, כשלכל מהם נבחנה התאמתו לצרכיהם יחד עם האדריכל. הם התמקדו בבניינים לשימור, שהם בעלי חזות ייחודית ואופי נוסטלגי, מתוך רצון למצוא מעטפת מתאימה לאווירה בפנים – לא עוד משרד בקו חדשני וקריר, אלא עיצוב עכשווי ובועט שיוצר אינטימיות.
הנכס שנמצא הוא בניין משנות ה-30, בסגנון הבאוהאוס, שהיה בעבר מעונו של עיתון הארץ.
במקור הוא היה מחולק למשרדים שונים עם חלוקת הפנים שלא התאימה כלל, ואף השפה העיצובית הייתה רחוקה שנות אור מהחזון העיצובי. כיוון שכל השוכרים עזבו אותו באותה העת ניתן היה לתכנן את הבניין כולו:
השלב הראשון היה לפרק את כל הפנים בכפוף להנחיות השימור בעיר, שאוסרות לשנות חזית, כניסה, חלונות, מעקות וחדר המדרגות, בו נשאר הריצוף המקורי.
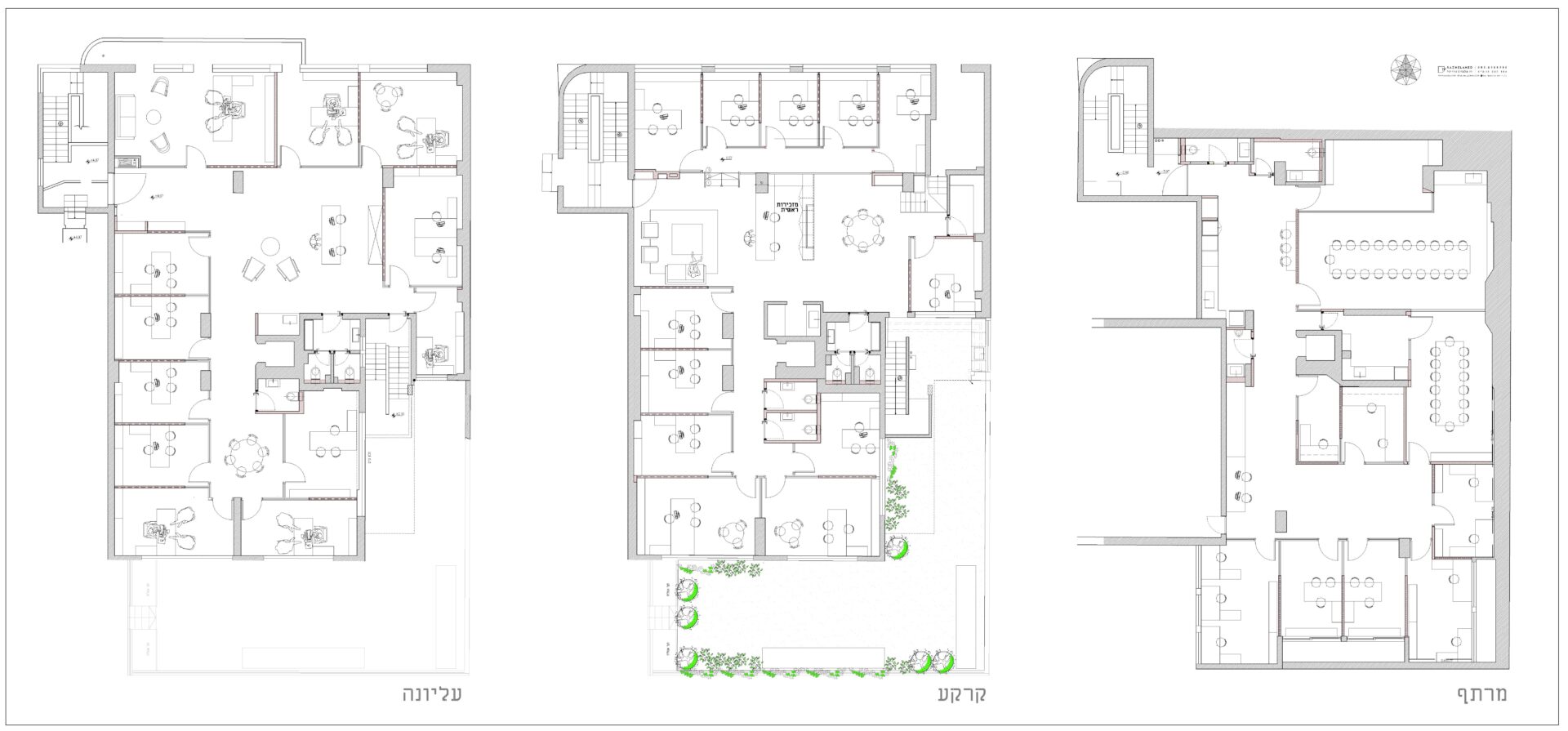
האתגר הגדול של מלמד היה לתכנן 3 קומות של 300 מ"ר כל אחת, כשבקומה ראשונה – מעט חלונות, משמע חסרים אור ואויר. הפתרון היה למקם בקומה זו חדרי עבודה גדולים לצוות המשרד, חדר ישיבות, אזורי אכילה ומטבח משותפים לכולם. הרעיון היה להימנע מחדרים קטנים ומריבוי מחיצות כדי להעביר אור טבעי ככל הניתן לכל המרחב.
כפתרון, במקום קירות מוקמו חציצות זכוכית אקוסטיות לכל הגובה להכנסת אור ויצירת מרחב וב-3 חדרי הישיבות קירות הזכוכית הופכים חלביים בלחיצת כפתור עבור פרטיות וסודיות.
אלמנט נוסף שעוזר לתחושת המרחב הוא השימוש במראות שמשקפות את האור בחוץ כלפי פנים המשרד.
בנוסף היה רצון להתייחס לקומה זו כחלק אינטגרלי מהמשרד ולכן תוכנן שם מטבח ואזור אכילה כך שבפועל כל העובדים מגיעים אליו. הוא עוצב בקו עכשווי בשילוב עם בידוד אקוסטי ששם דגש על פרטיות ויכולת ריכוז בעבודה. הרצפה היא מריחה אפורה לקלילות ובוהק שיחזק את מעט האור שנכנס מבחוץ, ועליה מוקמו גם מקררי גלידה ומשקאות לסביבה נעימה וכיפית.
קומות הקרקע והראשונה מחולקות למשרדים של ראשי המשרד והשותפים. האתגר הראשי היה ליצור פרטיות בהם בעוד שהם מקור האור למשרד כולו.
הפתרון תוכנן כמעברי אור מחלון עליון ודלת שיוצרים גיאומטריה מעניינת בחזית המקורית של הבניין עצמו: מפנים המשרד החלון יוצר פרטיות ומתחתיו מוסתרת פינת עבודה, הדלת מכניסה אור ואויר, כשלצידה פינת ישיבה לשיחה רגועה.
כהמשך לפתרון זה, גיאומטריית החלונות העליונים נשזרת כחוט השני ברחבי המשרד, ומכניסה אור כמו גם יוצרת פרטיות בחדרים הפנימיים.
התקרה חשופה והמערכות נראות לעין – המיזוג, התאורה, הצנרת, החשמל והגז- ממש לפי תפישת הבאוהאוס שגורסת שהיופי הוא הפונקציה- form follows function.
בין הצלעות הקונסטרוקטיביות יושם חומר אקוסטי למנוע הד, ופרקט מחפה את רצפת המשרדים להרגשת חמימות.
הריהוט הוא לא-פורמלי ומשודך לשטיחים בפינות המתנה שנראות כאירוח ביתי, ומעליהן תאורה יורדת שמגדירה אותן, ויוצרת תחושה אינטימית.
התפישה האדריכלית של מלמד מחזיקה באהבה לקו הנקי והמהונדס והכנסת צבע בצמחיה ובאומנות. בפרויקט הזה אוסף האומנות של הלקוחות מימש את הצבעוניות הזו בכל רחבי המשרד וענה לו על הצבעוניות שהוא אוהב לשלב. בנוסף, גרפיטי בפינה הישיבה בחוץ של האומנים הידועים brokenfingaz, זורק צבע ושובבות לרצינות שבפנים. זו יצירה שהוזמנה במיוחד, הוכנה בסטודיו ויושמה על גבי לוחות שמשמשים כגדר עם השכן. כאמור- העיצוב בשירות הפונקציה, כרפרנס לבאוהאוס שברוחו נבנה הבניין.
משרד עורכי דין
מיקום: רחוב מאז"ה תל אביב
שטח בנוי: 900 מ"ר ב 3 קומות. חצר: 100 מ"ר
צלם: עמית גרון
אחראית במשרד: ענת פנחס
קבלן ראשי: רום גבס
ניהול פרויקט: ע.ת.א מעוף פיתוח וניהול פרויקטים
לפני – ואחרי
客服
消息
收藏
下载
最近
























































