查看完整案例

收藏

下载
Công trình kiến trúc Đại học Maison du Savoir ở Luxembourg
Công trình kiến trúc Đại học Maison du Savoir ở Luxembourg
Theo các kiến trúc sư, Maison du Savoir là một công trình kiến trúc biểu tượng của tương lai và hồi tưởng về quá khứ. Đây là một trong những ngôi trường tâm điểm trong hệ thống trường đại học tại Luxembourg, được
thiết kế
và xây dựng bởi công ty kiến trúc Christian Bauer & Associés. Tòa nhà là một công trình
kiến trúc ấn tượng
, nổi bật rất dễ nhận ra từ xa.
Thiết kế trường Maison du savoir là một chiến thắng trong cuộc thi thiết kế quốc tế của Eberle baumschlager và công ty kiến trúc Christian Bauer & Associés.
Dự án được triển khai năm 2007 và chính thức được tiến hành xây dựng năm 2009.
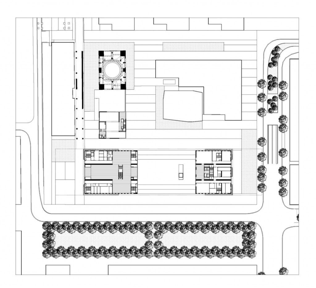
Công trình gồm có hai khối chính hình hộp chữ nhật xếp chồng lên nhau với các phòng chức năng như giảng đường, phòng hội thảo, phòng nghỉ giáo viên, phòng hành chính và hệ thống cơ sở vật chất phục vụ học tập và làm việc. Các công trình xung quanh đều là các viện nghiên cứu của trường.
Eberle baumschlager đã đưa ra
ý tưởng thiết kế
mặt tiền với hai lớp. Lớp bên trong là hệ thống tường bao che và lớp bên ngoài là khung thép với cấu trúc tổ ong giúp điều chỉnh ánh sáng chiếu vào công trình và tạo hiệu quả thẩm mĩ cho hình khối
kiến trúc công trình
.
Công trình xây dựng
sử dụng
kết cấu bê tông dự ứng lực
có khả năng chịu tải trọng lớn và có khẩu độ lớn. Khối tháp 18 tầng với
kiến trúc hiện đại
, đơn giản hài hòa với cảnh quan xung quanh, phù hợp với
quy hoạch
phát triến đô thị
, có sự kết nối cảnh quan với thư viện và tòa nhà ở phía nam.
Trong
thiết kế nội thất
, các
kiến trúc sư
đã cố gắng tạo ra các
không gian
linh động cho các mục đích sử dụng khác nhau. Các phòng học và phòng giáo viên được bố trí thành một mạng lưới tương ứng với mỗi mô-đun hình vuông như
ngoại thất công trình
.
Việc tiếp cận các tầng trên của tòa nhà qua hệ thống các cầu thang. Nó còn đóng vai trò như các giếng trời giúp lấy sáng và lưu thông không khí cho tòa nhà.
Trường cũng có một khuôn viên vườn riêng được
thiết kế
trên tầng 4, là nơi gặp gỡ giao lưu cho sinh viên, giáo viên, thúc đẩy hoạt động cộng đồng.
客服
消息
收藏
下载
最近












