查看完整案例

收藏

下载
古院更新:平江路“花容”茶饮空间改造设计 / 上海可空建筑设计工作室
古院更新:平江路“花容”茶饮空间改造设计 / 上海可空建筑设计工作室
庭院改造一览 摄影:薛亮
设计单位:上海可空建筑设计工作室
项目地点:江苏省苏州市
建成时间:2022年2月
建筑面积:200平方米
苏州平江路街口游船码头的对面,是一座始建于清代的传统建筑,两进建筑的两路檐廊围合出一个方正的传统庭院。它的总面积约200平方米,是平江路上少有的大院子。
改造后鸟瞰效果 摄影:薛亮
沿平江路的入口视角 摄影:薛亮
建筑的空间格局和构件元素均保留完好,同时还增加了许多自发生长的功能性空间元素:覆盖庭院的独立钢结构玻璃顶,让庭院成为一个免受雨淋的半室外空间;后院则被改为阳光房,成为相对私密的室内空间。这些元素与传统建筑的空间交织并存,共同构成这一老院生动真实的新面貌。
改造前照片 摄影:王伟实
受业主委托,项目更新改造目标是营造一个以“花”为特征和内容,兼具体验展示和消费休闲功能的养生茶饮空间。在回应命题的同时,如何采用恰当的设计策略,以当代视角重新解读传统空间,是这次改造的核心关注点。
改造前后对比 ©上海可空建筑设计工作室
大门入口 摄影:薛亮
庭院改造后 摄影:薛亮
基于可识别性与可逆性的保护更新原则,本次改造是一个“做加法“的过程——在完整保留空间格局和传统构件的基础上,增添独立灵活的新空间元素,与传统空间相互叠加,共同营造完整的空间氛围和体验。这要求设计以装置要素化的方式介入既有空间,在准确应对空间需求的同时,与传统空间形成呼应关系。
设计选取不锈钢材质,借其抽象质感和模糊漫射的特性,营造轻盈体验,与传统建筑木构叠置屋檐所呈现的重量感相对照,以一种轻透的方式扰动、再组织空间。
庭院改造后局部效果 摄影:薛亮
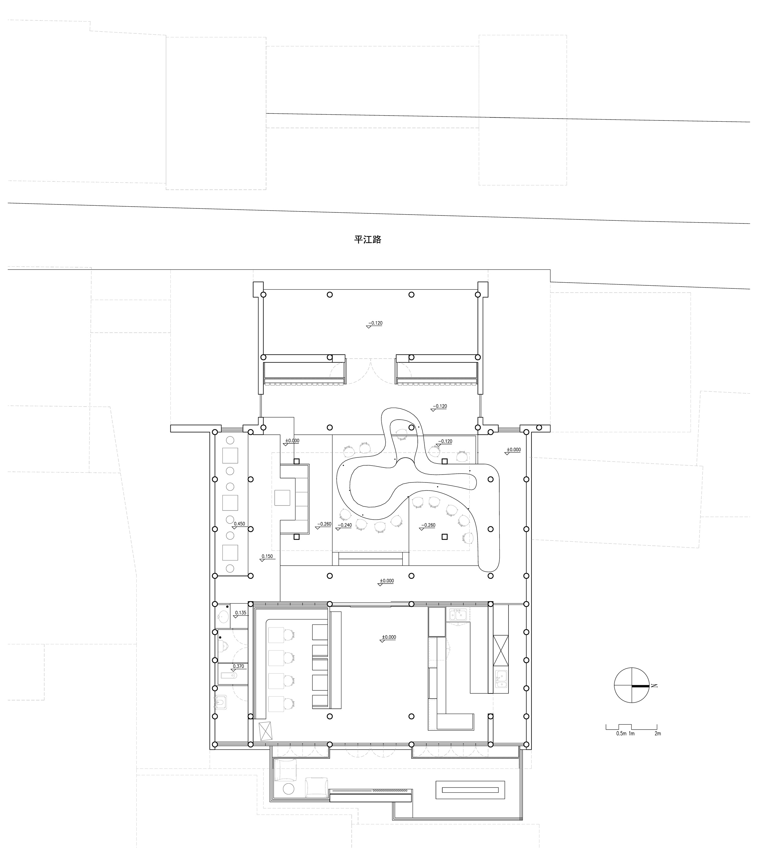
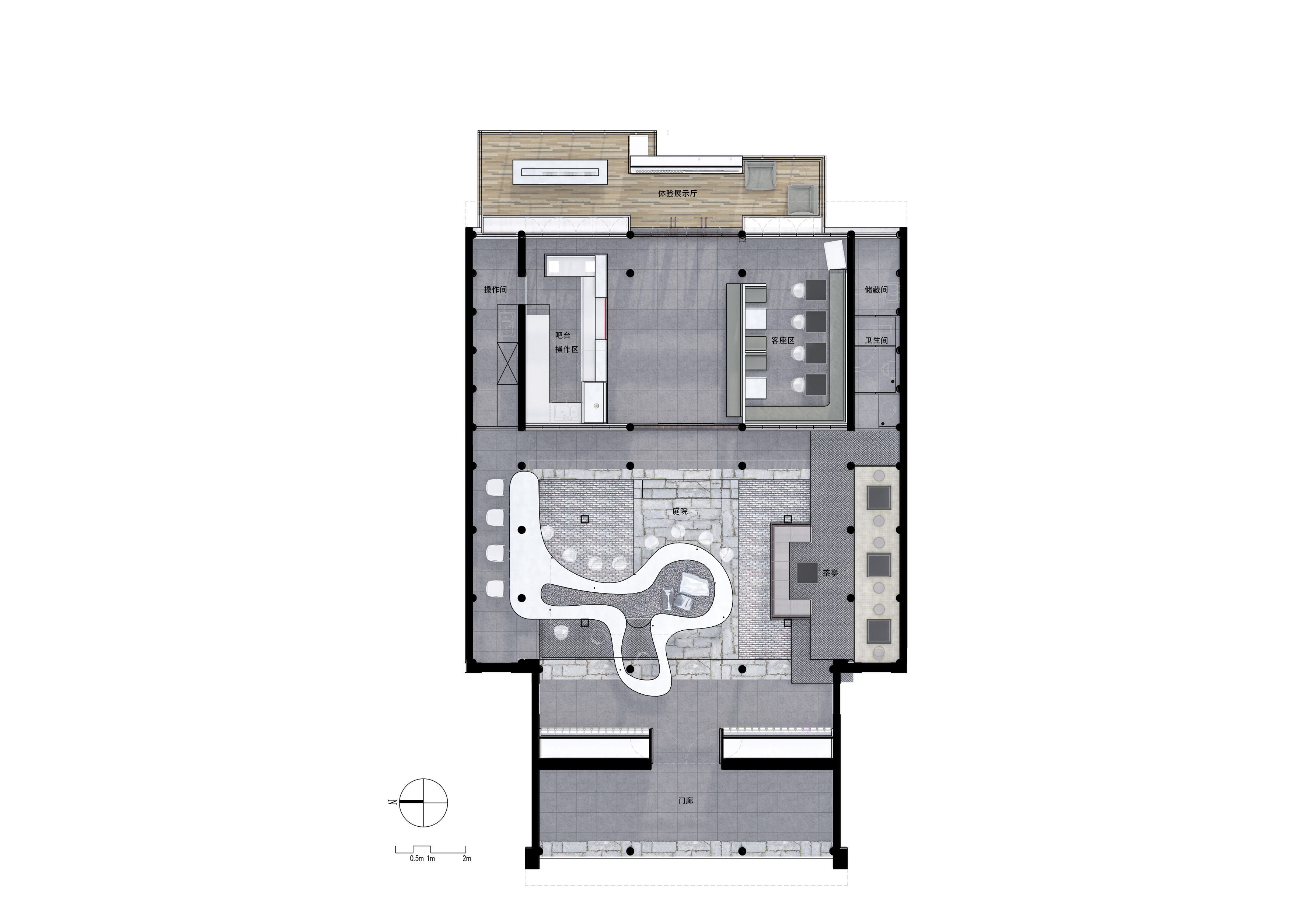
在建筑的核心空间——前院中,设计团队添加了三个主要的空间要素:长桌、花幕、茶亭。
院落中的长桌,为了满足坐席数量尽可能多的要求,采用柔软的曲线形态,以凹凸曲势勾勒限定庭院空间的同时,塑造了一个漂浮的抽象造型。桌面用8毫米厚的不锈钢板进行无缝拼合,以吊杆和立柱间隔承托的方式,形成超越常规比例的视觉跨度。
漂浮的长桌 摄影:薛亮
薄板长桌局部 摄影:薛亮
钢板表面的漫反射进一步强化长桌轻盈消隐的姿态,它在特定的视角能似水面般反射古建梁柱倒影,这进一步消解了对桌子实体体量的感知。长桌以超越日常经验的抽象形态,漂浮在庭院正中,却无拥塞阻碍之感。它结合原本位于庭院中间的景观叠石,营造出一种云绕山间的抽象画意。
夜晚长桌上抽象的倒影 摄影:薛亮
夜景长桌细部效果 摄影:薛亮
花幕垂挂于庭院玻璃顶下方,作为用以优化视觉体验的装置,它兼具控制庭院光线,和传达“花“的意向的作用。花幕采用不锈钢编织网,以2种规格的曲线轨道悬挂于玻璃顶框架上,经过组合后,在平面上卷曲构成“花”的形态,在空间上则如光影勾勒的“云”。
改造后轴侧图 ©上海可空建筑设计工作室
花幕与院景 摄影:薛亮
光线经由花幕,通过匀质的漫射压低空间尺度,勾勒檐口边界,给予庭院空间新的质感。悬垂花幕与长桌吊杆相映衬,构成一种向上的动势,使庭院呈现轻盈漂浮的视觉印象。
庭院改造后的夜景效果 摄影:薛亮
花幕与古建细节 摄影:薛亮
茶亭是庭院回廊空间的延续。既有建筑一侧的回廊地面是一个可坐高台,设计保留这一高台作为席坐区,并顺势将多标高的地台延伸至庭院中心。地台局部放大,构成围坐的茶席。这一处理打破了传统格局的严格对称,为庭院增添了某种动态新体验。
茶亭的屋顶由原始屋顶延伸出挑,采用了一个特殊的构造:槽钢做底瓦,小青瓦做盖瓦。这种意外的材料碰撞,构成了自外看极薄的传统屋面和自内看十分现代的材质拼贴,让属于传统的“重“材料呈现出当代的“轻”形态。
茶亭及地台标高关系 摄影:薛亮
由院子回望茶亭 摄影:薛亮
不锈钢材质的应用延续至室内。厅堂中的巴台卡座以不锈钢的材质与传统空间形成了明暗对照。后院的玻璃房从内侧包裹为抽象的白盒子,并通过接近地面的低窗露出其背后紧贴的斑驳老墙。老墙经过白盒子的抽象,变成一种因四时光影而变的画面,塑造藏匿于古城深处的特殊空间质感。
室内不锈钢卡座与花窗光影 摄影:薛亮
后院体验展示空间 摄影:薛亮
平面图 ©上海可空建筑设计工作室
平面材质示意 ©上海可空建筑设计工作室
剖面图 ©上海可空建筑设计工作室
构造节点大样图 ©上海可空建筑设计工作室
完整基本信息
项目名称:平江路“花容”茶饮空间改造设计
项目类型:改造+室内
项目地点:江苏省苏州市姑苏区平江路255号
设计单位:上海可空建筑设计工作室
主创建筑师:王伟实
设计团队完整名单:王伟实、李冠甲、汪成、周维
设计合作:沈雯
业主:花容颜究院
造价:40万元
建成状态:建成
设计时间:2021.11-2021.12
建设时间:2021.12-2022.02
用地面积:200平方米
建筑面积:200平方米
摄影师:薛亮
客服
消息
收藏
下载
最近

































