查看完整案例

收藏

下载
在旧建筑中嵌入黑盒子:古劳水墨方塘艺术酒店 / 加减智库设计事务所
在旧建筑中嵌入黑盒子:古劳水墨方塘艺术酒店 / 加减智库设计事务所
建筑北立面 摄影:曾喆
设计单位:加减智库设计事务所PMT Partners
项目地点:广东省江门市
建筑面积:4000平方米
建成时间:2020年1月
古劳水乡,位于广东省江门鹤山市,至今已有600多年的历史。由于地处西江河畔,河流从上游流经此地,河面变得宽阔,泥沙沉积形成沙洲。古时每遇西江洪峰来袭,老百姓难免扶老携幼逃荒走难。
项目区位分析图 ©加减智库设计事务所
明洪武二十七年,古劳人冯八秀奉旨兴建古劳围,从此这里便从滩涂泽国逐渐变成丰饶的岭南水乡。在“围”内冲积滩的地方,人们开挖出一口口的鱼塘,鱼塘间又形成了一个个的小土“墩”;人们在小土墩上种桑种蔗,并兴建房屋,故此地又被称为“围墩”水乡。
航拍图 摄影:曾喆
如今村民傍水而居,生活自给自足。水乡内仍然保持着经适量人工改造的自然风情,纵横交错的水网和镶嵌其中的村落,形成了岭南独特的湿地生态人文地貌。晨光初露,村间小艇穿行如梭,万亩鱼塘明镜耀目,千顷桑地绿海翻波,构成一幅人与自然共生的水墨画。
航拍图 摄影:曾喆
功能的传承与置换
村中的仁和小学被数个大小不一的水塘所包围,它是由旅港乡亲于上世纪八十年代捐建的一座小学。然而随着城市化的发展,村中的小学已经迁移异地。年轻的村民也多在外奔波,村内的仁和小学旧校舍沦为了一处废弃的消极空间。
仁和小学改造前原状 图源:网络图片
仁和小学改造前原状 图源:网络图片
新的业主希望通过功能的置换,把这座尘封的小学变为美术馆和艺术民宿合二为一的载体,并以此为中心带动周边的旅游发展。在仁和小学这栋建筑里加入仁美术馆,其取名是向旧校的致敬,而把当代艺术引入了乡村,则延续了小学自身的教育属性。水乡的自然风光吸引了周边城市不同艺术院校的师生前来采风写生。民宿的功能为前来的游客提供了憩息之地,让他们有了更充足的时间和理由来了解这块土地和这所学校的故事。
建筑外观 摄影:曾喆
新旧时间的并置
设计希望建筑的改造能够表现其在两个不同年代的时间属性,所以采取了一种对原有建筑轻接触的策略,使新加入的功能体块与旧建筑之间呈现出明显的边线,让人可清晰辨析。
建筑与周边环境的关系 摄影:曾喆
旧有的白色体量承担着民宿的功能,而新嵌入的深灰色盒子则作为公共艺术的发生器,吸引村外的艺术家与学生来此进行展览、教育、写生等活动,同时为本地的村民提供一部分公共活动场地。
轴测图 ©加减智库设计事务所
建筑外观 摄影:曾喆
乡村的日常与当代艺术之间产生了强烈的时空拼贴感,这些新植入的艺术盒子嫁接在原有的白色体量上,并在内部形成了一条独特的观赏路线。
建筑主入口 摄影:曾喆
由于设计刻意展现了建筑在不同年代的不同功能属性,所以在里面的体验是交错复杂的。让人觉得仿似身处于当代艺术馆中,却又像走在一家八十年代的乡村小学里。
入口广场水塘 摄影:曾喆
入口广场 摄影:曾喆
学校的大门引入了一个三层通高的灰色盒子,以此作为民宿的艺术大堂,高耸纤细的柱子贯串了三层的体量,并通过角度的扭转来形成入口的引导。雕塑家陈经毅8.6米高的作品《穿行》矗立其中,人们从三层楼不同的高度可以观看雕塑不同的片段,从而产生不同的解读。清晨阳光从东面漫入,婆娑树影落在雕塑之上,它静默着,却又好似在诉说。
建筑主入口 摄影:曾喆
艺术大堂 摄影:曾喆
入口望向雕塑 摄影:曾喆
保留下来的铁艺栏杆,以及学校的铁牌标语则不停暗示着小学的历史,试图把人拽回到1980年的场景之中。楼梯和走廊原有的洗米石材料,充满着时代印记。这些痕迹不应在这座建筑里“缺席”。斑驳的痕迹和结构的裸露,与新加入的门套形成对话,各自代表着相应的时间立场。
二楼望向主入口 摄影:曾喆
二楼观看雕塑 摄影:曾喆
三楼观看雕塑 摄影:曾喆
原有的课室转变为民宿客房,扩大后的落地窗尽可能地把外面的水乡风光尽收其中。客房外的阳台根据需求可开可合,相邻的房间可连成一个超长的公共阳台空间,颇有旧时相邻班级知己结伴的味道。
客房空间 摄影:文清峰
顶层的仁美术馆展览空间采用移动翻转的墙板,可根据展览的性质,旋转墙板来控制自然光线进入展厅的强度。
展览空间 (图为仁美术馆广东雕塑协会手稿展) 摄影:文清峰
曾经的食堂继承了以往的身份,成为了现在民宿的餐厅。通过一条幽暗的展廊连接到户外的泳池,并与从三楼仁美术馆下来的户外楼梯交汇,构成一条完整的观展路线。
户外泳池 摄影:曾喆
空间中的历时与共时
地层学通过研究岩层所含的生物化石来推断相对的年代顺序,考古人员以关键柱的土层来探索隐藏在地下的秘密。透过地层堆叠的关键柱剖面可以将不同年代的时间并置,这种物质呈现的方式,使人类对历史发生的事情有了更多的线索。
二楼走廊 摄影:曾喆
三楼走廊 摄影:曾喆
走廊灯光 摄影:曾喆
我们无法像访问空间一样的去访问时间,但我们却可以通过空间与材料去图示时间。把具有历时性特征的建筑片段以共时性的方式进行展示,需要我们能把握住这栋建筑的关键线索,将这些粗犷的新旧物料组合成新的时空叙事和场所体验。它包含了熟悉的记忆和当下的体验,看似抽离又身在其中。
楼梯 摄影:曾喆
围墩水乡中的共生
古人造“围”以抗洪灾,“围”即为边界以分内外;古人建“墩”以安家室,“墩”即为基础以承上下。
如今的改造设计以新旧为界,以仁和小学的故事背景和空间框架作为叙事基础,“围”与“墩”在这栋水乡建筑里有了新的语义。艺术盒子植入到原有的小学,与周边的水乡一同生长,它等待被再次阅读,并进入记忆。
清水走廊 摄影:曾喆
清水平台 摄影:曾喆
由于其本身的公共属性,仁和小学几乎是水乡边上最高最大的建筑。站在建筑高处,犹如身处看台,观赏着水乡村民的日常;而反过来时,村民看这栋建筑则也像是舞台的背景,上演着水乡当代艺术的序幕。
项目实体模型 ©加减智库设计事务所
特定的时间和场地基因,会重新定义这栋建筑未来的记忆。此刻的状态并非此建筑的终章,而是一个承上启下的段落;寄望围墩是一个有机共生的空间,此刻的状态将成为未来追溯过去的关键线索。
项目剖面实体模型 ©加减智库设计事务所
“面向现代化,面向世界,面向未来”当我们站在门口大堂,抬头望向这13个大字,在小时候对于八零九零后来说,这可能只是一句简单的口号;而二三十年过去后,我们才慢慢明白里面真正的意义和所蕴含的力量。
大堂 摄影:曾喆 设计图纸 ▽
总平面图 ©加减智库设计事务所
一层平面图 ©加减智库设计事务所
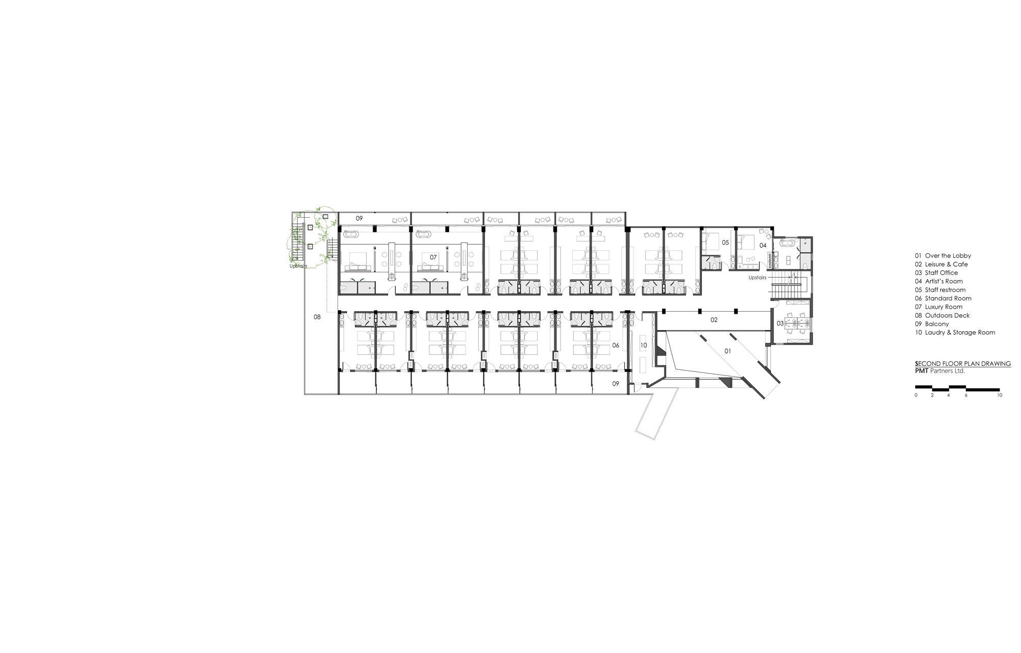
二层平面图 ©加减智库设计事务所
三层平面图 ©加减智库设计事务所
完整项目信息
项目名称:古劳水墨方塘艺术酒店
创意策划团队:龙成关、李拱华
设计单位:加减智库设计事务所PMT Partners
主持建筑师:赵炜昊、胡彦、曾喆
设计团队:何抒婷、黄嘉荣、卢泽强、林冕仕
摄影:曾喆、文清峰、龙成关
建筑面积:4000平方米
建成时间:2020年1月
项目地点:广东省江门市鹤山古劳水乡
客服
消息
收藏
下载
最近



















































