查看完整案例

收藏

下载
PILOTAS.LT
Vyriausybė neseniai patvirtino naujai dviejų Vilniaus universiteto (VU) padalinių infrastruktūrai sukurti skirtas lėšas. Saulėtekyje greta jau veikiančių stipriausių šalies mokslo centrų per trejus metus, planuojama, įsikurs modernūs Chemijos ir geomokslų bei Matematikos ir informatikos fakultetai.
SVARBI MODERNIAI EKONOMIKAI ŠAKA
Chemijos pramonė yra svarbi modernios ekonomikos šaka. Europos Žaliojo kurso iniciatyvoje daug dėmesio skiriama moksliniams tyrimams ir inovacijoms, kurios būtų kreipiamos į klimatui neutralių, atliekų nekuriančių, nulinę emisiją užtikrinančių sprendimų paieškas. Saulėtekyje formuojamas didžiausias Lietuvoje gyvybės, fizinių ir technologijos mokslų branduolys, kuriame bus telkiami šių mokslo sričių moksliniai tyrimai ir eksperimentinė plėtra (MTEP), plėtojamos mokslo ir verslo partnerysčių kuriamos vertės augimo prielaidos.
Naujuose Chemijos ir geomokslų bei Matematikos ir informatikos fakultetuose įsikurs modernios mokslinių tyrimų laboratorijos, kuriose vykdomi biochemijos, chemijos inžinerijos, medžiagų inžinerijos, dirbtinio intelekto, prognozavimo metodų, kibernetinio saugumo, didelių duomenų analitikos tyrimai skatins aktyvią inovatyvių sprendimų plėtrą ir intensyvesnę partnerystę su biotechnologijos, bioinformatikos, finansinių paslaugų, informacinių technologijų, medicinos ir sveikatos mokslų bei inžinerinio profilio įmonėmis ar akademiniais partneriais.
„Šie du VU kompleksiniai projektai apima ir šalies švietimo institucijų bendrą veiklą didinant STEAM (angl.
Science, Technologies, Engineering, Mathematics
) studentų skaičių Lietuvoje ir skatinant studentus savo žiniomis ir inovacijomis stiprinti šaliai reikšmingas mokslo sritis. Juos įgyvendinus taip pat atsiras palankesnės sąlygos sujungti įvairių specializacijų mokslininkų pastangas tiek formuluojant fundamentinius uždavinius, tiek juos sprendžiant ar jų pagrindu kuriant naujas technologijas MTEP“, – įsitikinęs prof. J.R.Lazutka.
MOKSLO POTENCIALĄ SUTELKS VIENOJE VIETOJE
Modernizavus šių fakultetų MTEP infrastruktūrą, sudarius sąlygas vykdyti atitinkamas mokslines veiklas bei tarpdisciplininius tyrimus ir čia sukūrus aukšto lygio laboratorijas, planuojama, reikšmingai augs MTEP paslaugų spektras ir apimtis, didės tiek Chemijos ir geomokslų bei Matematikos ir informatikos fakultetų individualiai, tiek bendrai su verslu ar kitais VU padaliniais registruojamų patentų skaičius.
Šie infrastruktūros projektai padės sutelkti turimą mokslo potencialą vienoje vietoje.
Pranešama, kad jau parengtas VU Chemijos ir geomokslų fakulteto statybos techninis projektas („Architektūros linija“; arch. G.Čaikauskas, S.Klezys, V.Raugala, V.Venckūnienė), gautas statybos leidimas, rengiamas Matematikos ir informatikos (MIF) architektūrinės idėjos konkursas. Projektus planuojama turėti 2023 metų pabaigoje.
Bendra naujų fakultetų statybų projektų vertė siekia 60 mln. eurų. Didžiąją dalį jų sudarys Lietuvos Respublikos biudžeto lėšos. Laboratorinei įrangai įsigyti skirtas išlaidas padengs VU, pardavęs dabar naudojamus fakultetų pastatus.
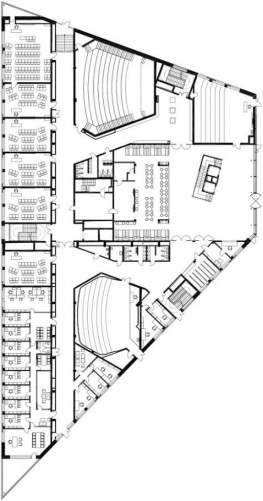
Titulinis pav.: VU Chemijos ir geomokslų fakultetas (arch. G.Čaikauskas, S.Klezys, V.Raugala, V.Venckūnienė).
VU Chemijos ir geomokslų fakultetas (arch. G.Čaikauskas, S.Klezys, V.Raugala, V.Venckūnienė)
VU Chemijos ir geomokslų fakultetas (arch. G.Čaikauskas, S.Klezys, V.Raugala, V.Venckūnienė)
VU Chemijos ir geomokslų fakultetas (arch. G.Čaikauskas, S.Klezys, V.Raugala, V.Venckūnienė)
客服
消息
收藏
下载
最近








