查看完整案例

收藏

下载
Частный особняк с садом по центру
Современный частный особняк выделяется среди рядом стоящих домов своим привлекательным профилем, за которым угадывается особенная комфортность и умиротворенность. Дом для целой семьи расположен в городской черте Уинчестера, Англия. Заботливо ухоженный фасад, скрывающий за собой впечатляющий внутренний интерьер, частично облицован темно-серым кирпичом, частично, для придания освежающей беззаботности – обшивкой из кедра.
Дом запроектирован
AR
Design
Studio
. Накрытый плоской крышей со свесом, он весь наполнен естественным светом, проникающим через окна с серыми алюминиевыми рамами. Клиентам – хозяевам особняка нужен был в жизни новый старт, и студии дизайна удалось создать яркое, жизнерадостное место, где жизнь этой семьи сможет обрести новый смысл. “Они недавно потеряли дочь, и им нужно было погрузиться в новую обстановку, которая дала бы им возможность сконцентрироваться на чем-то позитивном, и это могло бы стать новым началом для них самих и членов их семьи”.
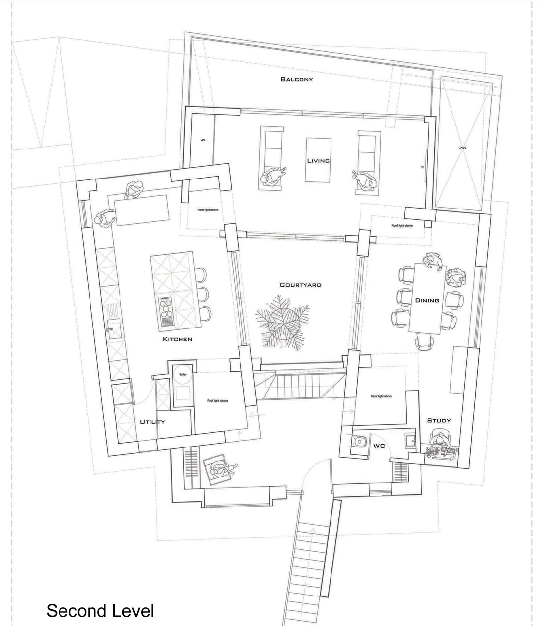
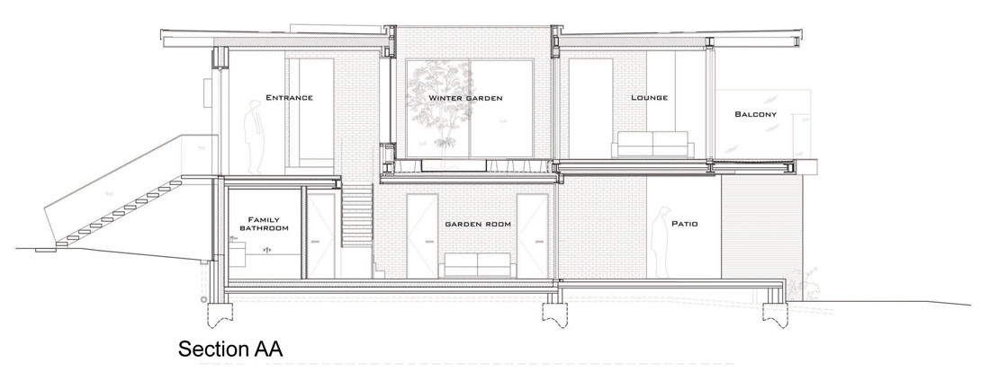
Комнаты на этажах расположены по кругу с садом в центре. Такое компоновочное решение базируется на результатах обширных исследований “о позитивном влиянии красивой архитектуры на восстановление здоровья”. На фотографиях, сделанных Мартином Гарднером, этот современный английский дом смотрит на город множеством удачно размещенных окон, которые объединяют все строение единой концепцией.
Концептуальный посыл, лежащий в основе проекта этого дома – принцип трех “П”: природа, природное освещение и природная атмосфера. Очертания дома определяются четырьмя взаимосвязанными помещениями; закрытое пространство по центру формирует “Дзэн”-сад с единственным деревом оливы посередине. Такая незатейливая планировка стала основой реализации принципа трех “П”, позволяя внедрить его во все аспекты дизайна”. Рефлексия и моменты задумчивости облегчают боль и предлагают более яркое видение будущего через неразрывную связь с природой. По словам архитекторов, “длительное созерцание окрестностей вдохновит чету хозяев смотреть в будущее с надеждой, а внутренний дворик создает приватное пространство для уединенных раздумий. Впоследствии дом стал известен как “4 Вида”.
На фто частный особняк с садом по центру
客服
消息
收藏
下载
最近























