查看完整案例

收藏

下载
First Level - Entry
4th Street Residence
Bird Works
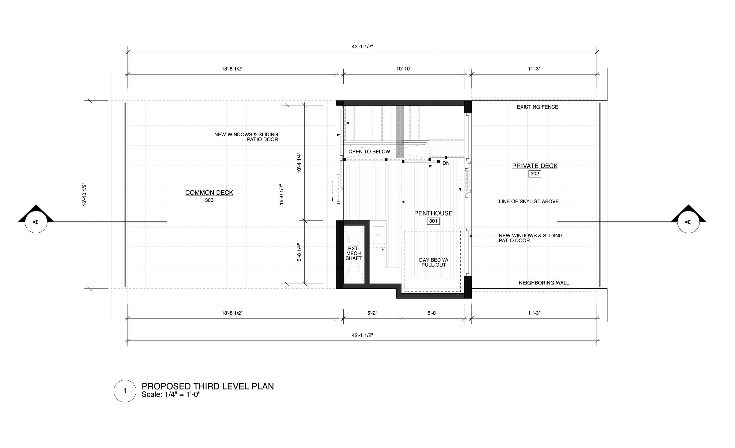
was commissioned to oversee the design and construction of this modern, multi-level residence on West 4th Street in Manhattan. Working with the client early on in the process, we developed design renderings, filing drawings and full construction documents for the project. The finished space includes two bedrooms, two unique bathrooms, a triple height stair, sliding glass walls and two private patios with great views of the city.
Status:
Built
Location:
New York, NY, US
Firm Role:
Designer
Additional Credits:
In collaboration with Peter Himmelstein Architect.
Second Level - Living Room
Second Level - Bedroom
Second Level - Kitchen
Third Level - Sitting Room
First Level Plan
Second Level Plan
Third Level Plan
客服
消息
收藏
下载
最近










