查看完整案例

收藏

下载
Apartment with a slide
by
Aurel Lucian
You know what’s the best part of this project? Well, it’s an apartment with a slide.
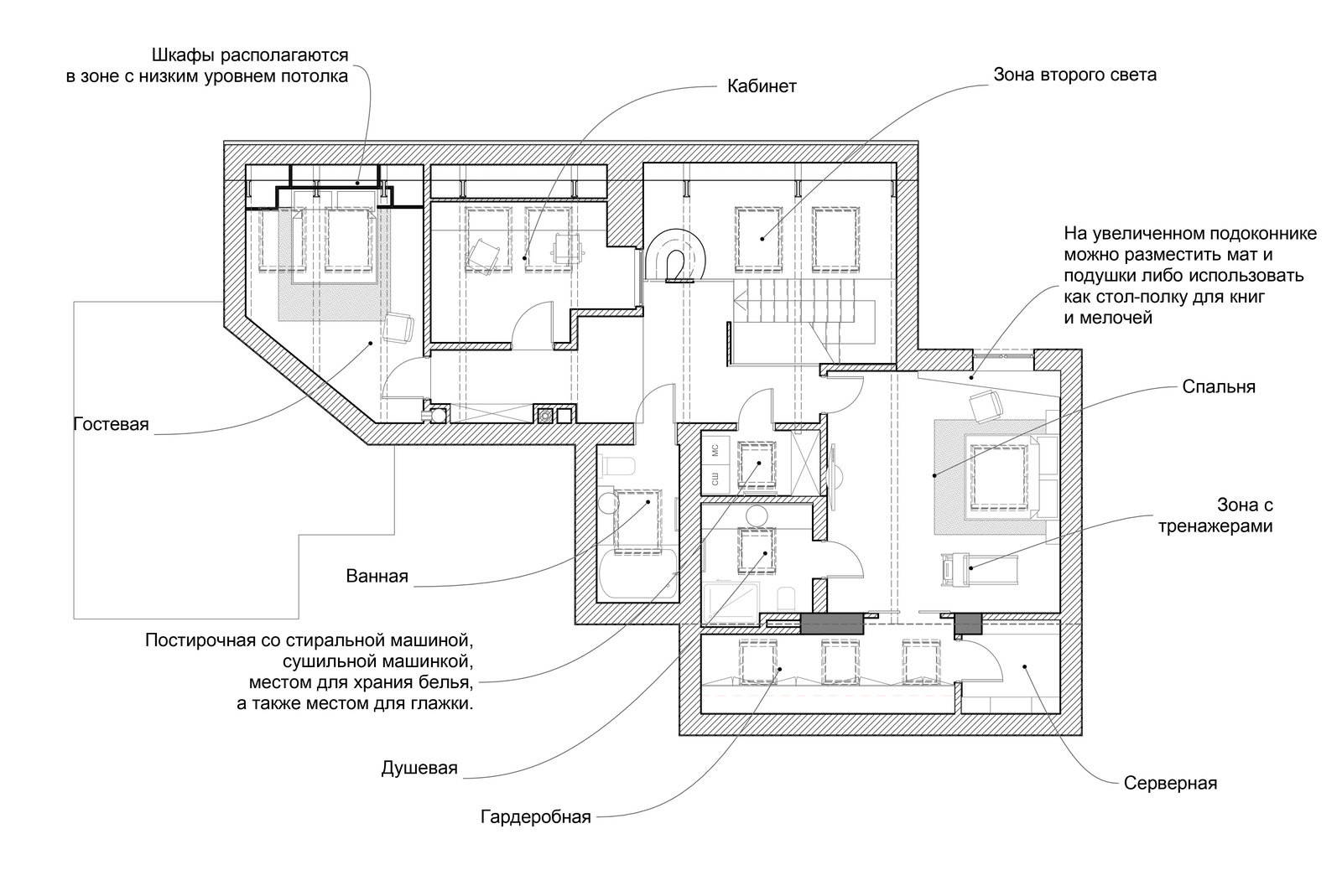
This two-level apartment on the top floor of a house built in 1917 is located in Kharkov, Ukraine. The residence area of 212 square meters was originally an uncomfortable, a space with impaired communication between functional areas, requiring the architects from the studio
KI DESIGN
to redesign it in a modern manner.
This apartment with a slide have on the ground floor a common area with a living room, kitchen and dining room, as well as separate rooms for the children’s future. Due to the new location of the kitchen stairs, even though is not separated from the living room visually divided, represents a separate zone.
Since the apartment is on the top floor, the large number of skylights provided plenty of natural light. Total space on the second floor was divided into a master bedroom with adjoining dressing room and a spacious shower room, guest bedroom, a separate bathroom and an office. In the apartment there are also several technical rooms, laundry room, and in the dressing room is located a server space, where the equipment for the “smart home” system manages all the engineering networks. Now the beauty of the apartment with a slide: this was a real challenge for architects and builders. Due the fact that the overlap between the two floors were monolithic and removal of even a small part of it represented a threat to the reliability of the building, they were limited in placing this element. Even with this problem, the slide became the main element of the apartment. The color scheme in the interior is rather mild: warm white, warm light gray, graphite and oak tree. Color accents are present in textiles – saturated shade of turquoise chairs, armchairs and fabric covered. An apartment with a slide like no other.
客服
消息
收藏
下载
最近




























