查看完整案例

收藏

下载
Fot. Eric Tschernow
120-letnią stajnię zamienili w dom. Obiekt zachował historyczny charakter
Mateusz Markowski
Stary budynek gospodarczy, położony w miejscowości Lanke w regionie Marchia Brandenburska, pół godziny drogi na północ od Berlina, stał się nowym domem i miejscem pracy dla klienta. Historia tego miejsca, które w latach 50. XX wieku przestało pełnić swoje dotychczasowe funkcje jako m.in. stajnia, odżyła dzięki starannie przemyślanej adaptacji przeprowadzonej przez pracownię Christoph Wagner Architekten.
Dawna stajnia – architektura z historią
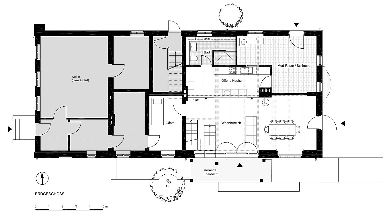
W latach powojennych budynek gospodarczy z początku XX wieku, służący jako warsztat oraz stajnia, został przekształcony w obiekt mieszkalny i podzielony na cztery lokale. Podczas niedawnej przebudowy jeden z nich pozostawiono nienaruszony, umożliwiając dotychczasowemu lokatorowi dalsze zamieszkiwanie. Pozostałe przestrzenie zostały przekształcone w dwupoziomowe mieszkanie o powierzchni 140 m kw. oraz pracownię złotniczą. W projekcie kluczowym założeniem było zachowanie autentycznego charakteru domu, z jego widocznymi warstwami czasu i historią. Zamiast pełnej renowacji postawiono na minimalne, ale przemyślane ingerencje.
Fot. Eric Tschernow
Przebudowa starego budynku
Zmiany były realizowane wyłącznie tam, gdzie były konieczne ze względów konstrukcyjnych. Na przykład pęknięcia w murach naprawiono tylko w miejscach wymagających wzmocnienia, a duże fragmenty budynku pozostawiono w praktycznie w nienaruszonym stanie. Jednym z najbardziej wyrazistych elementów projektu stało się nowe, asymetryczne okno w kształcie koła, umieszczone w ścianie szczytowej, które wpuszcza poranne światło do wnętrza. Ramę okna wykonano z litego drewna, które frezowano, aby wpasować szybę bez konieczności użycia dodatkowych elementów. Okrągła listwa została wyprodukowana z mosiądzu przez zaprzyjaźnionego kowala, co podkreśla unikalny charakter tego elementu.
Dawna stajnia na nowo
Największym wyzwaniem technicznym było stworzenie szerokiego okna tarasowego na elewacji południowej oraz otworu w stropie dla nowej klatki schodowej. Aby zachować stabilność podwójnej warstwy muru ściany zewnętrznej, użyto zewnętrznie umieszczonej konstrukcji balkonowej, co pozwoliło uniknąć zastosowania wewnętrznych podpór. Schody, wykonane z dużą precyzją, wyznaczają granicę prywatności na piętrze. Boczne oparcie górnego biegu schodów pełni rolę osłony, a jego forma delikatnie zaznacza się w przestrzeni. W projekcie wykorzystano materiały z rozbiórki, m.in. cegły jako ściany działowe oraz odzyskane parkiety. Konstrukcja podłogi, składająca się ze szklanych kruszyw i regionalnej mieszanki gliny z paździerzem konopnym, nie wymagała stosowania warstw izolacyjnych.
Fot. Eric Tschernow
Filozofia architektury
Pracownia Christoph Wagner Architekten kładzie nacisk na zrozumienie charakteru budynków, co pozwala na ich harmonijną adaptację do nowych funkcji. Według biura, dom w Lanke to projekt w toku – architektura, która ewoluuje razem z użytkownikami i nigdy nie jest „skończona”. To przykład delikatnej transformacji, która szanuje przeszłość budynku, jednocześnie nadając mu nowe życie. Dzięki dbałości o detale, minimalnym ingerencjom i zrównoważonemu podejściu, historia tego miejsca zyskała nowy rozdział, który będzie kontynuowany przez kolejne pokolenia.
Projekt:
Christoph Wagner Architekten
Zespół: Stefan Tietke, Rainer Krautwurst, Nabih Alshaikh
Lokalizacja: Lanke, Niemcy
Rok budowy: 2024
Fot. Eric Tschernow
Fot. Eric Tschernow
Fot. Eric Tschernow
Fot. Eric Tschernow
Fot. Christoph Wagner
Fot. Eric Tschernow
Fot. Eric Tschernow
Fot. Eric Tschernow
Fot. Christoph Wagner
Fot. Silke Spitzer
Mateusz Markowski
Miłośnik i pasjonat architektury, urbanistyki i zabytków. Absolwent gospodarki przestrzennej na Uniwersytecie im. Adama Mickiewicza w Poznaniu. Od kilku lat prowadzi na Facebooku i Instagramie fanpage "Blizny Poznania", który zyskuje sporą popularność. Niedawno założył fanpage o podobnej tematyce - "Blizny Warszawy", gdzie pokazuje przykłady renowacji zabytków, zmian w przestrzeni miejskiej i tworzy zestawienia PRZED/PO. Mateusz, w kręgu bliskich osób znany jako Kosik, jest duszą towarzystwa i kocha dobrą zabawę.
客服
消息
收藏
下载
最近
















