查看完整案例

收藏

下载
極大化量體加上開口,日本清水混凝土私人住宅Concrete Shell House/IKAWAYA Architects
極大化量體加上開口,日本清水混凝土私人住宅Concrete Shell House/IKAWAYA Architects
面向街道的基地呈現狹窄的長方形,寬度為9公尺,深度為26公尺,日本建築師井川充司主持的IKAWAYA Architects事務所,在規劃這棟私人住宅時,經過法規檢討後,在高度限制及退縮規定下,建立了最大量體的「外殼」,然後在「外殼」的理想位置打了一些「孔洞」,藉由這些對外開放的通道引入自然光和風。
在基地最南端也就是最深的地方,有一棵高七公尺的橡樹作為這棟屋宅的象徵,在基礎工程之前就先行栽種,因為一旦房屋結構工程進行之後,除非藉由大型吊具,要把這麼大棵的樹木植在基地最深處幾乎是不可能的,可以說,自從開始建造後,橡樹一直在關注著這棟屋宅的成長。
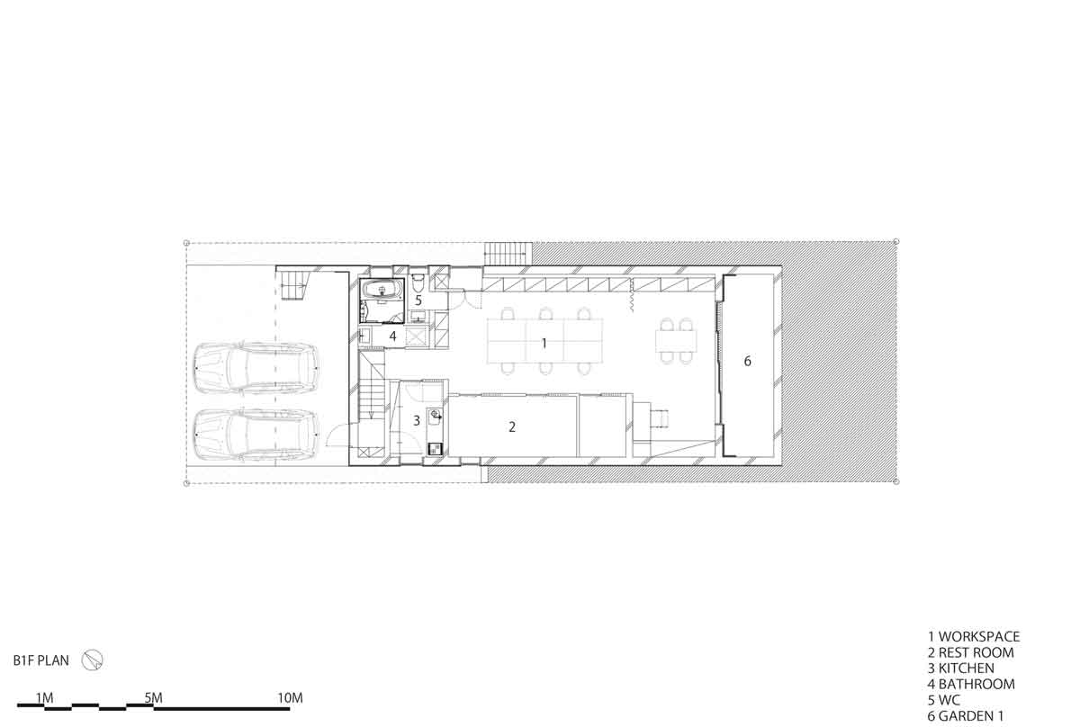
在「孔洞」內,建築師創造了與房間相鄰的植栽花園,地下一樓是「下沉式花園」,一樓是「橡子花園」,二樓是「用餐花園」。藉由打開外殼頂部,在屋頂上放置了一個「空中花園」,所有分散的花園都與外部樓梯相連,以垂直動線串連各個半戶外空間。
的「外殼」採用了外部隔溫手法,清水混凝土牆的熱容量可以調適室內溫度,藉由混凝土內牆及外牆的直接暴露,形成整個空間的連續感,並採用箱形涵洞結構系統維持此連續感,消除了垂直於通道空間的隔牆,形成一棟穩固堅實的結構體擁抱著居住者的溫暖住宅。
剖面圖,日本 清水混凝土 私人住宅 Concrete Shell House/IKAWAYA Architects
作品資訊
作品名稱:Concrete Shell House 混凝土殼住宅
作品位置:日本
建築師:IKAWAYA Architects
主持建築師:井川充司
總樓地板面積:332 平方公尺
竣工:2020年
攝影:Akinobu Kawabe
設計團隊:Atsushi Ikawa, Ryosuke Nambara
結構顧問:yAt Structural Design Office
機電顧問:Zo Consulting Engineers
營造廠:EIKO CONSTRUCTION
植栽顧問:SOLSO
作品圖像
屋頂花園,日本 清水混凝土 私人住宅 Concrete Shell House/IKAWAYA Architects
基地平面圖,日本 清水混凝土 私人住宅 Concrete Shell House/IKAWAYA Architects
1F平面圖,日本 清水混凝土 私人住宅 Concrete Shell House/IKAWAYA Architects
2F平面圖,日本 清水混凝土 私人住宅 Concrete Shell House/IKAWAYA Architects
3F平面圖,日本 清水混凝土 私人住宅 Concrete Shell House/IKAWAYA Architects
B1平面圖,日本 清水混凝土 私人住宅 Concrete Shell House/IKAWAYA Architects
剖面圖,日本 清水混凝土 私人住宅 Concrete Shell House/IKAWAYA Architects
客服
消息
收藏
下载
最近




































