查看完整案例

收藏

下载
Kako domaća firma pretvara brodske kontejnere u udobne domove za svega 4 nedelje
Ako želite što pre svoj krov nad glavom, a da to pritom bude ekološko rešenje i ne jako skupo, razmislite o kućama od kontejnera.
Kontejner kuće su kuće napravljene od brodskih kontejnera za transportovanje robe, a prave se od specijalnog corten čelika otpornog na koroziju, klimatske promene i vremenske nepogode.
Možete ih nebrojano puta premeštati s lokacije na lokaciju, a koriste se ne samo za pravljenje vikendica, već i za stambene i poslovne prostore. U poslednje vreme, vrlo su popularni u ugostiteljskoj industriji zbog i brze i jeftinije gradnje ali i zanimljivog izgleda.
Kontejneri koji su odslužili svoj transportni vek, umesto da završe u nekoj od topionica i samim tim proizvedu dodatnu emisiju karbon - dioksida, sada dobijaju novu namenu. Upravo ovo proizvođači kontejner objekata vide kao prednost u odnosu na ostale vidove gradnje. „Ne seku se šume kao za gradnju montažnih kuća, a drugi razlog je da staroj i istrošenoj stvari dajemo novu namenu i time doprinosimo očuvanju životne sredine.“ – kaže Goran Ergić iz firme Avala Container Homes iz Beograda koja je jedna od retkih u Srbiji i regionu koja se profesionalno bavi proizvodnjom kuća od brodskih kontejnera.
Brodski kontejneri se prave od corten čelika otpornog na koroziju, klimatske promene i vremenske nepogode.
Ono zbog čega su kuće od brodskih kontejnera posebno interesantne jeste što one mogu biti u potpunosti spremne za useljenje za 4 - 6 nedelja. Stambeni objekti se prave od standardnih brodskih kontejnera dužine od 12 i 14,2 metara, a moguće ih je kombinovati u veće skupine po modularnom šablonu, što značajno pojednostavljuje gradnju i projektovanje. Naravno, odmah na početku javljaju se neka logična pitanja.
Dozvola za kuću od kontejnera?
U većini evropskih država, građevinske dozvole za ovu vrstu objekata nisu potrebne. U Srbiji, još uvek ne postoji zakon koji uređuje izgradnju ovakvih objekata, kaže Ergić za naš portal. Naravno, ako želite da se priključite na vodu, struju i kanalizaciju, što ova kontejner kuća sve ima, moraćete pribaviti sve potrebne papire.
Što se tiče temeljenja, kontejnere je dovoljno postaviti na betonske stopice. U zavisnosti od terena, te stopice mogu biti povezane temeljom. Izradom betonskih stopica lakše je nivelisati konstrukciju, a i stopice su ekonomičnije od betonske ploče. To je još jedna prednost u odnosu na montažu kuću, jer je za njih potreban kran koji bi istovario i postavio objekat na svoje mesto.
Sečenje otvora u kontejneru; Foto: Avala Home
Kako se prave kuće od kontejnera
Brodski kontejner se pretvara u dom tako što se na početku seku otvori, a zatim se postavljaju čelični ramovi gde će potom biti ugrađeni prozori i vrata. Nakon toga farbaju se spoljni zidovi kontejnera u željenu boju.
U enterijeru se prvo postavlja unutrašnja konstrukcija od metala ili drveta, a zatim se radi elektro i vodovodni razvod. Kablovi se provode kroz specijalne kanale kako bi mogli da ostanu slobodni kada ih prekrije poliuretanska izolacija. U većini slučajeva za grejanje se koriste grejni podni kablovi.
Unutrašnja konstrukcija i postavljanje električnog podnog grejanja; Foto: Avala Home
Kontejneri se izoluju poliuretanskom penom koja pritom ne dozvoljava stvaranje kondenzacije.
Nakon završetka instalacije, nanosi se poliuretanska termoizolacija. Kako navodi naš sagovornik, kontejneri se izoluju poliuretanskom penom koja prijanja na metalne zidove i samim tim pored izolacije, ne dozvoljava stvaranje kondenzacije što u suprotnom može biti veliki problem.
Potom se vrši ugradnja prozora i vrata i prelazi se na unutrašnje radove: postavljaju se zidne obloge, podno grejanje, postavljanje pločica i ostalo. Na pod se najčešće stavljaju keramičke pločice u celom objektu ali se kao podna obloga postavlja i parket.
U kontejner kuće se mogu ugraditi smart sistemi koji omogućavaju kontrolu na celim objektom iako niste fizički prisutni. Na primer, preko telefona se može upaliti grejanje, spuštati/podizati roletne, paliti/gasiti svetla, a mogu se iskoristiti sve ostale pogodnosti digitalnog doma.
Nanošenje termoizolacije pomoću poliuretanske pene; Foto: Avala Home
Rokovi izrade kontejner kuće
Brzina je velika vrlina kuća od kontejnera. Naime, orijentacioni rok isporuke gotove kontejner kuće je oko 4-6 nedelja. U Avala Container Home ističu da se kontejner kuće na teren isporučuju kompletno završene, dok se kod većih modela, koji se sastoje iz dva kontejnera, na samoj lokaciji se izvodi spajanje kontejnera i završne unutrašnje radove oko tog spojnog dela.
Završni radovi u enterijeru; Foto: Avala Home
Kuće za svačije potrebe
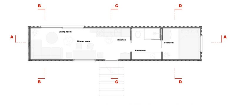
U ponudi domaćeg proizvođača Avala Container Home, postoje tri tipa kontejnerskih objekata. Modeli su od 14,4m2 (6 x 2,4 x 2,6m), 28,8m2 (12 x 2,4 x 2,9m) i 68,16 m2 (14.2 x 4.8 x2.9m). Najveći model se pravi spajanjem dva kontejnera.
Osnova kontejner kuće površine 28m2
Osnova kontejner kuće površine 68 m2
Cena kuće od brodskih kontejnera
Cena kontejner kuća zavisi od veličine kao i od toga da li se koriste nove ili polovne kontejnerske jedinice. Cene se kreću od 13.000 do 44.000 evra.
Svakako je ekološkije uzeti polovne kontejnere koji neće završiti u topionici već će dobiti novi životni vek, a pritom su i povoljnije rešenje.
Prevoz kontejnera se organizuje u saradnji sa špediterskim kompanijama, kako za prevoz po Evropi tako i za prekookeanske destinacije zaključuje naš sagovornik Goran Ergić.
Spremna za useljenje; Foto: Avala Home
Ovo može postati vrlo popularno rešenje pogotovo među mladim ljudima koji žele da obezbede svoj prvi krov nad glavom.
Život u sređenim brodskim kontejnerima je još uvek nešto veoma friško kod nas, iako smo pisali o brojnim svetskim primerima. Međutim, uzimajući u obzir brojne prednosti ovakvog načina gradnje nije isključeno da to može postati vrlo popularno rešenje pogotovo među mladim ljudima koji žele da obezbede svoj prvi krov nad glavom. Zgodno je što su kontejneri modularni i lako ukloplivi, a pritom se i veoma brzo prave. Postoje slučajevi gde su od kontejnera pravljeni tržni centri i stadioni baš iz razloga što ih je lako uklopiti pa su mogućnosti beskonačne.
Kontejner spreman za isporuku; Foto: Avala Home
客服
消息
收藏
下载
最近

















