查看完整案例

收藏

下载
7 Ranch House Additions Before and After Inspirations + Some Basic Information You Must Know
Ranch house additions before and after might be the type of inspirations that you are looking for right now. It is especially when you are thinking about expanding your residence.
If those are so, you are already in the right place. In this post, we will share with you about the conditions of some inspirational ranch houses before and after the addition project done to them.
Here, we will share with you not only the pictures of each house. We will also give you the information about why each of the residences needs additions.
However, let’s start with some basic information first to remind all of us about the ranch house style and the additions. First, let’s start with the definition of this residence type.
Table of Contents
What Is Ranch House?
What Is Ranch House Addition?
Different Types of Ranch House Addition
Based on the Addition Position
Based on the Addition Purpose
Before-and-After Inspirations
More Spacious Interior and a New Garage for a Historical Ranch House
Facade Addition in a Traditional Ranch House Design
Steel and Glass Prisms Insert for a Suburban Ranch House
Ranch House Additions for a New Garage and Home Expansions
Addition to Double the Size of the Ranch House
Screened Porch Addition for the Back Exterior of a Ranch House
Modern Second Level Addition to a 60’s Ranch House
Closing
1. What Is Ranch House?
In simple words, we can say that a ranch house is a classic American residence type. The origin was in California between the 1950s to 1960s. At that time, it was found a lot in the suburban areas of America. It even became a kind of architectural language there.
Some iconic characteristics that we can notice from the ranch house style are the larger size of the lot, the spacious floor plan, and the solid construction. One thing that is quite lacking in this residence type is the design that many people consider less attractive if being compared to other house types.
Although, right now, there are still quite a lot of growing families who gain interest in moving to a ranch house, especially the ones located in the suburban areas. There are some reasons for it.
The suburban location is a quite strong reason in this case. It is away from the stressful city life. Besides, it can be a healthier and more relaxing place for the families, including the kids, because of the lots of greenery and trees.
To deal with the lack of attractive design details, many families who decided to move in ranch houses chose to do a renovation. It gave the buildings more appealing looks in both of the interior and exterior.
Another most significant one is the fact that ranch houses usually have larger lot sizes. It gives a big chance for the growing families to enlarge the house for the sake of convenience and a batter life quality. This topic is the one that we will discuss more in this post.
2. What Is Ranch House Addition?
ranch house sunroom addition built over a patio. image © remodelingcosts.org
When talking about expanding a ranch house, we talk about addition. It is none other but an expanding project done by building a room or more that are connected to the existed residence.
Just like the name, the primary purpose of the addition project is to make the house larger. Something like this can leads to a better and more comfortable life for the occupants.
For example, a family with lots of kids needs more bedrooms. This way, each of them can have a personal and private space. It is essential, especially when they are getting older.
A ranch house addition can also add the needed function in the house. For example, a garage addition can add protection and safety value because it means that the homeowners can keep their vehicles inside the house.
3. Different Types of Ranch House Addition
When talking about the types of ranch house addition project, we can try to see it from two points of view. The first is related to the position, and the second is to the purpose. Let us talk about that one by one.
Based on the Addition Position
Based on the position of the additions, there are four types available.
a. Facade Addition
It is when the project is done to the front part of the house. The form can be various, but the most common ones are porch and sunroom.
b. Rear Addition
For this type, the project is done to the back part of the house. From all room types that people usually choose, sunroom, covered patio, and semi-outdoor kitchen are the most common choices.
c. Side Addition
This project is done to the right or left side of the house. With this position, you can choose any type of room to add for the home expansion.
d. Second Level Addition
This project is quite different from all the three options mentioned earlier. The reason is that the addition project is done by adding a second level with various size options to the house. It is excellent to choose when you do not have enough space on the lot to expand the house on the first level. Just like the side addition, any room type is suitable to pick here. Besides, this project is even suitable to double the house size without taking any space from the lot.
Based on the Addition Purpose
Based on the purpose of the addition, there are at least six additions available.
a. Garage Addition
This one is suitable to pick when you do not have a place to park your car in an indoor area. Besides, it is also excellent to choose when you need to expand your current garage so that it can accommodate more cars at once.
b. Insert Addition
This one is rather special because the primary purpose is to build a room to connect your ranch house to another building next to it. Usually, this project is suitable to do when you have a courtyard or just a small yard between the buildings.
c. Bedroom Addition
It is quite a common choice taken by growing families. The idea is to add one or more sleeping areas to accommodate all the family members or the guests who visit.
d. Porch or Covered Patio Addition
Some ranch houses already come with deck or patio in the building. The addition project here is suitable to pick to create a porch or a covered patio from the existed elements. The way is, of course, by adding a suitable roof feature for it.
e. Sunroom Addition
This one is another choice that many people have chosen quite a lot. The main reason why they love it is that a new sunroom addition can give an alternative living room in which the family can gather while at the same time feeling the outdoor atmosphere, of course without having to worry about bugs.
f. In-Laws Addition
When you have your own family, but you want to return the favor that your elderly parents have done to you for years, the in-laws addition is the excellent choice to pick. The main idea is to expand your ranch house so that you will have enough space to build an in-law suite. For you who are not familiar with the term, we can say that it is a unique feature to add in home design. It is a rather large room that usually consists of a bedroom, a bathroom, and a custom entertainment center for TV or something else. Sometimes, it even comes with a small kitchen. Although it does not always appear, an in-law suite addition often comes with a separated entrance too. An addition like this is suitable to build in the lower level or second level of the ranch house.
4. Before-and-After Inspirations
Now that you already know about the basic knowledge about ranch house additions, it is the time for you to take a look at the before-and-after inspirations that we find. Each of the inspiring projects that we will list in the following contains a different idea. So, hopefully, it can open your mind inspiringly to plan the next addition project for your own ranch house.
More Spacious Interior and a New Garage for a Historical Ranch House
The first inspirational addition project that we want you to take a look at is about this historic ranch house. In the small picture located in the corner of the photo above, you can see that at first, the residence is quite small. On one side, it has a sunroom, and near it, there is an empty lot. Next to the blank area, there is a car garage.
In the after photo, from the exterior, it is clear that the house is more extensive. Thanks to the insert addition that removes the sunroom but connects the main house with the garage.
The larger size of the house is a result of expansion done not only to the lower level but also to the second level. Because of this project, the house gains a new master bedroom for the parents, a master bath, and another room for exercising. The location of all those is on the second level.
In the first level, the new details include a new family room that is connected to the living room with a two-way fireplace, a new laundry room, a new half-bathroom. Not to forget that the new garage is suitable to park two cars instead of one.
Other than the addition, there are some renovations, too, especially to the exterior and the landscape of the house. With all the new things done to the house, it becomes a more comfortable place to live in better quality, right?
Facade Addition in a Traditional Ranch House Design
The addition here is done to the facade of the ranch house. As you can see here, before the project, the residence only has a small deck with no roof. A detail like this is more functional only for the sake of decoration of the entrance of the house.
After the addition, the front part of the house gets a new and more spacious covered porch with stone columns. There are even a swing and some chairs for the family to spend some of their time on the porch.
You can also see that there are some roof modifications after the addition. There is even a small, gabled dormer added in the design.
Possibly, a new functional attic is added to the interior. Another possibility is that the homeowners only want to allow more natural light from outside to enter the house through the upper window.
In this inspirational project, you can also see some exterior renovation that changes the look of the ranch house. One of the most significant examples is the board and batter siding.
Steel and Glass Prisms Insert for a Suburban Ranch House
This next inspiring idea comes from the addition project done to a ranch house located in a suburban area. We can say that the concept is unique because the main thing done here was to add a steel and glass insert in a courtyard connecting the primary residence and the carport. It gets even more exciting because the final result of the addition gave a more modern impression to the home design overall.
We cannot find any picture of the residence before the project took place. However, you can see the 3D floor plan image above to know how the house looked like initially. Before the project, the blue rectangular area in the picture above was absent. It was just a courtyard.
In the addition process, a suspended prism from glass and steel material was added. As a result, the new house obtained a fresh look at the facade and rear parts.
From the front view, we can see that the insert part has a large frosted glass window that allows some natural light to comes into the house and make it a brighter and healthier interior environment. At the same time, this detailing provides privacy, even without any covering.
At the back, there is also a large glass window. The difference is it is clear that people from inside the house can see the view of the backyard. Through this clear glass window, we can also see that there is an informal sitting area in the residence.
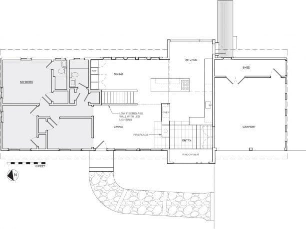
If you are curious about the differences that the addition project gave to the interior design, you can take a look at this floor plan. Here, it is clear that the kitchen takes the most area of the steel insert. Besides, there is also the sitting area, the window seat, and even the entry.
Ranch House Additions for a New Garage and Home Expansions
From this inspiration, you will know how and addition can change the look of a ranch house very differently. Take a look at this first picture. It is a raised ranch house with a rather small size. On one side, it looks like there are two cars parking, which also means that the residence does not have any carport or a garage.
Here is the picture of the ranch house after the project took place. It looks very different, right?
The architecture still kept the original structure and detailing of the house. It includes the stair that only looks cleaner because of the new white paint.
The most significant difference is in the new garage. It looks like the architect dug the lot beside the house to create a driveway, as well as a semi-basement place for the car.
Above the garage, another addition added. Although we do not know precisely what is in there, it is evident that the interior got more space because of it.
Addition to Double the Size of the Ranch House
An addition is also perfect for doubling the size of your ranch house. An idea like this is excellent to follow when you do not want the expansion to take any space from the lot because of some specific reasons, such as limited land or just because you prefer a more massive yard.
An excellent example that you can take a look at is available in this brick ranch house. Before the project, it was a single-story residence with a quite simple look. It didn’t even have a porch or portico to mark the location of the main entrance.
After the addition project, you can see that the ranch house got a new look. The leading cause is the new second level, which size is precisely the same as the lower one.
While keeping the look of the original ranch house, the designer followed the request of the homeowners to create a contrast yet compatible exterior visual. That was why vinyl siding became the choice instead of brick.
Another detail that you can see from the renovated building is the chimney. Instead of removing it, the designer just extended it so that the homeowner will not lose its function, which can be significant to the house.
The last but not least, the new version of the ranch house also got an entry arch. This element makes the entrance location even clearer while at the same time tying the entire addition project together.
Screened Porch Addition for the Back Exterior of a Ranch House
Some people love a screened porch addition for their ranch houses. The reason is that they already satisfied with the home interior design but want to add a semi-outdoor place where they can enjoy the outdoor view and atmosphere without really being outside the house.
The picture above shows the image of the backyard of a ranch house. As you can see, there is a patio complete with a table and chairs set with a garden umbrella covering it.
After the addition project took place, there was a quite significant difference resulted, as shown in the pic above. Here, you can see that some of the large trees are no longer there, so the area looks more open.
About the building, it got a new screened porch as the main addition. Outside it, there is an uncovered patio complete with seats, swing, and the set of chairs and table with umbrella that exist in the previous picture.
A place like this is excellent for grilling and barbequing. If you do not want to get sunburnt when enjoying the food, you can bring and eat it in the screened porch while still being able to feel the outdoor air and scenery.
Modern Second Level Addition to a 60’s Ranch House
This picture shows the facade of a 60’s ranch house. As you can see, the location is on rather low ground. As a matter of fact, the entry of this house is not on the same level as the street nearby.
After the project, you can see some significant differences in the home design. At a glance, it has a more modern look now.
The best thing about the remodeling is not only about the look. Primarily, half of the house got a second floor.
It is also something that made it possible for the architect to add a new entry on the new level so that it got an equal height with the nearby street. Everything got even more exciting because to get to the main entrance, you need to walk on a bridge.
There is also a new balcony on the back of the second floor. It gives the occupants of the house a place to enjoy the stunning yet relaxing view of the downtown area as well as the far-away mountain.
5. Closing
Those are all the seven inspirations about ranch house additions before and after we can share with you. Each of them has a different idea, so we hope that it can be helpful for you in planning your next expansion project.
From this article, you finally know also that there are so many possibilities available in enlarging your ranch house. The examples that we shared above are just a few from many others.
The sure thing that you must always remember is the reason why you need the expansion. This way, you can decide the most suitable type of addition for the ranch house, as we already explained to you earlier.
客服
消息
收藏
下载
最近




















