查看完整案例

收藏

下载
Concrete changes: the Wonder Cabinet in Bethlehem, Palestine, by AAU Anastas
The Wonder Cabinet is a new building designed by Palestinian architects Elias and Yousef Anastas. Visitors enter through the top floor, where the building meets the street
Descending to lower floors, the space opens up in a central volume dedicated to local makers
The full height of the building is concealed by the steep topography
Workspaces and open-plan even areas are nestled within the building’s three floors
Wonder Cabinet, which
is funded by the Swiss Drosos Foundation, seeks to provide workspaces for Palestinian designers, artists and makers
A haven for Palestinian culture and creativity in Bethlehem’s hostile geopolitical landscape
As you approach Bethlehem from its northern entrance, passing through the Israeli military checkpoint that separates it from Jerusalem, a striking sight unfolds before you: a towering 9m-tall Israeli segregation wall running alongside the road, while in the distance, hilltop colonies exclusive to Jewish settlers dot the landscape. Suddenly, the infrastructure deteriorates, and the road becomes increasingly rugged.
Upon entering the Palestinian city, you’ll be greeted by a vibrant display of public life. The air is alive with the sounds of car horns, bustling shops and a blend of locals and tourists. In Bethlehem, amid the challenges of life under occupation, Palestinians have initiated various efforts to preserve their cultural heritage and cultivate a thriving contemporary creative scene. One notable initiative is the Wonder Cabinet, a new project designed and led by Palestinian architects Elias and Yousef Anastas.
Over the past few years, the Anastas brothers have been working in different fields besides their architectural studio, AAU Anastas. Among their initiatives is Local Industries, a network of makers around the city, and Radio Alhara, an online radio station. The architects explain that Local Industries ‘investigates the ability of architecture being built by artisans, a scale that is halfway between architecture and furniture’. The Wonder Cabinet, their latest project, ‘started as a will to take this practice to the public realm’.
Initially, the Wonder Cabinet began as a plan to remodel the historic Bandak Factory in Bethlehem into a hybrid structure ‘combining industrial production with a flexible cultural and social platform’, according to the architects. Some cultural events were even held in this first location. However, as the two architects explain, renting the space would have been too costly. Instead, the Wonder Cabinet turned from adaptive reuse into a new construction project, and it was supported by the Zurich‑based non-profit Drosos Foundation, which funds other charitable projects, both in Palestine and around the world.
Not far from the checkpoint, and nestled in the rolling hills of northern Bethlehem, the new building site belongs to the Anastas family. Acknowledging its relative distance from Bethlehem’s bustling core, the architects describe this location as a place currently experiencing a transformative phase. ‘We maintain a profound interest in the site’s evolving relationship with the future built fabric, the surrounding natural landscape, and the ongoing contemporary expansion of the city.’
The Wonder Cabinet’s main aim is to serve as a haven for culture and creativity and a bridge between design and production. ‘It is a space for experimental productions between producers, including architects, designers, chefs, artisans, sound and visual artists,’ the architects say. ‘It is also a space that points out the under‑represented capacities of production in Palestine. The country is usually studied and analysed; the Wonder Cabinet stands as a physical space to produce from, not only to look at.’
While the architects were primarily known for their experimental work with local limestone, their Wonder Cabinet project is characterised by a concrete structure and bare finish. To them, the material choice appears self-evident: ‘Concrete was selected as the skeleton material, aligning with the prevailing construction practices in Palestine.’ Nevertheless, traces of local stone persist throughout the building. This is, in part, owing to the artistry and flexibility of local stonemasons. ‘The concrete underwent painstaking bush-hammering and expert sanding, skilfully executed by accomplished stone artisans,’ Yousef Anastas explains. The building also exhibits the stone models from the brothers’ previous projects.
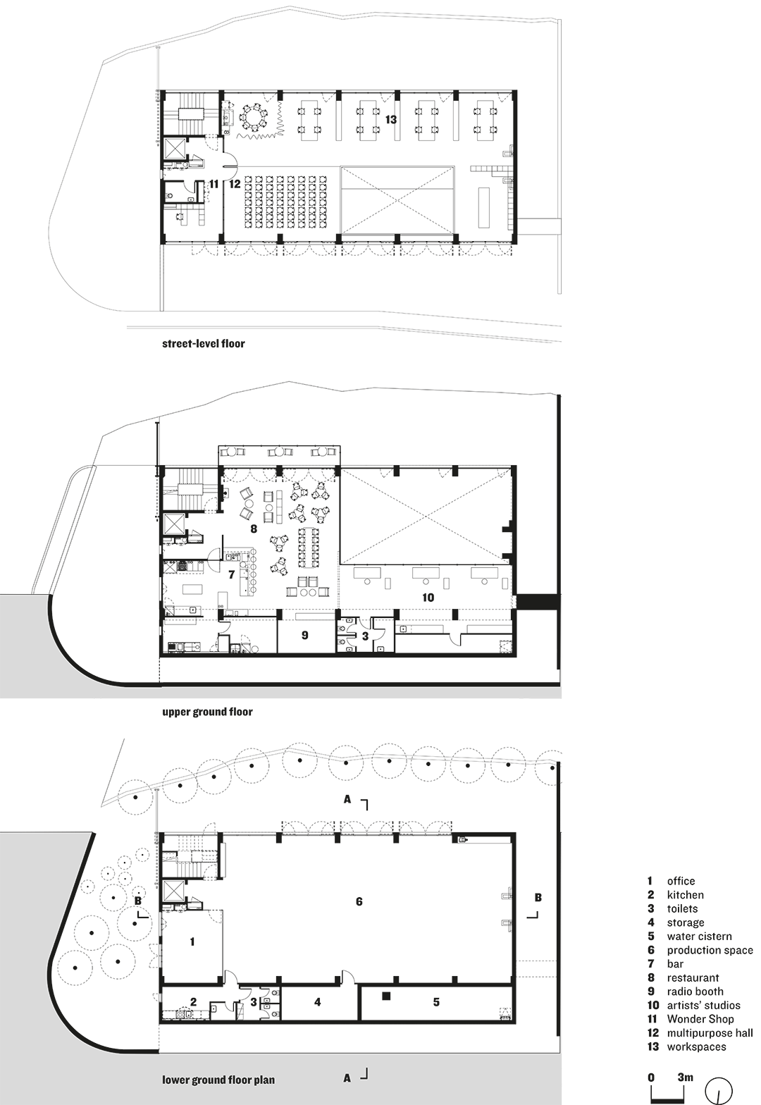
The selection of exposed concrete serves as a poignant reflection of the ongoing quandary within contemporary Palestinian construction. Concrete proves to be a more cost-effective choice, whereas stone merely remains financially viable as a cladding material. Achieving a scalable approach to load-bearing stone construction remains an elusive goal. Within the Wonder Cabinet, the inherent coldness of concrete is mitigated through the building’s design and layout. ‘It is a space that aims to be as unintimidating as possible,’ say the architects. ‘Its architecture can be adapted and transformed. In a way it is an infrastructural architecture that leaves possibilities for experimentation.’ Upon approaching the building, the architects’ words become palpable. At street level, only one of the Wonder Cabinet’s three storeys is visible. On the roof, stainless-steel letters spell out its name. Meanwhile, the lower two levels are tucked below the street, benefiting from the site’s natural slope.
The building follows a simple plan, organised around a basic grid on the top floor. Expansive glass windows envelop the entire front facade, yielding a sense of transparency. To the left, there is the street-facing Wonder Shop, featuring designer items from local and regional artists. The shop is followed by a slender corridor that guides you to the stairs.
The placement of structural elements on the facade frees up the interior space, allowing for flexible use. As a result, the remaining street-level area is partitioned into a multipurpose hall, an exhibition space and workspaces. Nestled at the centre of it all is a luminous core that permits natural light into the lower levels.
Punctuating Wonder Cabinet’s stairwell are distinctive cone-shaped oculi, whose shapes seem an unmistakable comment on the militarised segregation wall on the opposite hill.
Through them, the Har Homa Israeli colonial settlement can be viewed
As you descend the staircase, you are met by distinctive conical apertures, adorned with transparent glass windows. These conical structures extend 1.2m outwards, featuring an 800mm diameter for their glass openings. When questioned about these intriguing elements, the two architects explain: ‘The staircase apertures were crafted in collaboration with a local concrete silo producer, the sole artisan proficient in bending metal sheets to the precise dimensions required.’ This element underscores their playful and innovative approach, seamlessly integrating local expertise into contemporary architecture.
Beyond their intriguing form, the windows within the staircase capture a subtle political narrative. As they command a view of the Har Homa Israeli colonial settlement, these windows are deliberately positioned. ‘In contrast to the neighbouring Palestinian communities, which often have limited access to electricity and appear dimly lit at night, the settlement gleams brightly,’ explains Elias Anastas. With a touch of irony, he says: ‘We’re actually harnessing the settlement’s night-time illumination to light up our staircase.’
On the middle level, one exits the staircase into a large open space. One half of the floor is used as an ‘experimental residency-based’ restaurant with a small balcony overlooking the hills and valleys of Bethlehem. The restaurant’s chairs, tables and ceiling lights are all produced by Local Industries. Next to the bar, a little booth is dedicated to Radio Alhara, literally ‘the neighbourhood radio’, which was co-founded by Elias and Yousef Anastas in 2020. The other half of the floor is dedicated to workspaces and another sizeable void overlooking the lowest floor.
This is the simplest of all floors. It includes an office for the Wonder Cabinet team with a small outdoor patio. The rest of the floor is open space, which the architects envision as a production space, including facilities for wood, metalwork, moulding and casting, and even potentially 3D printing. The voids from the two upper floors, Elias Anastas explains, allow large objects to be easily transported to street level if needed. Until now, however, the space has mainly been used for experimental music events.
The project holds substantial international promise, offering visibility in realms where Palestine has often been defined by external narratives rather than those crafted by Palestinians themselves
Standing before the building, Elias Anastas confides that the project remains a work in progress, its potential far from fully realised. He directs my attention to the roof, noting the potential for vertical expansion. ‘In the years ahead, we could add more floors, creating residencies for artists and chefs.’ Gesturing towards the substantial open space that separates the building from the street, he elaborates on their vision. ‘We see this as a dynamic area for events and a temporary local market, engaging the local community.’ He also points out a generous plot of land across from their site. ‘We’re in discussions with the owner,’ he reveals, ‘to collaborate on its revitalisation, making it available for our artists-in-residence to utilise for their art installations.’
Although it is still early to pass comprehensive judgement on the Wonder Cabinet based solely on its programming, it is evident that a nuanced equilibrium between the project’s global outreach and its local commitments is essential. Undoubtedly, the project holds substantial international promise, offering visibility in realms where Palestine has often been defined by external narratives rather than those crafted by Palestinians themselves. Simultaneously, the project’s ultimate triumph hinges on its unwavering commitment to its initial mission – one that centres on connecting with and actively involving the community it was established to serve and represent. Striking this balance adeptly will undoubtedly be instrumental in shaping the Wonder Cabinet’s lasting impact and success.
客服
消息
收藏
下载
最近
















