查看完整案例

收藏

下载
1997 - 2002
Espinet/Ubach, Arquitectes i Associats
Miquel Espinet i Mestre
Antoni Ubach i Nuet
Biblioteca de Comunicació i Hemeroteca General de la UAB
Adreça
Edifici N (Campus UAB)
Bellaterra (Cerdanyola del Vallès)
Altres Denominacions
Biblioteca de Comunicació i Hemeroteca General de la Universitat Autònoma de Barcelona
Categoria
Edifici
Tipologia
Biblioteques
L'antic campus de la Universitat Autònoma de Barcelona s'alça damunt del llit de la riera de Can Magrans. La singular topografia de la vall és salvada per mitjà d'unes estructures hipòstiles que sostenen la plaça Cívica, que, elevant-se per damunt la llera, reposa sobre la columnata.
Per la banda de ponent, on s'aixeca l'edifici que descrivim, hi ha un mur de contenció i un fossar que resolen el pas entre la plaça Cívica i la pineda superior, de gran vàlua. Els elements anteriors en fan un escenari únic en el conjunt d'universitats catalanes, pel fet que les construccions i la naturalesa hi conviuen d'una manera exemplar.
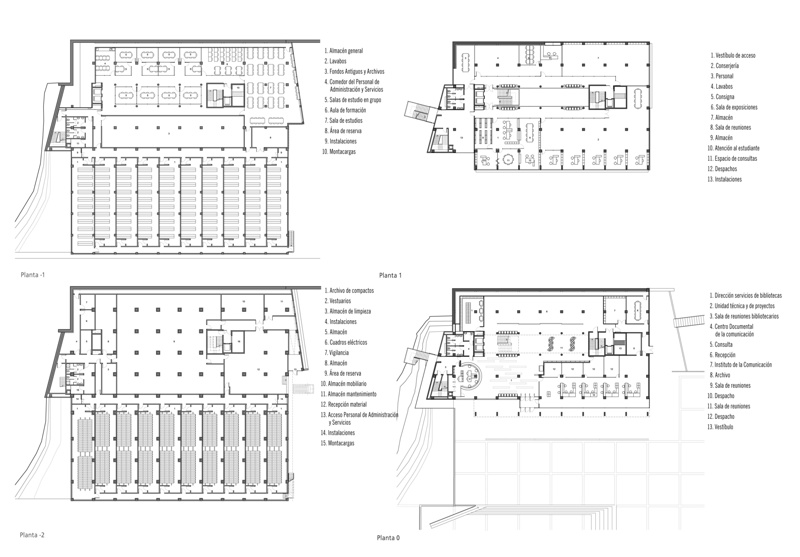
La planta baixa de l'edifici s'alça al mateix nivell de la plaça Cívica. Aquesta planta, dedicada a accessos, control, informació i servei d'atenció a l'estudiant; conté a més a més una sala polivalent. El nivell primer és destinat als serveis de Direcció de Biblioteques. Els tres altres són els propis de la biblioteca i l'hemeroteca.
La planta superior, a peu plà de la pineda, és una construcció oberta a la vegetació. Aquesta és la raó per la qual l'edifici inverteix la seva façana segons l'alçària. La paret oposada a les obertures, massissa, rep el magatzem de llibres.
Totalment al contrari, les plantes inferiors fins a arribar a la plaça Cívica s'orienten sobre la plaça i aprofiten la ceguesa del mur per enquibir-hi tots els dipòsits de llibres. En la disposició dels espais, és de notar que aquesta façana dóna a nord, l'orientació més adequada per a una biblioteca.
L'edifici, doncs, es capgira totalment per donar sentit a la diferent situació en el terreny: la plaça Cívica en un costat, i el bosquet o plaça enjardinada, a l'altre.
Autor:
Espinet/Ubach, Arquitectes i Associats
客服
消息
收藏
下载
最近






















