查看完整案例

收藏

下载
Chátrající dům z 20. let doplnila po rekonstrukci betonová přístavba
Bulharské studio I/O architects zrekonstruovalo skomírající ruinu ve starověkém městě Stara Zagora a navrátilo tak stavbě její původní eleganci. Původní hmotu doplnili architekti o jednoduchou přístavbu z bílého betonu, která doplňuje původní vzhled domu. V interiéru architekti uplatnili hru několika výrazných materiálů, jako jsou beton, původní režné zdivo nebo například černý kov.
Dům ze 20. let minulého století působil před rekonstrukcí jako romantická ruina, kterou obklopuje nová zástavba i původní prvky starověkého města Stara Zagora v Bulharsku. Navzdory své poloze v centru města byla budova od svého okolí poměrně izolována. Nová přístavba, která dům při celkové rekonstrukci doplnila, odkazuje k době vzniku stavby a nese v sobě interpretaci tehdejší modernistické avantgardy.
Použitý bílý beton jemně doplňuje strukturu i původní dispozici stavby. Pod deskami z bílého lesklého betonu se ukrývá také současná technologie domu. Díky materiálům, kompozici otvorů i přidání na první pohled protichůdných prvků spolu obě charakteristické části domu (původní a přístavba) komunikují a vzájemně se doplňují. V interiéru domu se nachází nové schodiště, které svým velkorysým zpracováním umožňuje přístup dostatku slunečního světla do centrální části celého domu.
NeoDesk
Petar Chernev
Georgi Katov
Viara Jeliazkova
Rositsa Hristova
Bulharsko
Stara Zagora
2013
2017
425.00m2
White Concrete Old House, I/O architects
White Concrete Old House, I/O architects
White Concrete Old House, I/O architects
White Concrete Old House, I/O architects
White Concrete Old House, I/O architects
White Concrete Old House, I/O architects
White Concrete Old House, I/O architects
White Concrete Old House, I/O architects
White Concrete Old House, I/O architects
White Concrete Old House, I/O architects
White Concrete Old House, I/O architects
White Concrete Old House, I/O architects
White Concrete Old House, I/O architects
White Concrete Old House, I/O architects
White Concrete Old House, I/O architects
White Concrete Old House, I/O architects
White Concrete Old House, I/O architects
White Concrete Old House, situace, I/O architects
White Concrete Old House, axonometrie, I/O architects
White Concrete Old House, půdorys_původní 1NP, I/O architects
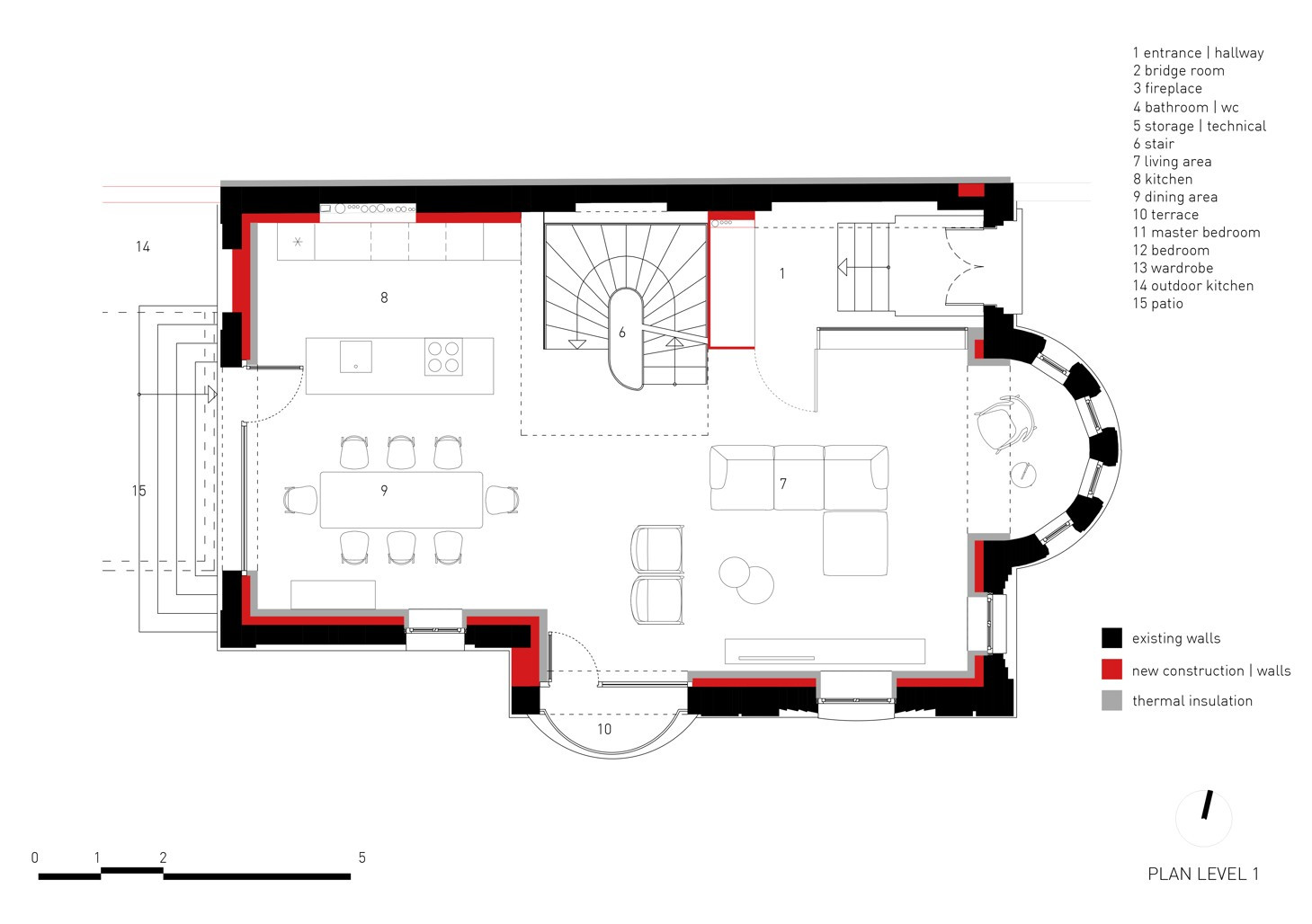
White Concrete Old House, půdorys_1NP, I/O architects
White Concrete Old House, půdorys_původní 2NP, I/O architects
White Concrete Old House, půdorys_2NP, I/O architects
White Concrete Old House, půdorys_původní 3NP, I/O architects
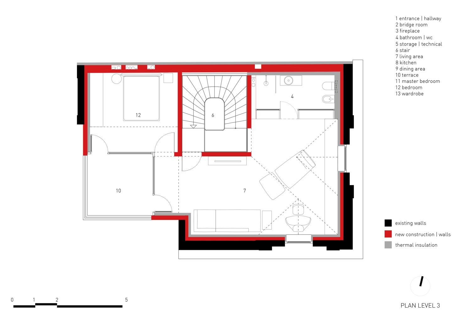
White Concrete Old House, půdorys_3NP, I/O architects
White Concrete Old House, půdorys_původní 4NP, I/O architects
White Concrete Old House, půdorys_4NP, I/O architects
White Concrete Old House, řez, I/O architects
White Concrete Old House, detail, I/O architects
White Concrete Old House, I/O architects
White Concrete Old House, I/O architects
White Concrete Old House, I/O architects
White Concrete Old House, I/O architects
White Concrete Old House, I/O architects
White Concrete Old House, I/O architects
White Concrete Old House, I/O architects
客服
消息
收藏
下载
最近

















































