查看完整案例

收藏

下载
YADOKARIが「可動産で世界を移動する暮らし」の実現に向けてオフグリッドトレーラーハウスのプロジェクトが始動!
YADOKARIが「可動産で世界を移動する暮らし」の実現に向けてオフグリッドトレーラーハウスのプロジェクトが始動!
YADOKARIが「可動産で世界を移動する暮らし」の実現に向け、オフグリッドトレーラーハウスプロジェクトを始動しました。場所やインフラに縛られない自由な暮らしを提案するこのプロジェクトでは、太陽光パネル搭載の「MIGRA」が新登場。自然の温もりを感じる木造の内装と、オフグリッドシステムによる自立した生活が魅力です。災害時には電力供給拠点としても活躍し、人々の暮らしを支えます。
オフグリッドトレーラーハウスで「可動産で世界を移動する暮らし」を実現
YADOKARI株式会社は、「可動産で世界を移動する暮らし」という壮大なビジョンの実現に向けて、新たなプロジェクトを始動しました。その中心となるのが、設置場所やインフラに縛られない
オフグリッドトレーラーハウス
の開発です。「可動産」とは、文字通り「移動可能な不動産」を意味し、YADOKARIが提唱する新しい住まいの概念です。YADOKARIは、場所やインフラの制約によって諦めざるを得なかった魅力的な遊休地を有効活用し、誰もが自由に、そして快適に暮らせる社会を目指しています。オフグリッドトレーラーハウスは、まさにその象徴と言えるでしょう。電気、水道、排水などのインフラに依存せず、自立した生活を可能にするオフグリッドトレーラーハウスは、場所を選ばない自由な暮らしを実現するだけでなく、災害時におけるレジリエンス(回復力)の向上にも貢献します。
YADOKARIはこれまで、タイニーハウスやトレーラーハウスの普及を通して、新しいライフスタイルを提案してきました。東日本大震災をきっかけに「暮らしを根本から問い直す」活動を続けてきたYADOKARIだからこそ、「可動産」という新しい概念を提唱し、人々の暮らしに寄り添った提案ができるのです。
オフグリッドトレーラーハウスは、従来の住まいの概念を大きく覆す可能性を秘めています。インフラ整備のコストや制約を気にすることなく、自然豊かな場所や、これまで活用されていなかった場所にも住むことができるようになります。これは、地方創生や遊休地活用といった社会課題の解決にも繋がります。また、災害時には独立した電源として機能し、被災地での生活を支える力となります。
太陽光パネル搭載「MIGRA」新登場!YADOKARIが災害時にも活躍するオフグリッドトレーラーハウスを開発
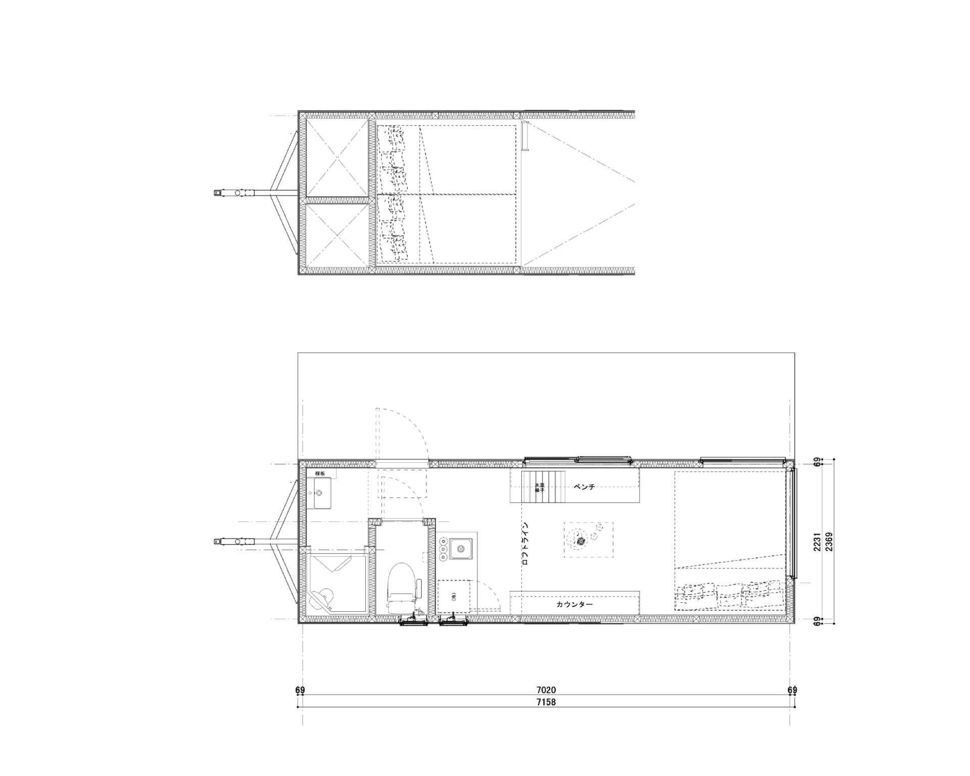
YADOKARIが開発するオフグリッドトレーラーハウスの第一弾として、太陽光パネルを搭載した「MIGRA」の新モデルが登場します。「MIGRA」は、YADOKARI初の木造トレーラーハウスシリーズとして、自然の風合いを生かした温かみのある内装と、広々としたリビングスペースが特徴です。この「MIGRA」に、株式会社モノクロームと共同開発した屋根一体型太陽光パネル「Roof–1」を搭載することで、オフグリッド生活を可能にするだけでなく、災害時にも電力供給が可能な住まいを実現しました。「Roof–1」は、金属屋根に特殊加工した太陽光セルを組み込むことで、屋根と一体化した美しいデザインを実現しています。従来の太陽光パネル設置に比べて施工が容易で、トレーラーハウスの重量や高さの制限にも対応できるというメリットがあります。
この太陽光パネルによって、天候や日照時間によって変動はあるものの、春から夏にかけては約7kWh、秋から冬にかけては約4kWhの発電が可能となります。蓄電池と併用することで、1〜2日分の電力を賄うことができ、消費した電力は太陽光によって自然と供給されます。電力不足時には通常の電力からの供給も可能で、夜間や停電時にも安心して使用できます。つまり、普段の生活では電気代の節約に繋がり、災害時にはライフラインが途絶えた状況でも電力を確保できるという、二重のメリットがあるのです。
特に災害時には、電力の確保は非常に重要な課題となります。停電が長引くと、情報収集や通信手段の確保、暖房や照明の使用などが困難になり、生活に大きな支障をきたします。「MIGRA」太陽光パネル搭載モデルは、このような状況下でも電力を供給し続けることで、被災者の生活を支える力となります。YADOKARIは、このトレーラーハウスを通して、災害に強い社会づくりにも貢献していきます。
YADOKARI VILLAGE拡大と連動!オフグリッドトレーラーハウスで新しいライフスタイルとBCP構築を支援
YADOKARIは、オフグリッドトレーラーハウスの普及と並行して、「YADOKARI VILLAGE」の拠点拡大も計画しています。「YADOKARI VILLAGE」は、トレーラーハウスを活用した暮らしの拠点であり、人々が交流し、新しいライフスタイルを体験できる場です。オフグリッドトレーラーハウスを「YADOKARI VILLAGE」に導入することで、より持続可能で自立したコミュニティの形成を目指します。また、この取り組みは、企業や自治体におけるBCP(事業継続計画)構築の支援にも繋がります。災害時における事業継続は、企業や自治体にとって重要な課題であり、オフグリッドトレーラーハウスは、その有効な解決策の一つとなります。
「YADOKARI VILLAGE」には、新しいライフスタイルを体験し、共有するコミュニティがあります。オフグリッドトレーラーハウスは、そのコミュニティを支えるインフラの一部となり、持続可能な暮らしの実現に貢献します。また、災害時には、地域住民の一時避難場所や、復旧活動の拠点としても活用できます。
企業や自治体にとって、BCP構築は重要な経営課題の一つです。大規模な災害が発生した場合でも、事業を継続し、地域社会への責任を果たすためには、事前の備えが不可欠です。オフグリッドトレーラーハウスは、独立した電源を確保できるため、災害時でも事業活動を継続するための拠点として活用できます。また、従業員や地域住民の一時避難場所としても機能し、企業の社会的責任を果たす上で大きな役割を果たします。
「可動産で世界を移動する暮らし」を具現化する革新的な住まい
YADOKARIのオフグリッドトレーラーハウス「MIGRA」は、「可動産で世界を移動する暮らし」というビジョンを具現化する革新的な住まいです。太陽光パネルと蓄電池によるオフグリッドシステムは、自由な暮らしと災害時のレジリエンスを提供します。YADOKARI VILLAGEとの連携は、持続可能なコミュニティの形成とBCP構築を支援し、より豊かな社会の実現に貢献します。新しいライフスタイルを求める方、災害対策に関心のある企業・自治体の方は、ぜひYADOKARIの取り組みにご注目ください。
客服
消息
收藏
下载
最近










