查看完整案例

收藏

下载
Škôlka v Opole, Poľsko
Autori:
Józef Franczok, Marcin Kolanus
Spolupráca:
Józef Franczok, Mateusz Mikołajów, Monika Smorąg, Zofia Fedorów, Patryk Germata (statika)
Investor:
Pro Liberis Silesiae
Plocha pozemku:
1 469 m2
Podlažná plocha:
457 m2
Návrh:
2019 - 2019
Realizácia:
2019 - 2020
Adresa:
Opole,
Poľsko
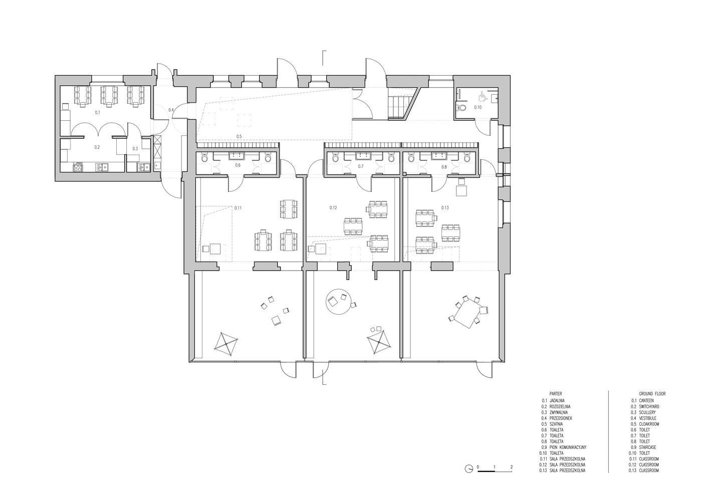
Realizácia v stotisícovom sliezskom meste Opole, nominovaná v rámci poslednej edície EU Mies Award.
Wroclavský ateliér
PORT Architekci
prestaval a rozšíril budovy v areáli bývalej školy. Dnes tu sídli materská škola, ktorá optimálne využíva priestor pôvodných objektov a ťaží z ich vzájomného usporiadania.
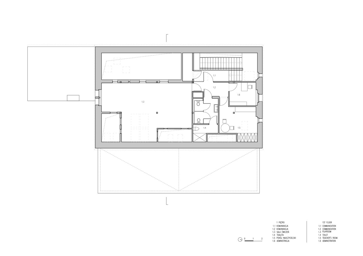
Do pôvodného obrysu vonkajších stien bývalej školy vniesli architekti nové funkčné usporiadanie s novými vnútornými stenami, stropmi, podlahami a strechou. Vzhľadom na priestorové nároky bolo potrebné pôvodný blok rozšíriť. Architekti sa rozhodli pre novú kontrastnú presklenú časť, ktorá v druhom pláne odhaľuje pôvodné murivo.
“Prístavba bola nevyhnutnosťou z dôvodu nedostatočného priestoru existujúcej budovy. Chceli sme však stále zachovať čitateľnosť proporcií budovy a jej historickú fasádu. V rámci interiéru vznikol ´teplý dvor´ - priestor kde majú deti aj počas nepriaznivého počasia vizuálny kontakt s prírodou,"
dopĺňajú architekti.
Okno do sveta
Interiér materskej školy charakterizuje vrstevnatosť. Architekti pracujú s odhalenými povrchmi a prvkami, ktoré jasne prezrádzajú dobu svojho vzniku. Pôvodné režné murivo strieda pohľadový betón, alebo masívne drevo. Dôležitá je tiež práca s denným svetlom, a celková atmosféra, ktorú podčiarkuje dôležitá zložka horného osvetlenia. Interiér charakterizujú tiež zachované priehľady, priechody a prepojenia, prispôsobené detskej ergonómii. Zjednodušujú jednak prácu vychovávateliek, ale hlavne otvárajú oči deťom a povzbudzujú v nich chuť objavovať a spoznávať.
Malá hospodárska budova, ktorá pôvodne slúžila ako dielňa zmenila svoju funkciu na spoločný polyfunkčný priestor, ktorý rozširuje kapacitu materskej školy.
“Napriek tomu, že si objekty - s výnimkou prístavby, zachovávajú svoju historickú obálku, interiér je pestrým mixom historických a súčasných foriem. Objem vypĺňajú rozmanité priestory, prispôsobené potrebám najmenších. Variabilné výšky, nezvyčajné miesta na hru či oddych… Otvory v stenách môžu byť bodom pre interakciu či posedenie, presklenie medzi miestnosťami dáva možnosť nahliadnuť do neprístupných zákutí a z podkrovia sa dostanete na poschodie vďaka šmýkačke,”
vysvetľujú autori.
Budova s príbehom
Architekti na mnohých miestach vytvárajú nevšedné obrazy. Zachované fragmenty múrov odhaľujú svoju štruktúru - raz je to starý preklad, inokedy tehla, alebo kamenné murivo. Ako zdôrazňujú autori projektu - výsledok pôsobí na rôzne zmysly: budova prejavuje svoju drsnosť, vôňu prírodného materiálu, zmenu, starnutie. Ako zdôrazňujú architekti:
"snažili sme sa zachovať to, čo považujeme za hodnotné. Páčili sa nám budovy aj ich dispozičné riešenie, priestor medzi nimi, vzájomný vzťah a história. Tiež by sme chceli mladým užívateľom ukázať, ako budovy žijú a menia sa a ako fungujú základné konštrukčné prvky.”
Podklady:
PORT Architekci
Fotografie: Stan Zajączkowski
客服
消息
收藏
下载
最近






















































