查看完整案例


收藏

下载
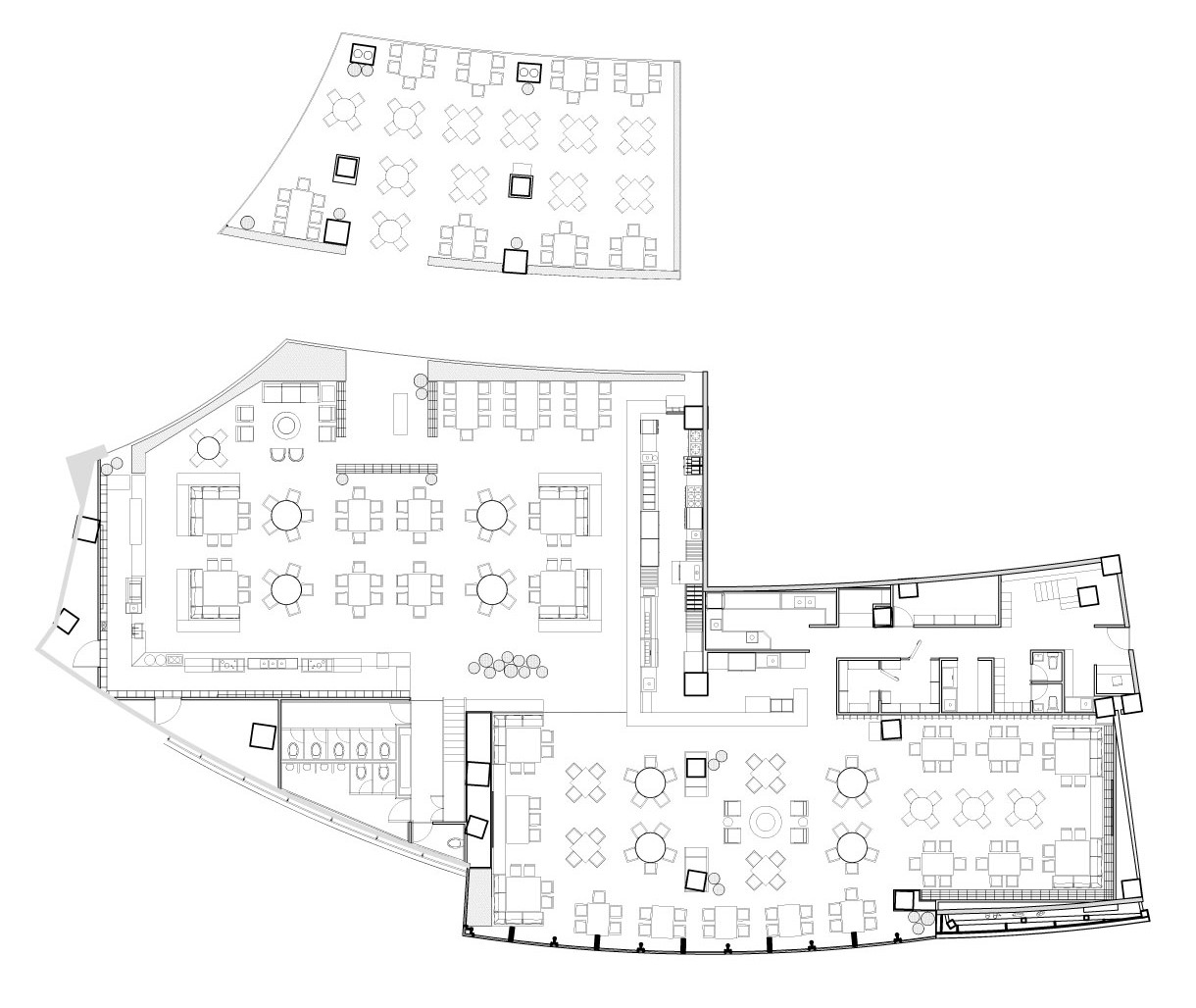
Dentro del Central o comercialMundo E,en el estado de México se planteóuna nueva ubicación del aurante en la planta Suder de la plaza。
Easte proyecto busca,generar un uviente Reljado e非正式a través de los Materiales y los diferentes planos Espaciales。Seprouso retomar algunos Elos parentes y desastados组合体conMadera y mármol parcrear un espacio cálido。
El espacio cuenta con dos volúmenes principales que delimitan el espacio, el primero de ellos es un sólido de granito negro que recorre parte del salón de no fumadores funcionando como barra de mixología y en donde se realizó una contrabarra a base de nichos de varilla, los cuales tienen un fondo de espejo que genera una mayor profundidad al espacio y una yuxtaposición de elementos que crean diferentes planos visuales en el espacio.
Del otro lado se encuentra un Voluma de láMina Oxadada recuberto Por una Celosía de Madera avejentada que Además de crear una senación de dinamismo en el espacio,Permite Concontener lasáreas de servicio del aurante,dedoúnicamente la coiina a la vista de los comensales。
igualmente,Detro de aster Segundo salón,se encuentran Elementos de Varilla que mantienen coherencia de diso a través de as disintas zona。
Firm PASQUINEL Studio
Type Hospitality + Sport › Restaurant
STATUS Built
YEAR 2017
SIZE 10,000 sqft - 25,000 sqft
keywords:architecture, architecture news, interiors, interior design, portfolio, spec, brands, marketplace, products Sonora Grill Mundo E
关键词:建筑,建筑新闻,室内设计,组合,规格,品牌,市场,产品Sonora Grill Mundo E
客服
消息
收藏
下载
最近


















