查看完整案例

收藏

下载
Kocanda Kravsko II
Feyza ÇINAR
Kocanda Kravsko II
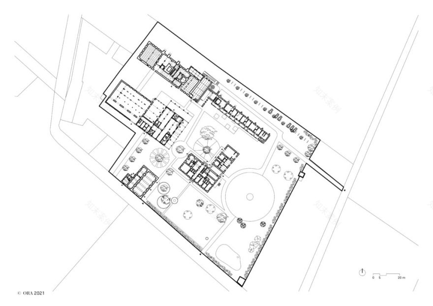
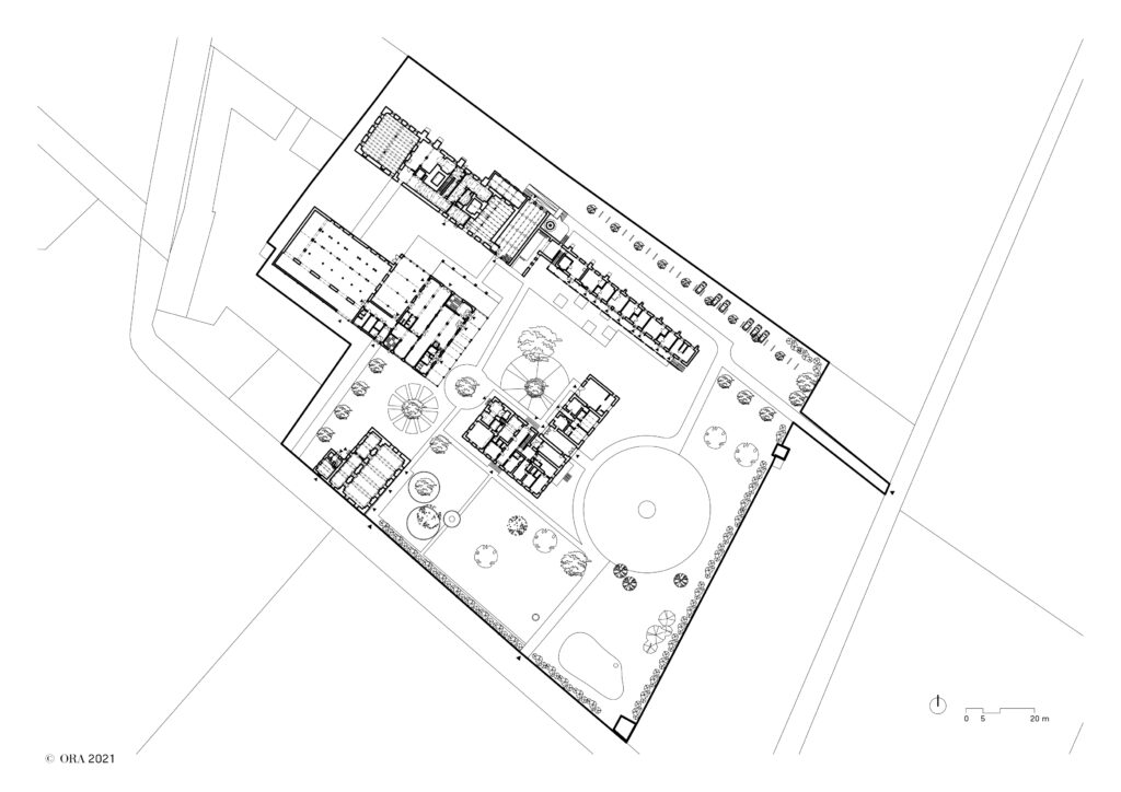
Kravsko’daki eski seramik fabrikasının dönüştürülmesinin ikinci aşamasını ele alan proje ORA (original regional architecture) tarafından tasarlandı.
Orijinal Barok kompleksi, Prag-Viyana yolu üzerinde bir han olarak inşa edilmiş. 19. yüzyılın ikinci yarısında ünlü bir seramik fabrikasına dönüştürülmüş ve yeni binalarla genişletilmiş. Üretim burada yüz yıldır faaliyet göstermiş. Ancak kısa süre sonra, diğer birçok eskimiş endüstriyel tesisin kaderiyle karşılaşılmış. Üretim durmuş, alan el değiştirmiş ve uzun vadeli bakıma muhtaç hale gelmiş. Kravsko’dan gelen şu anki sahipleri ise, alanı sosyal etkinlikler ve macera turizmi için yeniden geliştiriyorlar.
Tasarımcılar projeyi şu şekilde anlatıyor:
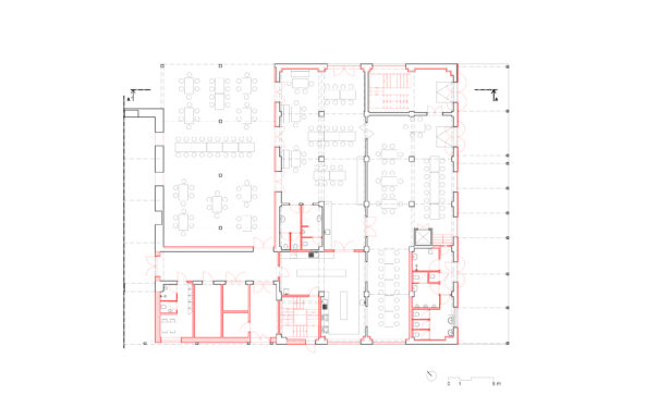
Fabrika
Arazide uzak mesafeden görülebilen ana simge fabrika bacası. Bacayı taçlandıran ve doğal olarak ziyaretçiyi ona doğru çeken bir neon daire yerleştirildi.
Orijinal fabrika bacasının yanındaki kısmı artık kabul alanı ve personel tesisi olarak kullanılıyor. Binaya renkli betondan yapılmış bir rampa ile giriliyor. Arazinin aksları başlangıçta farklı bir yöne bakıyordu, ancak operasyonel sebepler ve mülkiyet nedeniyle artık bunları takip etmek mümkün değildi. Mevcut giriş, eskiden arazide arka taraf olduğundan, ziyaretçinin ilk bakışta dikkatini çekecek, ayırt edici yeni bir çekicilik yaratmak gerekli oldu. Rampa ve merdiven ziyaretçileri karşılıyor ve onları içeriye yönlendiriyor.
Şu anki resepsiyon alanı eskiden kilin karıştırıldığı yerdi. Üretimi durdurulan mikserler, bir zamanlar terk edildikleri orijinal konumlarında bırakıldı. Tüm alan endüstriyel karakteri ile bırakıldı. Bir duvar boyunca, içine çömleklerin döküldüğü alçı kalıplardan bir enstalasyon oluşturuldu. Burada kalıplar sütunlar halinde istiflenip sadece anlamını yitirmiş ama yine de güzel olan estetik nesneler olarak bırakıldı.
Alçı Kalıp Deposu
Yapı
Burası alçı kalıplarının orijinal deposu. Yapı üç katlı, uzun bir plana sahip. Tonozlu mahzenler güneydeki yamaçtan girintili. Zemin kat tuğla, ikinci kat ahşap karkasla taşınıyor. Duvar kısmen seramik dökümü için kullanılan eski alçı kalıplardan yapıldı.
Koruma
Binaların yeni bir amaç için dönüştürülmesi, basit bir tadilattan daha fazla müdahale gerektiriyordu. Proje, eski bir deponun konaklama tesisine dönüştürülmesini ele alıyor. Yapının 6 metreden daha dar olması nedeniyle içeriye koridor yapılması mümkün olmadı. Özellikle ikinci katta, bu, korunmuş ahşap çerçeveler üzerinde önemli bir etki anlamına geliyordu. Bu yüzden, üst odalar için bir koridor görevi gören ve yoğun çıta sayesinde güney tarafında arzu edilen bir eşik oluşturan ayrı bir galeri tasarlamaya karar verildi. Galeri/sundurma, başlangıçta yakacak odun olarak kullanılması amaçlanan ikinci kalite meşe keresteden yapılmış.
Zemin kattaki odaların sundurmaya direkt erişimi var. Kuzeyde, eski fabrika pencerelerinin çelik çerçeveleri korundu. Yeni pencereler onların arkasına yerleştirildi. Çerçeveler, pencere pervazlarının alçak olması nedeniyle düşmeye karşı bariyer görevi gören bir ızgara oluşturdu. Aynı zamanda açıklıklar orijinal bölümlerini koruyor.
Binanın orijinalliğini mümkün olduğunca korumaya özen gösterildi, bu da tasarımcıları binanın içini ikinci katta yalıtmaya zorladı. Bu, şaşırtıcı bir şekilde hala iyi durumda olan orijinal ahşap, tozlu cephenin yerinde kalmasını sağladı. Yapı bu nedenle ifade açısından pek değişmedi. Makaslar yapısal olarak korundu. Binanın doğu cephesi, tamamen camla kaplı olduğundan ve bu nedenle manzara üzerinde uzaktan görüş sağladığından, en önemli dönüşüme uğradı.
İç Mekan
Zemin kattaki odalar sade, aydınlık alanlardır. Banyolar buzlu camlı çelik çerçevelerle ayrılarak iyi aydınlatıldı. Üst kattaki odalara, sökülüp yeni döşeme olarak kullanılan çıplak kirişler ve orijinal levhalar ile özgünlük kazandırıldı. Tüm bunlar, masa, abajur veya tamamen estetik objeler olarak kullanılan alçı kalıplarla tamamlandı. Bu nedenle, orijinal olarak burada depolanan kalıplar, azaltılmış sayılarda yerinde bırakıldı.
Ayıklama Tesisi
Eski tasnif tesisinin yapısı, tüm kompleksin en küçüğü. Geçen yüzyılın ortalarından kalma olan yapı tarihi olarak diğerleri arasında daha az değer görüyor olsa da o dönemde tamamen amaca yönelik olarak yapılmış endüstriyel yapılaşmanın güzel bir örneği. O zaman bile inşaat malzemeleri inşaat sırasında geri dönüştürüldü. Burada geleneksel bir tasarım yaklaşımı izlendi.
Kutlama Alanı
Endüstriyel yapılar, sosyal etkinliklerin düzenlenmesi için ideal bir şekilde dönüştürüldü. Açık planları ile etkinliklerle doldurulabilecek çok yönlü bir alan sunuyor. Yapı şimdi zemin katta mutfaklı bir restorana ev sahipliği yapıyor. Restoranın bitişiğinde, kaldırılan ve çatısı camla değiştirilen basit bir çelik yapı olan sera var. Çatı katına, kendi başına bir sanat nesnesi işlevi gören ağır çelik kaynaklı bir merdivenle erişiliyor. Çatı katında özgünlüğü korunan geniş bir salon bulunuyor. Tüm yapılar asırlık aşınma ve yıpranma izleri ile orijinal.
Kocanda Kravsko
Proje Yeri: Çek Cumhuriyeti (Çekya) Kravsko
Proje Ofisi: ORA (original regional architecture)
Tasarım Ekibi: Barbora Hora Jan Hora Jan Veisser Maroš Drobňák
İşveren: ITVV
Peyzaj Projesi: Klára Jordánová
Fotoğraf: BoysPlayNice
Proje Başlangıç Yılı: 2019
Proje Bitiş Yılı:
İnşaat Başlangıç Yılı: 2022
İnşaat Bitiş Yılı: 2022
Toplam İnşaat Alanı: 6850 m2
客服
消息
收藏
下载
最近












































































