查看完整案例

收藏

下载
位于葡萄牙维拉杜孔德历史核心区的Concerto餐厅,其改造项目的首要目标,是通过修复原建筑中的关键元素,提升既有建筑遗产价值,恢复其应有的尊严与美学表达,同时将空间功能适配为当代餐厅的使用需求。
The intervention carried out at Concerto restaurant, located in the historical heart of Vila do Conde, aimed primarily to enhance the existing architectural heritage by restoring key elements of the original building and returning its dignity and aesthetic expression, while adapting the space to meet the requirements of a contemporary restaurant.
▼餐厅外观,exterior of the restaurant ©Ivo Tavares Studio
在整个设计过程中,团队特别注重保留建筑的独特身份,在尊重原有建造特征的基础上,将其巧妙融入新的设计提案中。此前受损或被忽视的构件——如带有装饰图案的天花板与木质线条——被细致修复,并纳入全新的空间布局之中,从而加强了过去与当下之间的联系。
Throughout the process, special attention was given to preserving the identity of the building, respecting its original construction features and integrating them into the new design proposal. Previously damaged or neglected elements, such as an ornamental ceiling with decorative motifs and wooden mouldings, were carefully restored and incorporated into the new layout, reinforcing the connection between past and present.
▼餐厅概览,overview of the restaurant ©Ivo Tavares Studio
在材料与装饰的选择上亦格外审慎,旨在于场所历史与其新功能之间建立对话。天然石材(如大理石)与现代元素相结合,包括内敛的技术照明与高耐久度饰面,共同营造出一个温馨、实用而真实的氛围。
The selection of materials and decor was made with particular care, aiming to establish a dialogue between the site’s history and its new function. Natural materials such as marble were combined with contemporary elements, including discreet technical lighting and high-durability finishes, resulting in a welcoming, functional, and authentic atmosphere.
▼天然石材与现代元素相结合,
natural materials such as marble were combined with contemporary elements ©Ivo Tavares Studio
▼大理石吧台,marble bar counter ©Ivo Tavares Studio
▼大理石细部,marble detail ©Ivo Tavares Studio
▼灯光细部,lighting detail ©Ivo Tavares Studio
项目力求保留原建筑的亲密氛围,采用克制而优雅的色彩体系,以突出建筑细节,并提升自然光的表现。所有干预措施皆以尊重与敏感度为前提,在传统与现代之间达成和谐共处。
The project sought to maintain the intimate ambiance of the original building, using a sober and elegant colour palette that highlights the architectural details and enhances natural light. All interventions were conceived with respect and sensitivity, creating harmony between tradition and modernity.
▼采用克制而优雅的色彩体系,using a sober and elegant colour palette ©Ivo Tavares Studio
▼营造亲密氛围,maintain the intimate ambiance ©Ivo Tavares Studio
最终呈现的空间既是对历史遗产的礼赞,也具备当代的舒适性与功能性,邀请宾客在充满情感与故事的环境中,享受一场别具韵味的用餐体验。
The result is a space that celebrates heritage, offers comfort and functionality, and invites guests to enjoy a dining experience in a soulful environment, where every element tells a story.
▼具备当代的舒适性与功能性,offers comfort and functionality ©Ivo Tavares Studio
▼具备当代的舒适性与功能性,offers comfort and functionality ©Ivo Tavares Studio
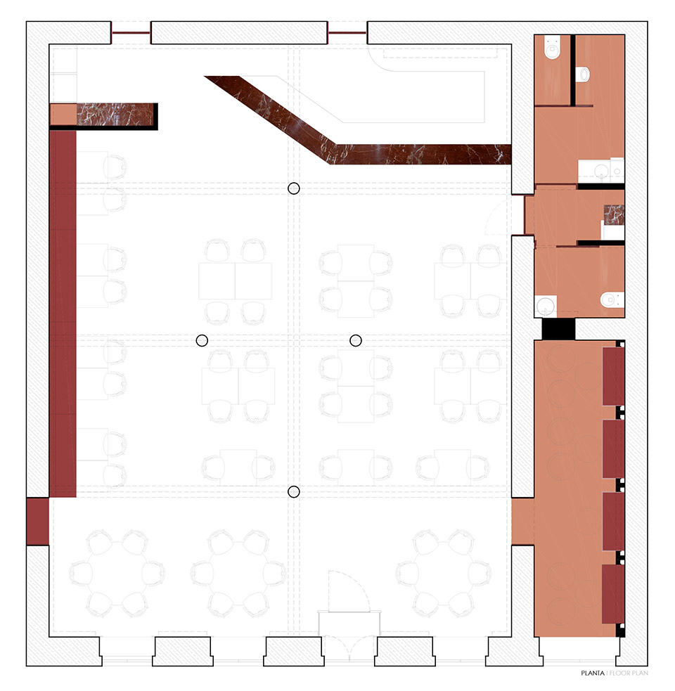
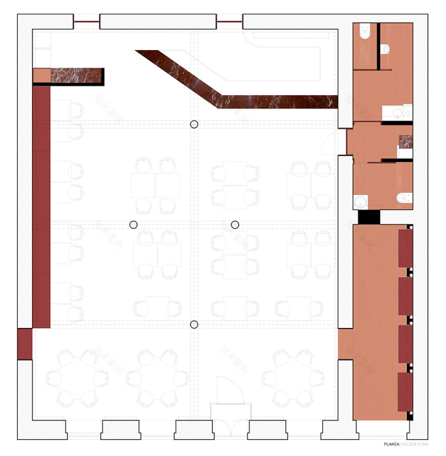
▼平面图,plan ©MiMool Arquitectura & Interiores
▼室内立面,elevation ©MiMool Arquitectura & Interiores
Project name: CONCERTO
Architecture Office: MIMOOL ARQUITECTURA & INTERIORES
Interior Design: MIMOOL ARQUITECTURA & INTERIORES
Main Architects: ANA FERREIRA, FÁBIO MILHAZES, JOANA MONTEIRO, RUI LOUREIRO
info@mimool.pt
Instagram:
Location: VILA DO CONDE, Portugal
Year of conclusion : 2025
Total area: 195m2
Builder CRAVEIRO & CRAVEIRO
Instagram:
Email:
Architectural photographer: Ivo Tavares Studio
Website :
客服
消息
收藏
下载
最近






































