查看完整案例

收藏

下载
项目名称:台湾立阳开发总部
位置:台湾
设计单位:SOAR Design
图片数量:50张
项目外观
在这座开发商总部大楼中,工厂钢结构构成了空间布局的基本轮廓,呼应其最初作为砖窑起家的创立背景。空间被解构并依序嵌入。区别于传统商业空间的设定,设计强调“向社区开放”,将品牌愿景向公众敞开,融合再诠释的工厂美学与台湾森林印象于城市之中。
亮点概述:解构与重组的建筑形态回应了工厂的构建逻辑与有机的城市立面;
具公共性与零售功能的开放空间模糊了企业建筑的边界感;流动而开放的体量连接内外空间,提供自由游走的城市体验。
该项目的委托方是一家关注“地方感”营造的开发商,此次总部建筑成为其城市友好理念与创新都市美学的宣言。设计摒弃了常规的盒状体量,通过不拘一格的建筑表达呈现品牌愿景。建筑融合公共与零售空间,以开放姿态向城市展开,打破企业建筑通常带来的封闭界限。通过多功能复合的设计,项目尝试重新诠释台湾城市中拼贴式的空间语境,巧妙地将自然山林氛围与工业建筑语言融合为一种新型都市原型。建筑构成遵循“形式追随功能”的逻辑,就像在工厂中,控制室会因功能需求临时添加一样。
由不同几何形态构成的体块群,取材于对工厂结构的观察,以有机的形式呈现。这些单元嵌入钢结构框架中,并根据基地轮廓设置角度,扇形布局模糊了立面与流线的等级秩序。连续转角空间的体量变化,让光影在日照变化中流动。连接首层与二层的外部楼梯刻意错位,呼应工厂空间的碎片化特征。常见于工厂的材料在此被真实呈现,几乎不加修饰,保留工业环境的原始质感。
整体体量通过层叠与多样几何构成,最大化不同体块之间的留白与通透开窗,使内部环境能够感知周边氛围。开放流动的空间形态在建筑解构与重组的过程中,尝试搭建人与城市街道之间的桥梁。更亲切的尺度也促使建筑与城市之间发生更多互动。靠近街道的部分设置了咖啡馆、书店与休憩空间,企业功能则被有意识地退后为次要空间。该项目重新定义了新城高楼林立中的街角建筑原型,让企业总部更深入地介入城市公共生活。
呼应台湾山林的有机性,交错的几何体构筑出沿建筑边界流动而自由的动线,引导人们穿梭、停留与探索。搭配景观与植物的布置,营造出一种自然野境逐步渗入城市的氛围。基地周边大量种植台湾原生植物,如台湾杉与蕨类,形成一种可渗透的视觉屏障,也将访客引入如山林步道般蜿蜒的感官旅程。
森林、城市景观与工厂结构是台湾所熟悉的有机生态类型。这三种“极具台湾特质”的元素在本项目中被精心结合,形成一座富有在地文化的建筑。它不仅止步于形式层面,更进一步反映社会的内在状态,呈现出自然、建筑与城市文化三者的交织图景。
该项目不仅是一种对城市构造的观察叙述,更是对台湾当前城市“拼贴式、有机却失序”的现象进行翻译与重构,将常被视为负面的空间状态,转化为一种引人入胜、富有表现力的建筑语言。它提供了对文化的不同视角,促使人们思考与和解积累的过往,同时也强调变革的必要性。
项目街景
项目街景
构建有机的城市立面
开放空间模糊建筑的边界感
开放空间模糊建筑的边界感
以开放姿态向城市展开
关注“地方感”营造
遵循“形式追随功能”逻辑
结构爆炸图
体现工业建筑般不加修饰的质感
咖啡馆、书店与休憩空间
环境分析
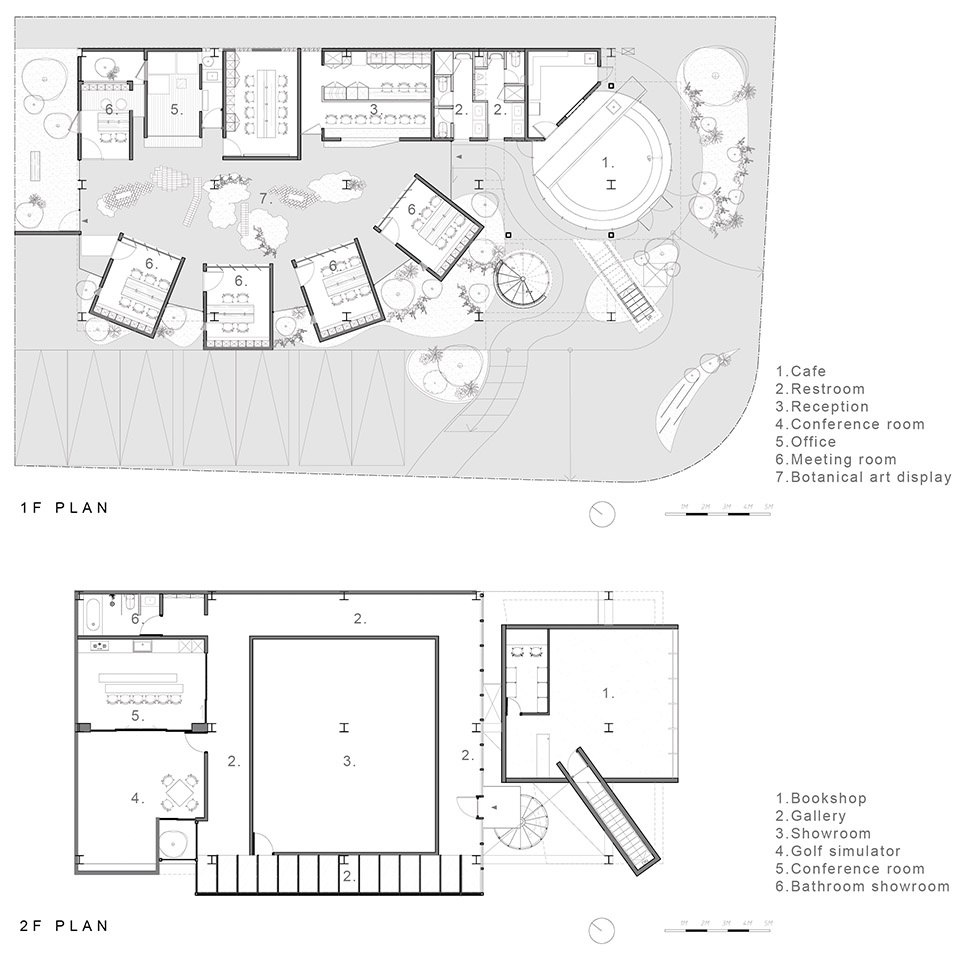
平面图
面积: 728平方米年份: 2024年照片: Studio Millspace首席建筑师: Ray Chang类别: 办公楼设计团队: 林一秀,王琦宁城市: 新北市
客服
消息
收藏
下载
最近
















