查看完整案例

收藏

下载
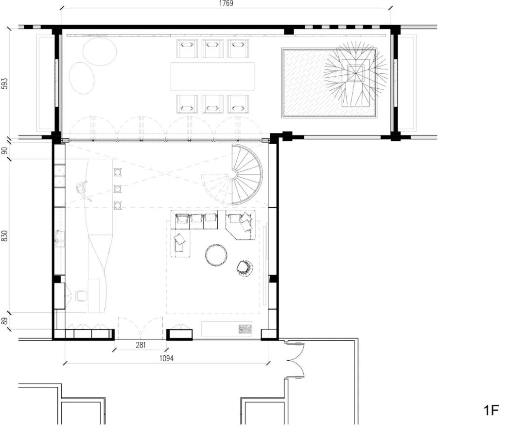
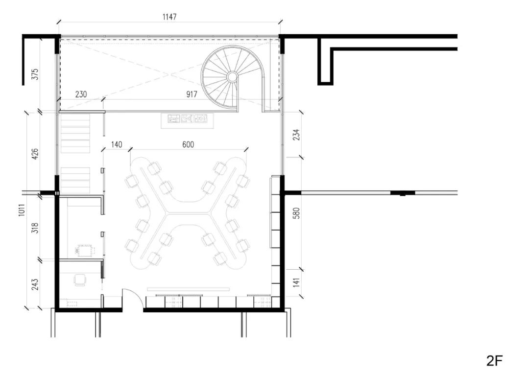
"九号交响曲"办公空间以贝多芬经典乐章为灵感,将音乐的节奏与韵律转化为三维设计语言。流畅的曲线墙面如同五线谱般起伏,不同功能区域对应交响乐中的乐章变化,创造出充满音乐性的工作环境。
The design translates musical cadence into spatial form—undulating walls mimic staff lines while functional zones echo symphonic movements.
大提琴共鸣箱木材被解构为会议室隔断,铜管乐器碎片重组为艺术装置。这些音乐元素既作为装饰,又通过材质特性优化空间声学效果。
Deconstructed instrument components serve dual purposes—visual storytelling and acoustic enhancement.
定制灯光系统随音乐节奏变换明暗与色彩,投影在曲面墙上的光带如同跳动的音符。自然光透过穿孔金属板,在地面投射出乐谱般的阴影图案。
Dynamic lighting choreographs a visual symphony—projected beams dance across walls like musical notations.
开放式办公区采用波浪形工位布局,模仿交响乐中的旋律流动。重点协作区突然抬高的地台设计,如同乐曲中的强音转折。
Fluid workstation arrangements mirror melodic phrasing, with elevated platforms marking collaborative crescendos.
吸音棉造型取自声波图谱,隐藏在天花与墙面的专业隔音层。不同区域拥有独特的混响参数,模拟音乐厅的声场效果。
Sound-absorbing elements shaped like audio waveforms create zone-specific acoustics.
冷蓝色调的工作区对应舒缓乐章,暖橙色的头脑风暴区呼应激情段落。过渡空间的渐变色彩象征调性转换,引导使用者情绪变化。
Color transitions mirror musical moods—cool blues for focus, warm oranges for creativity.
每个工位配备触控式音乐面板,可调节个人工作环境的背景音效。中央控制台如同指挥台,统一协调全空间的声光氛围。
Individual sound controls and a central "conductor's console" empower personalized sensory experiences.
意大利古董钢琴漆面与现代碳纤维材质并置,乐谱架改造的展示台搭配智能显示屏。这种碰撞体现对音乐传统的尊重与创新。
Antique piano finishes contrast with futuristic materials, bridging musical heritage and innovation.
圆形会议区采用阶梯式设计,模仿交响乐团排位。可旋转的玻璃白板如同乐谱架,记录即兴创意碰撞。
Tiered meeting areas emulate orchestra seating, with swiveling whiteboards capturing creative improvisations.
从入口的《欢乐颂》主题墙到茶水间的节拍器装置,每个细节都强化音乐主题。这里不仅是办公室,更是献给音乐爱好者的立体交响诗。
Every detail composes an immersive ode to music—a three-dimensional symphony for the senses.
客服
消息
收藏
下载
最近




















