查看完整案例

收藏

下载
“美,不存在于物体之中,而存在于物与物产生的阴翳的波纹和明暗之中。夜明珠置于暗处方能放出光彩,宝石曝露于阳光之下则失去魅力,离开阴翳的作用,也就没有美。”——《阴翳礼赞》谷崎润一郎
“Beauty lies not in the object itself, but in the interplay of shadows and light,the delicate ripples of darkness cast between objects. A luminous pearl shines only in the depths of shadows, while a gemstone loses its allure under direct sunlight—without the presence of shadows, there can be no beauty.”—In Praise of Shadows, Jun’ichirō Tanizaki
© 拍摄及剪辑:刘松恺
凪Nagi,在日语里的意思是风浪后的平静。项目坐落于都市繁华与自然静谧的交界处:黄浦江边滨江大道1368号。我们希望构筑一方风浪过后的归心之所,体会喧嚣背后的平静之美。
Nagi, meaning “calm after the storm” in Japanese, reflects the essence of this project. Nestled at the intersection of urban vibrancy and natural serenity—No. 1368, Binjiang Avenue, along the Huangpu River —we sought to create a sanctuary of tranquility after the storm, a place to rediscover the beauty of stillness beyond the clamor.
▼项目概览,Overall view© 刘松恺
▼石板转折铺陈,穿过疏林抵达,A winding stone path leads through a sparse woods © 刘松恺
青石板路转折铺陈,将人带入幽静的林间。木制格栅作为外立面界定了空间,暖光自格栅背后的和纸透出,引人趋近。
A winding bluestone path leads visitors into the secluded woods. Wooden lattices define the facade, with warm light filtering through washi paper screens, inviting approach.
▼外立面,Facade © 刘松恺
掀动黑色暖帘,迈入玄关,光线经立面水纹玻璃砖传递,在墙面漾开第一道涟漪。弧光勾勒出转角墙线,引导视线转向店招。“凪”字镌刻于透光白玉大理石,被背后漫射的柔光轻轻托起。
Lifting the black curtain, guests step into the foyer, where light passes through textured glass bricks, casting the first ripples across the walls. A soft arc of light traces the corner, guiding the eye toward the storefront sign. The character Nagi, carved into translucent white jade marble, appears to gently float on it by a diffused glow.
▼入口玄关,Entrance Foyer © 刘松恺
▼光与影,入口端景,Light and shadow of the recessed niche vignette© 刘松恺
▼店名镌刻于透光玉石与玻璃砖水纹灯,Carved logo and ripple light of glass bricks© 刘松恺
入户格栅门打开,正对一处凹龛端景。背后的黑色圆弧墙向两侧渐隐,恰似涟漪无声消退。射灯落下在地面形成一道温柔的光域,将摆件推出,在幽暗与微光的平衡中展露阴翳之美。
Beyond the lattice door lies a recessed niche vignette. A curved black wall recedes subtly on either side, like fading ripples. A spotlight carves a gentle pool of light on the floor, highlighting an art piece—revealing the beauty of shadows in the balance of darkness and soft illumination.
▼端景凹龛,The recessed niche vignette © 刘松恺
抚着幽暗长廊的木纹肌理前行,长谷川等伯的《松林图》在弧形和纸玻璃屏风上展现,那些用干笔勾勒的松枝在光影中更为生动。底部的黑色大理石呈现出由静至动的波纹造型,当松影被侧光投至水域,粼粼波光中仿若惊起暗藏的水声。
Moving along the textured wooden walls of the dimly lit hallway, Hasegawa Tōhaku’s Shorinzubyoubu unfolds on washi-glass screens, the dry-brushed pine branches animated by shifting light. Below, black marble transitions from stillness to motion in wave-like patterns. As pine shadows fall upon the “water,” the play of light is reminiscent of the faint sound of hidden ripples.
▼松林屏风,风波微起,Screen of pine trees, ripples stir softly © 刘松恺
转至板前,两片巨大的弧形墙体如手握般嵌合,分别自头顶上方与背后两侧温和包裹,将所有目光汇聚于主厨的料理舞台。主厨师傅至一侧门帘走出,静立于整面弧形大理石中央。
At the Itamae area, two sweeping curved panels converge like closed palms, gently enveloping guests from above and behind, focusing all attention on the chef’s stage. The chef emerges from behind a curtain, standing framed by a curved marble wall.
▼板前入口,The entrance to the Itamae area © 刘松恺
▼弧线相互嵌套包裹的空间,A space enveloped by interlocking nested curves © 刘松恺
一整列格栅吊灯巧妙调和了两种照明手法,令空间光线由柔和的背景光渐次过渡到桧木台面的聚光照明。当寿司呈于台前,明亮柔和的灯光让新鲜的鱼生仿佛可以看到指尖的温度。备餐区、衣帽间等辅助功能皆隐于背后,让所有焦点都凝聚在这场美食演绎之中。
A row of lattice pendant lights masterfully blends ambient and spotlighting, transitioning from soft background glow to the focused illumination on the hinoki counter. As sushi is presented, the glistening sashimi seems to retain the chef’s touch bathed in tender light. Supporting spaces like the prep area and cloakroom are discreetly concealed, ensuring the spotlight remains on the culinary performance.
▼舞台化的板前照明,Dramatic Itamae Lighting © 刘松恺
▼格栅吊灯,Linear Grid Pendant Light © 刘松恺
▼格栅吊灯细节,Linear Grid Pendant Light detail © 刘松恺
透过格栅门回望走廊,人影松影交织。
Peering back through the lattice door, silhouettes of figures and pine shadows intertwine.
▼板前回望,Look back from Itamae area © 刘松恺
卫生间藏于走廊暗门之后,木质、镜面、黑石与微水泥形成细腻材质对比。
Hidden behind a concealed door in the corridor, the restroom contrasts wood, mirror, black stone, and micro-cement in a play of refined textures.
▼卫生间,The restroom © 刘松恺
几处空间转换皆以圆弧过渡,配合光影勾勒空间特质。▼空间中的弧线,Curves in the space © UN-GROUP 未集建筑
Key spatial shifts are softened by arcs, accentuated by light and shadow.
▼板前的弧线,Curves in the Itamae © 刘松恺
▼材质细部,Material details© 刘松恺
玄关和景观区以平面曲线引导。入口处以水纹灯洗亮弧形墙面;景观凹龛孤灯一盏聚焦端景,搭配包裹式背景形成视觉停顿;卫生间入口隐于暗处;景观屏风则以整面灯光凸显《松林图》,尾端弧线指引客人转入板前。
Foyers and viewing areas are guided by single-layer curves. Water-patterned lighting washes the arched wall at the entrance, while a solitary spotlight highlights the focal point in the vignette, framed by a wrapped backdrop for visual pause. The restroom entrance is discreetly tucked away, while the landscape screen highlights Shorinzubyoubu in a whole surface of light, with its end arc guiding guests toward the dining area.
▼入口水纹灯和弧形玻璃屏风,Ripple light and curved screen© 刘松恺
板前区以三维曲线围合。入口处内凹转角形成节奏缓冲。顶部曲线延伸至大理石背景墙,内嵌灯带晕染出优雅弧度。背后曲面随光影渐隐,完成柔和的明暗过渡。温柔的弧线是悄然不觉的引导,也是模拟双手合握时寿司的温度。弧线随光影凸显,也因阴翳消隐,明暗间熠熠生辉。
Itamae Area is enclosed with 3D curves. An indented corner at the entrance creates a rhythmic buffer. The sweeping curve ascends into the marble feature wall, with embedded lighting softly bleeds along its contour. The receding surface dissolves into shadow, weaving a silent gradient between glow and gloom. Subtle curves guide unseen, echoing the warmth of hands shaping sushi. They emerge with light, fade with shadow, shimmering between brightness and shade.
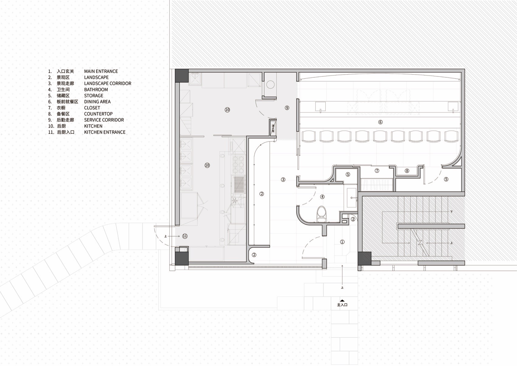
▼平面,Plan © UN-GROUP 未集建筑
项目名称:凪 Nagi
设计方:UN-GROUP 未集建筑
项目地址:上海浦东滨江大道1368号
建筑面积:82㎡
施工图:上海呈煜空间设计有限公司
施工方:上海禾桔装饰工程有限公司
灯光顾问:Studio BLRR 不热灯光设计工作室
灯具厂家:上海奕昊照明有限公司
玻璃屏风厂家:上海劲草工贸有限公司
宣纸画制作厂家:上海搜美文化发展有限公司
桧木厂家:庭下小桧
摄影:刘松恺
项目设计:2023年6月
完成年份:2024年11月
Project name: Nagi
Designer: UN-GROUP Architecture
Project Location: 1368 Binjiang Avenue, Pudong, Shanghai
Building Area: 82㎡
Construction Drawing: Shanghai Chengyu Space Design Co., Ltd
Construction team: Shanghai Heju Decoration Engineering Co., Ltd
Lighting Consultant: Studio BLRR
Lighting Manufacturer: Shanghai Yihao Lighting Co., Ltd.
Glass Screen Partition Manufacturer: Shanghai Jincao Industrial and Trading Co., Ltd.
Photos by Liu Songkai
Project Design: June 2023
Construction Completion: November 2024
客服
消息
收藏
下载
最近





























