查看完整案例

收藏

下载
项目名称 | 融创·紫泉枫丹(第壹套)
Project name | Ziquanfengdan
项目地址 | 中国·重庆
Project address | Chongqing, China
项目面积 | 300㎡,花园50㎡ Gross Built Area | 300㎡
项目风格 | 侘寂风 Project style | Wabi-sabi
设计团队 | KD室内设计事务所
Design team | K.D.interior design office
施工落地 | 恺邸工程
Engineering construction | KaiDi construction
陈设设计 | 恺悦陈设
Furnishing construction | KaiYue furnishing
近几年,侘寂风被越来越多的屋主和设计师宠爱,在本期的家里,我们却看到在古朴素净的表皮下,设计师用裸露的肌理还原出最本真的状态,将家的温度和使用者的情感融入其中,在繁华都市中,以光为笔,以形为媒,尊重屋主的需求,关注空间的融合与独立,建构舒适的住宅环境。
本案建筑体为联排别墅,前庭后院格局,因此设计师对原有建筑格局进行改造,将负二层与负一层挑高,在一层设置玻璃采光井,保证负二层采光,这种建筑结构的改造既打造“阳光客厅”,所有的空间围绕中轴打开,形成空间相互对话、交流的开放格局。
01挑空设计 阳光客厅
负二层公共区域
考虑到负二层的采光通风,将原有建筑挑空,规划为车库、玄关、娱乐区、会客厅等。
为满足更好的采光通风,设计师在这个区域设置挑空,打开一个上下贯通的空间,使得空间既通透开放又保证采光,人与空间、自然与空间、空间与空间相互对话和交流。
质感漆、木作作为空间基础的部分,让墙面在无装饰的情况下更好地将空间形态表达出来,给建筑适当的呼吸空间,黑色的沙发、茶几与屏风则带来舒适的感知体验,材质和颜色构建出古朴粗糙的至简美感。
在楼梯间摆放各种绿植,打造室内花园,弱化空间中的线条穿插感,同时呈现出自然蓬勃的生机。
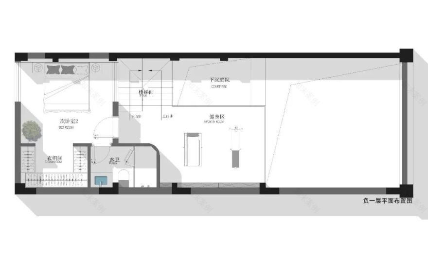
02延伸尺度 情绪转换
负一层公共区域
为合理利用空间,延伸尺度,加上屋主喜欢健身,设计师充分考虑使用者的习惯,将负一层改造为健身区、次卧。
基于建筑中挑空的趋势,设计师从空间内部延伸空间尺度,在楼梯间设置次卧与健身房,让人在空间中实现情绪转换。从天井落下的光,搭配水泥墙体的质感,与房间内韵黄的光形成特有的质感和氛围。
03开放格局 古朴美学
一层公共区域
一层空间被打开,规划为入户、餐厅、厨房,开放式格局让空间更加通透大气。
男主人喜欢老木头、老陶罐、亚麻这类天然的有年代感的物件,基于此,设计师在餐厅的颜色上选用黑色作为空间主调,用白色平衡空间,营造整体的质朴与“粗粝感”。
考虑到整个空间的比例,厨房以黑白色为主,辅以木色,搭配超长岛台与中古单椅,材质和色彩的反差可以产生更强的效应,这种穿透感是设计师着意突出的。
04宜室宜家 舒适氛围
二层公共区域
根据居住者的习惯,保证屋主有更舒适的居住体验,二层规划为套房,分别次卧室、儿童房等。
在延续空间基调的基础上,卧室加入咖色的窗帘、床品,温馨的灯光摇曳,推开门便是舒适的氛围。
儿童房由底及顶的拼色衣柜,是根据现场尺寸定制的,围绕着背景墙一直转向阳台,拱形门恰到好处的衔接,空间因此被牵引着。
干湿分区,用水磨石打造的私密空间在有序中透露出随性和慵懒,又将童趣融入其中。
05独具匠心 别具一格
三层公共区域
三层主要是主卧、衣帽间、阅读区,屋主喜欢看书,因此在衣帽间后设置隐藏式书房,一方书桌能让屋主尽情享受“人在书海遨游”。
倘若弧形的吊顶是点缀,那么隐藏式衣帽间的幽灵门便是侘寂风灵魂的迸发之地,肌理感的质感漆从上而下延展下来,在背景墙处用木格栅一分为二,带来利落的收口,也和空间呼应概括出温馨舒适的休憩氛围。
古朴的陈设里,原木色在隐隐发挥作用,挑空的梳妆台设计师为它开了特殊的造型,空气和光线得以进入,并且给这个收纳充足的卧室更多可以观赏的角度。
最让人惊艳的莫过于主卧这个隐藏式书房,干净低调的柜子有序陈列,窗外的风景映入眼帘,点亮空间和主人的眼,演绎别具一格的古朴浪漫家。
主卫的格局没有做过多的改动,靠墙定制洗漱台,干湿分区,没有多余的装饰,享受阳光散落在生活里的惬意时光。
客服
消息
收藏
下载
最近













































