查看完整案例

收藏

下载
小田实验室位于长宁区安垦AIR园区内,是设计公司彼山与爱种植的好友三姐共创的链接社区公共生活的自然商店+办公+社群复合空间,以产品和活动为介质连接城市社区与自然生活的载体。
Located in the Anken AIR creative park in Shanghai’s Changning District, Paddy Lab is a hybrid space combining a natural lifestyle store, BE’s design office, and a community hub. Co-created by the BE Design and Consultancy company and a designer, also planting-enthusiast friend known as “San Jie,” the project serves as a medium that connects urban communities with a more natural way of life through products and shared experiences.
▼项目概览,overall of the project© 刘松恺
▼窗边自习室,self-study space along the window© 刘松恺
之所以选择在办公人数不超400且很难获得自然人流的隐秘园区做一个商业空间,我们看到两个层面的机会:首先是后疫情时代消费加速向社区转移,向更深入消费者日常工作和生活的地带转移;另一方面,我们看到在世界各地不少优质的小型商业因其独特的场景营造正在重塑地方精神,获得商业收益的同时也能给地段和硬件赋能。项目所在的安垦air属静安寺愚园路商圈,是一个可持续的创意园区,具有良好的环境基底和一批优质的办公客群,但是因缺少一个可作为商业运营的公共空间而难以达成园区内的更多链接和交互。
▼分析图,analysis diagram© 彼山设计
The decision to create this commercial space in a secluded industrial park—home to no more than 400 working population and lack of pedestrian flow—was based on two key observed opportunities. First, in the post-pandemic era, consumer behavior has rapidly shifted toward local, community-based consumption, moving deeper into the daily work and life routines of individuals. Second, globally, many high-quality small-scale businesses are reshaping local identity through distinctive place making experiences—generating not only commercial returns but also bringing new vitality to underused sites and infrastructures. The Anken AIR park, situated near Jing’an Temple and Yuyuan Road, hosts a community of creatives while lacked a dedicated public space for shared commercial and social activity. Paddy Lab was designed to fill that gap. The space is composed of a ground-floor natural store with a backyard, and a second-floor office.
▼整体空间俯瞰,overall of the space© 刘松恺
▼二层办公室,office area on the upper floor© 刘松恺
▼入口楼梯,entrance staircase© 刘松恺
整个空间由底层的自然商店+后院和二层办公空间组成。底层空间融合咖啡吧台、果干展示售卖和办公、自习、讨论等多元功能。白色天花与绿色钢梁构成干净而有识别度的视觉系统,绿植则以悬垂、地栽、高架等多种形式自然渗透进各个角落,松弛而灵活的展陈道具、从庭院洒进来的明亮自然光、自然舒适的家具材质选择等也让身处这个空间的人时刻体验到与自然的共生。
The ground floor integrates multiple functions—coffee bar, dried fruit display and retail, co-working, reading, and group discussions. The design features a clean and recognizable visual language: white ceilings paired with green steel beams, complemented by layered greenery through hanging plants, floor pots, and high-mounted arrangements. Natural light filters through the courtyard, enhancing the organic textures of wood and soft furnishings, and creating a calm, flexible, and biophilic environment that fosters a sense of co-living with nature.
▼入口,entrance© 刘松恺
▼底层商店,ground floor retail space© 刘松恺
▼办公、自习、讨论区,office, self-study, discussion area© 刘松恺
▼木制家具与自然元素,wooden furniture and natural elements© 刘松恺
▼吧台,bar counter© 刘松恺
▼入口细部,details of the entrance© 刘松恺
空间里最吸引眼球的是一整面果干墙——它不仅是产品展示界面,更是空间的视觉焦点与品牌叙事的承载。团队巧妙利用墙面高度与各类果干的色彩节奏,通过分类排布与嵌入,将商品、展览、信息三重功能整合为一个可感知、可参与的品牌装置。它不仅在视觉上形成空间核心,更在日常行为中提供了“走近-驻足-试吃-交流”的完整互动路径。
The most striking feature in the space is afull-height “dried fruit wall.” More than a product display, it acts as the visual and conceptual centerpiece of the store. The design team skillfully orchestrated the vertical rhythm of colorful dried fruits, using the wall as a narrative medium that merges visual merchandising, exhibition, and storytelling. Visitors are naturally drawn into a sensory loop of approach–pause–taste–interact, making the wall an interfacefor engagement and brand delivery.
▼后部空间,back area© 刘松恺
▼窗边自习室,self-study area along the window© 刘松恺
▼果干墙,the full-height “dried fruit wall”© 刘松恺
▼使用场景,daily scenario© 刘松恺
▼果干墙细部,details of the full-height “dried fruit wall”© 刘松恺
小田实验室的另一重要特征是其成长性,这也体现在空间设计中:空间预留部分未设固定功能的弹性区域,随着运营推进,陆续生长出“小田酒”“小田图书”“宠物友好角”等内容,用设计留白与模块嵌套使空间具备适应内容生成的可能性。
Another defining characteristic of Paddy Lab is its capacity for evolution and growth—both in space and operation. Flexible zones were intentionally left undefined, allowing diverseuses to emerge over time. These have organically evolved into “Paddy Wine,” “Paddy Library,” and pet-friendly zones. Through spatial openness and modular design, the space adapts as new content and programs arise.
▼分隔门,partition door© 刘松恺
小田开业以来,园区其他品牌、公司纷纷利用小田的共享空间和后院开展各类共创活动,包括亲子互动、产品特卖、节日活动、公司团建、品牌快闪、新品测试等。共创活动的日益丰富真正推动了园区由“办公空间”向“办公社区”转化,也带来了场地价值的持续提升。
Since its opening, the shared spaces and backyardhave become a platform for co-creation by other tenants in the park. Activities have ranged from family workshops and seasonal pop-ups to team-building sessions, brand launches, and product testing. This growing network of shared initiatives has supported the park’s transition from a mere workspace to a collaborative office community, while continually enhancing the site’s social and commercial value.
▼后院,backyard© 刘松恺
▼后院细部,details of the back yard© 刘松恺
在这个项目里,我们通过“果干+咖啡+社区共创”的方式,发展出一个链接办公、公共与自然生活方式的多功能场所。这个空间既是彼山的新办公室,也是园区的公共客厅,它探索了一种以公共精神驱动的社区商业模型,也验证了产品、空间、人与内容之间的新型共生关系。
Through the combination of dried fruit, coffee, and community co-creation, Paddy Lab has developed into a multifunctional site that bridges office life, public interaction, and natural living. It is both Bishan’s new office and the “public living room” of Anken AIR. More importantly, it exemplifies a new community commerce model driven by public spirit, and demonstrates the connective potential between product, space, people, and content.
▼夜景,night view© 刘松恺
▼细部,details© 刘松恺
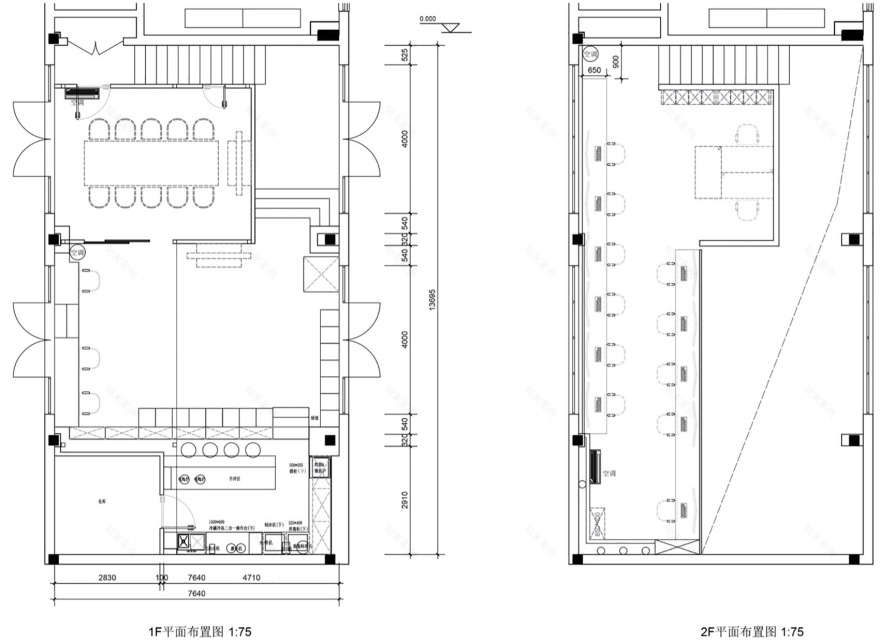
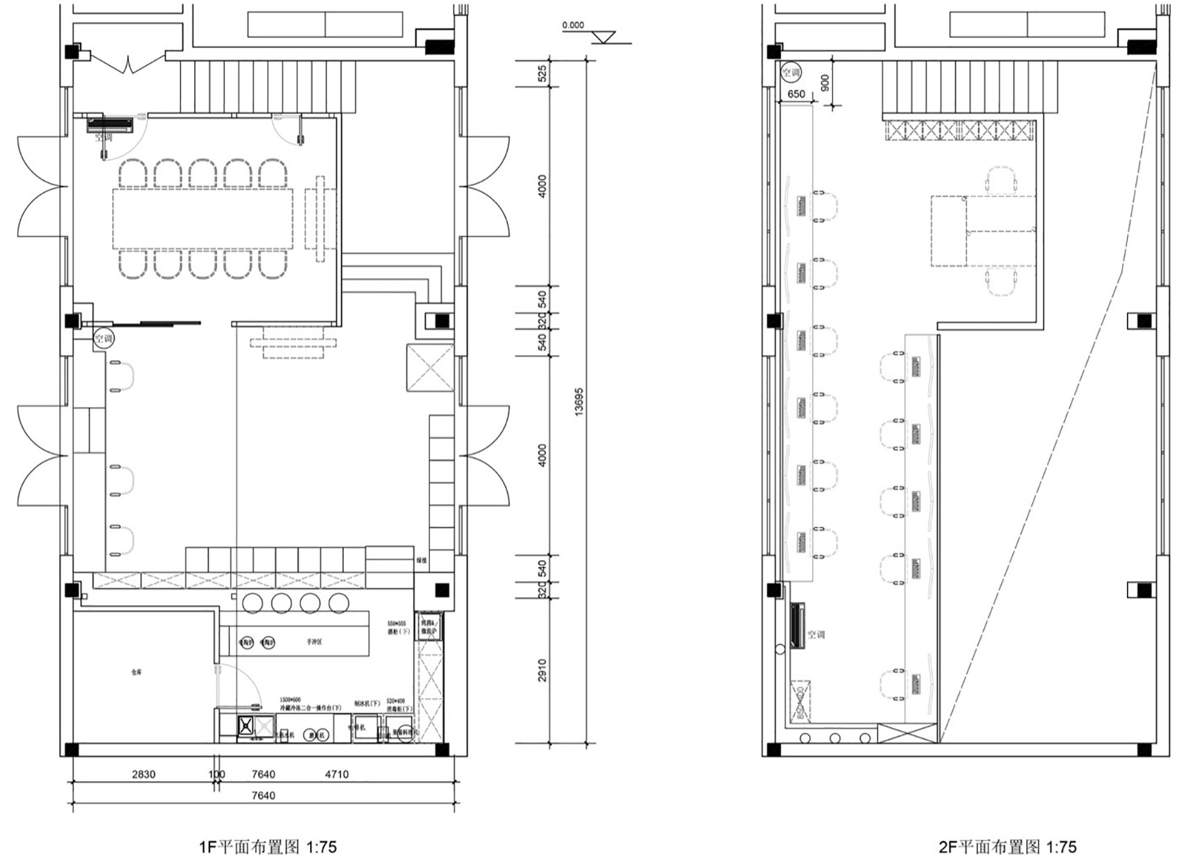
▼平面图,plan© 彼山设计
项目名称:小田实验室
项目类型:室内设计
设计方:彼山设计
项目设计:2023
完成年份:2024
设计团队:王晨歌,徐霆威
项目地址:上海市长宁区镇宁路465弄181号安垦AIR3号楼1楼1C号
建筑面积:159㎡
摄影版权:刘松恺
客户:彼山
Project name: Paddy Lab
Project type: Interior Design
Design: BE DESIGN & CONSULTANCY
Design year: 2023
Completion Year: 2024
Leader designer & Team:
Project location: Room 1C, 1st Floor, Building 3 at Anken Air, No. 181, Lane 465, Zhenning Road, Changning District, Shanghai, China
Gross built area: 159㎡
Photo credit: Songkai Liu
Clients: BE DESIGN & CONSULTANCY
客服
消息
收藏
下载
最近






































