查看完整案例

收藏

下载

翻译
Architects:MACh Arquitetos
Year:2023
Photographs:Leonardo Finotti
Category:Houses
Architects In Charge:Fernando Maculan, Rafael Yanni
Collaboration:Giovanna Camisassa, Natália Castro, Ricardo Lobato
Landscape Desgin:Felipe Fontes
Construction:AG Planejamento e Obras
Façade And Window Frames:Carpintaria Reis
Structural Wood:Engenhas - Engenharia Estrutural
City:Praia do Forte
Country:Brazil
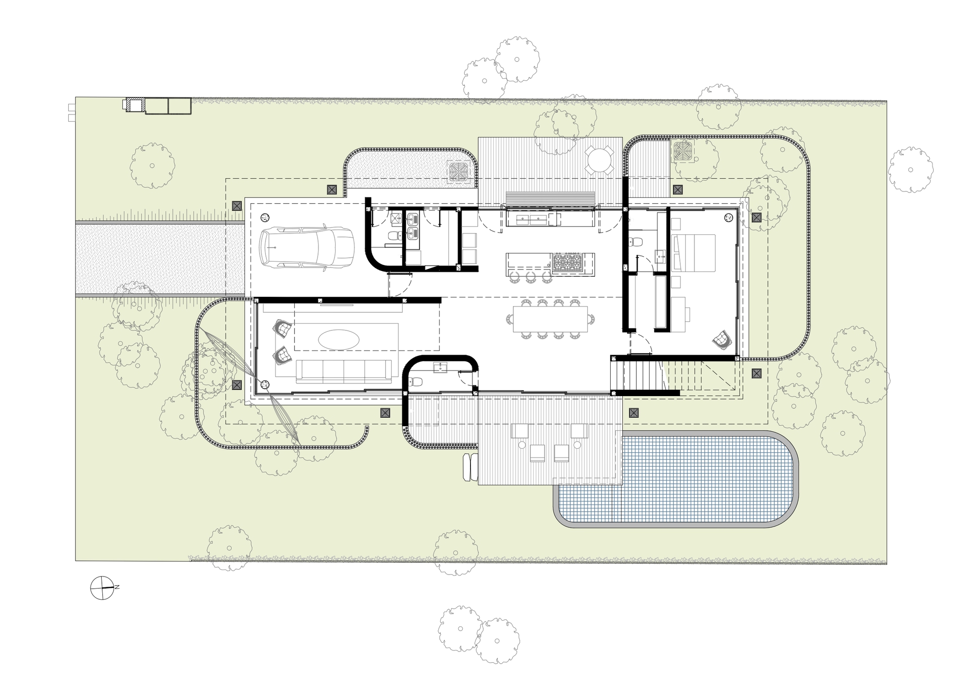
Text description provided by the architects. Miners enjoy the beach and beach houses. Casa Inaê was built on Praia do Forte, Salvador, for a mining family of three siblings, six nephews, a matriarch, and many friends.
The house was inaugurated with a lot of memory and affection. The first floor, more social, features an open layout to the backyard, pool, and forest, with fenced patios housing private gardens.
This tropical modernist-inspired layout supports a concrete tray that holds the structure and roof of the second floor.
The wooden facade is a construction and ornamental system made up of joint covers, inspired by Pataxó, caiçara, but also southern, with dispersed origins. The chromatic treatment celebrates Iemanjá.
Project gallery
客服
消息
收藏
下载
最近



































