查看完整案例


收藏

下载
家,作为一个载体,链接了家庭的过去与未来,承载了居住者的无数个日夜,欢喜与共。设计赋予了家独属于居者所喜的实质与样貌,而居者赋予了其灵魂,点燃温度,隔绝尘嚣,还以宁静,守护着弥足珍贵的点滴,是心与爱最终所归之处。
本案是一个在建筑内部大刀阔斧改造的项目,设计师通过拔柱造梁改变建筑原始的承重结构,将原本的双拼别墅合二为一,并入园林、庭院的闲适雅性,糅合而成的一个赋含艺术、生活美学的现代雅居。
设计师认为地下空间的舒适性依赖于良好的通风与采光,而舒适性与使用率息息相关。在此设计师关闭了建筑原有的天井,将对光的追求无限放大,于地下会客区设置两个下沉式庭院,改变采光的同时,为地下空间创造了自主循环的系统。
光,落于室内的某个角落,随着时间推移,抚过木饰、抚过肌理、抚过一切,引入自然特有的质。木质的温润与皮革的柔肤触感在此勾勒出惬意的生活美卷。
空间与空间相互分享、流通,不论身处任何,都可分享自然光景,汲取庭院的盎然绿意。不论是光影游弋,亦是四顾皆自然,落于室内的某个角落,随着时间推移,抚过木饰、抚过肌理、抚过一切,引入自然特有的质感。空间与自然紧密交叠,链接内外,扩展了宽度与深度的感知。
“感”在此被置于最重要的位置,于此而息,用心倾听,春含绿意、夏有虫鸣、秋感惬意、冬日观雪,于家中观时光变迁,听万物更迭。
光与影是一对艺术家,它总是赋予空白不同的定义与无限的遐想。沙发后的卷帘宛如天然画布,在不同时分随着光影的创作呈现不同的生机画卷,自然之作,何不妙哉?
抛弃刻意,顺势而为,柔性转折的线条,穿插交叠的层次,大面积色块的对撞,于简洁中突显精致,于微末中输出温度。
松弛感游弋其中,自然与空间始终相互交融,静中自有气象万千,柔和的色调、木质的温润、布艺的柔软皆为提升居住的舒适度,满足居者的情绪价值汲取。
睡眠空间是每一个居者最私密的独享场域,彰显着居者的心驰神往,卧室以简单舒适的基调为主,尊重居者本心,不同的卧室各具使用者的个性,是心理与身体的双向放松。居住美学与实用功能在此达到了高度默契。
我们不希望空间只追寻美的形式,更多的是感受,去回应居住者心中的“家”,抽离所有的形式的浅表,用心感受每一处细节的温度、每一次互动的感受、每一件物品存在的意义,人与空间相互回应、感受。光阴肆意流走,拨动时间的琴弦,刻印帧帧记忆,在共度长河中留下“永恒”。
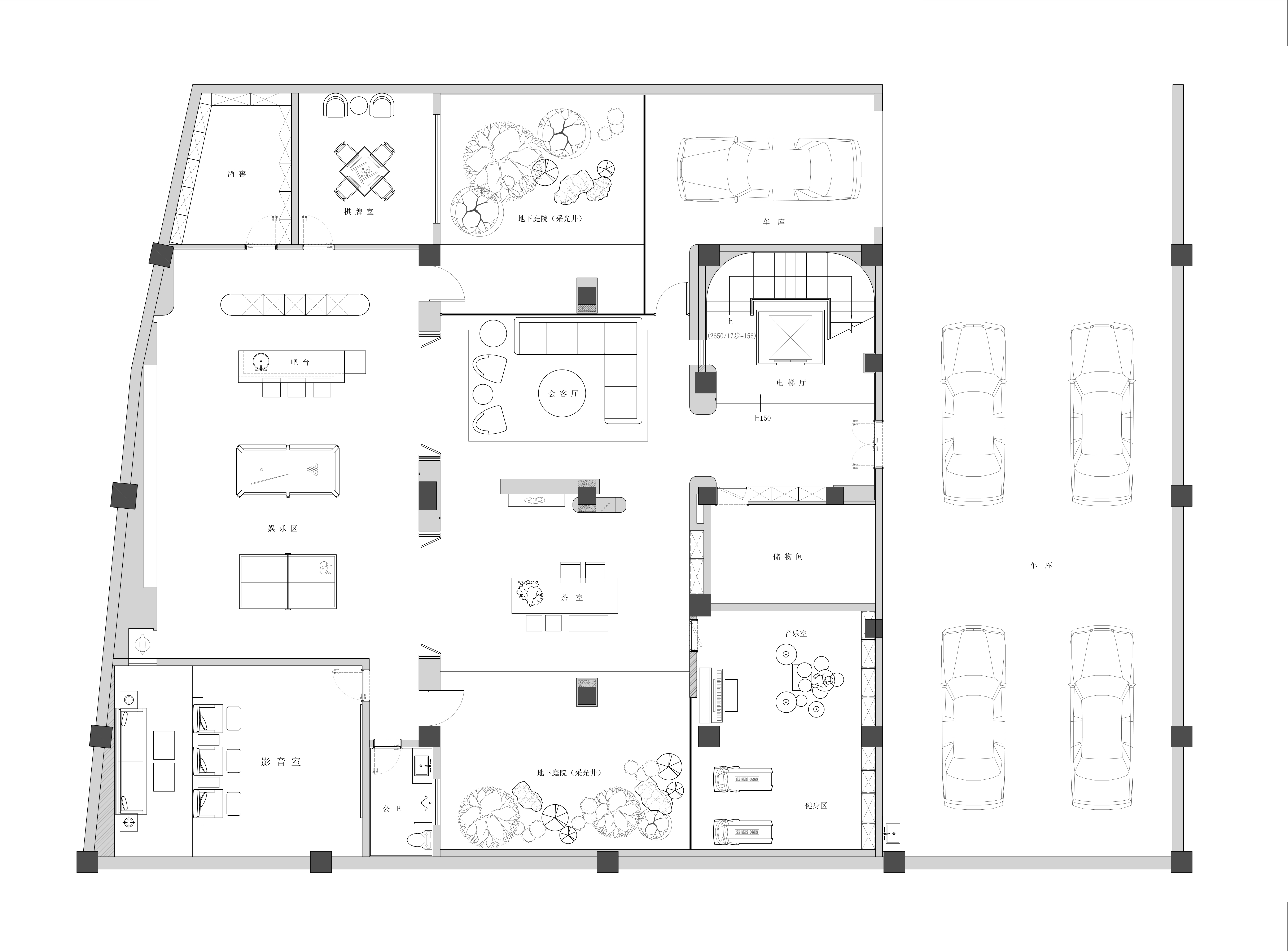
负一层平面
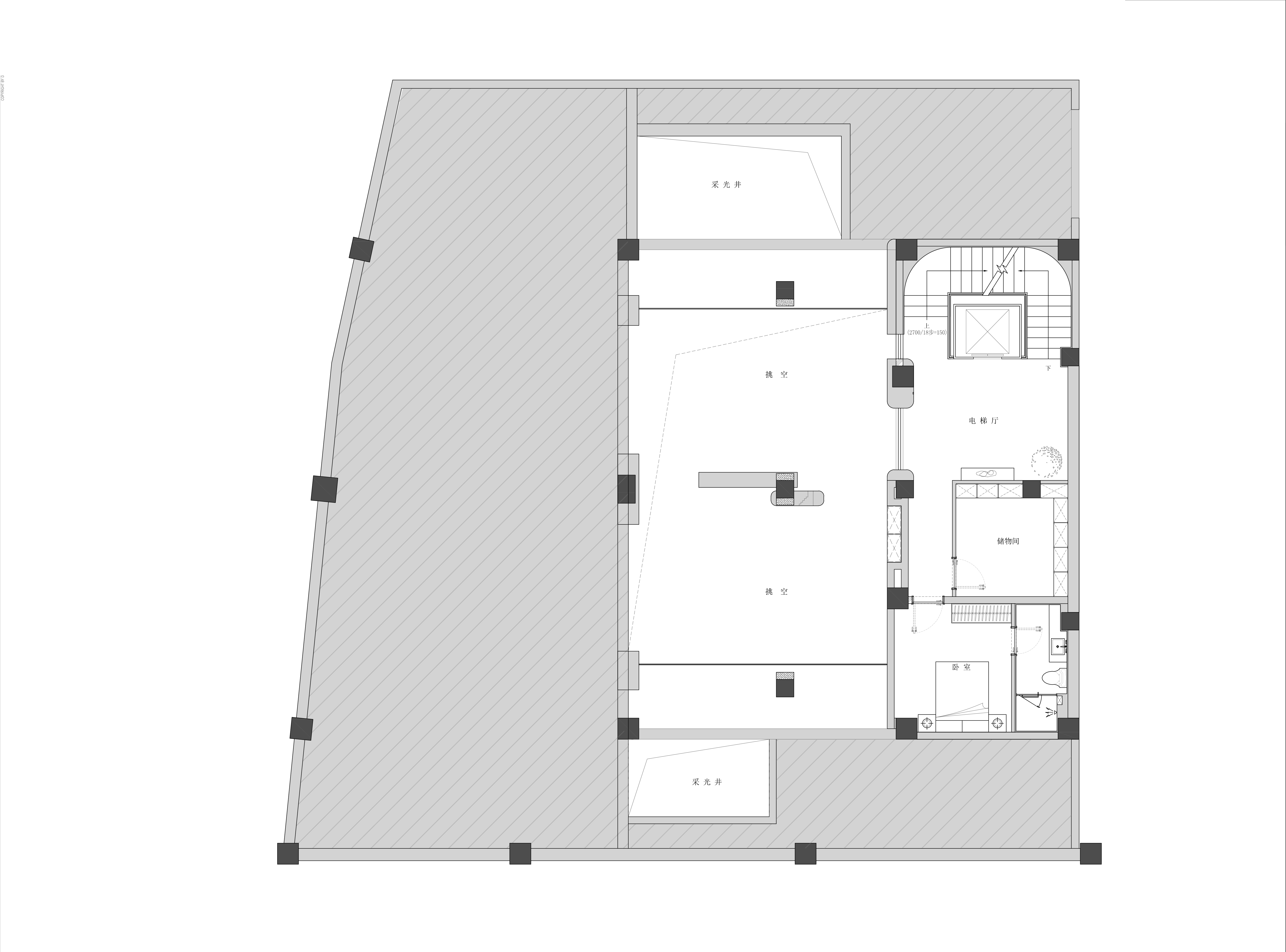
夹层平面
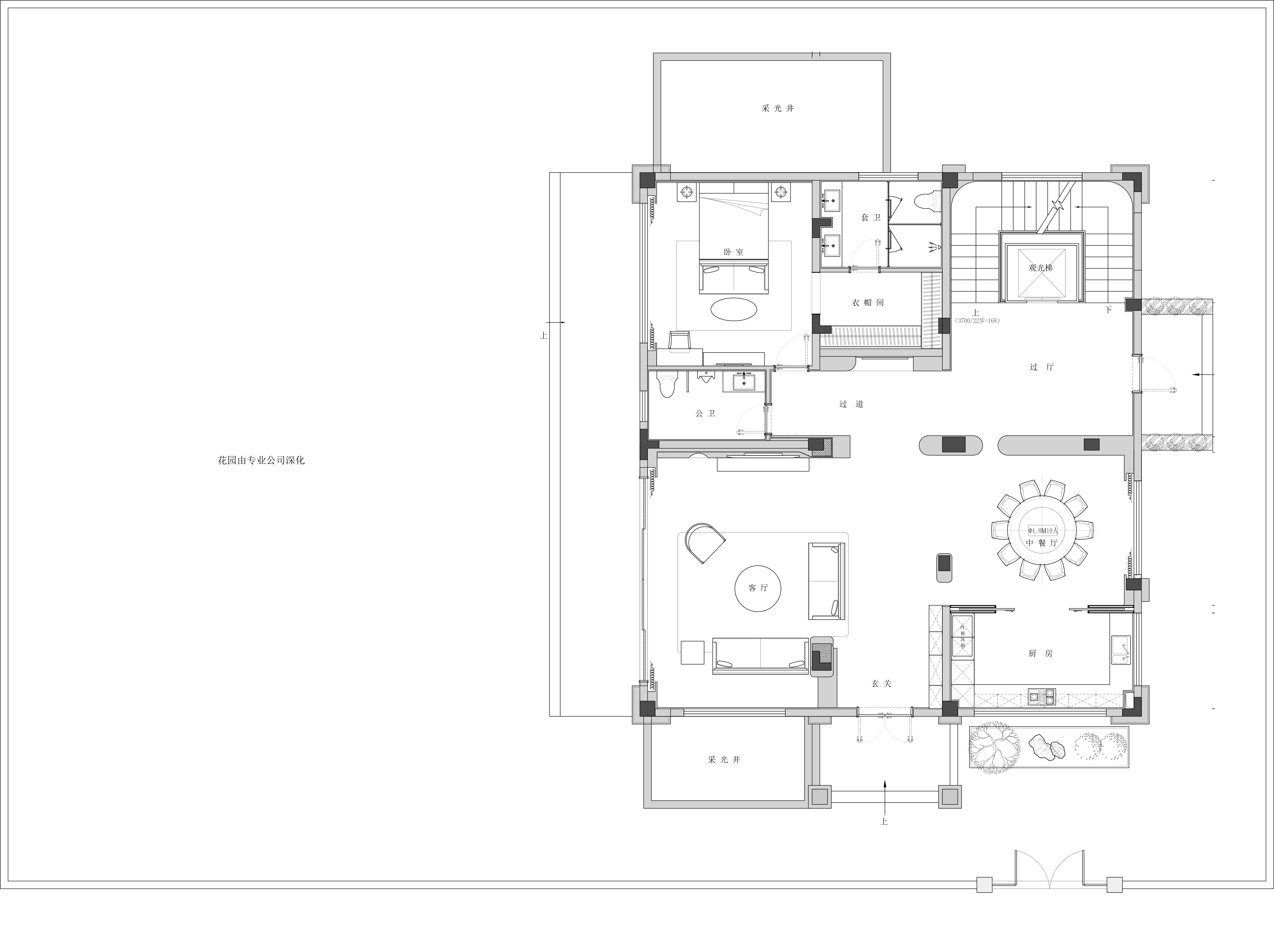
一层平面
二层平面
三层平面
客服
消息
收藏
下载
最近































































