查看完整案例


收藏

下载
年轻的灵魂,需要千姿百态,喧嚣的时代,保持最初的热爱, 把喜欢的一切放进房子,不为悦人只为悦籍己。
设计延续包豪斯风格的理性美学与功能逻辑。让空间回归本质的实用性与结构性,通过几何的理性、工业的坦诚、色彩的秩序,构建兼具高效机能与先锋美学的灵感“杂货铺”。
混合潮玩的色彩情绪,在空间里跳脱成诗,灵动成章。这里有P人的随性,有J人的条理,热爱在此落地生根。
半开放式餐厅在IAS 包豪斯吊灯的温暖光晕下,构筑出一方充满当代艺术气息的用餐空间。墙面上悬挂的抽象艺术挂画以大胆的笔触和色彩,与吊灯的红形成戏剧性对话,将整个餐厅的色彩演绎推向高潮。
家的空间气质来自主人的赋予,活泼的艺术气质与现代生活的仪式感于其中悄然生发,点亮居住者的精神世界。
项目全名:东城·金茂晓棠样板间
项目地址:四川 成都
软装设计:元禾大千
硬装设计:矩阵纵横
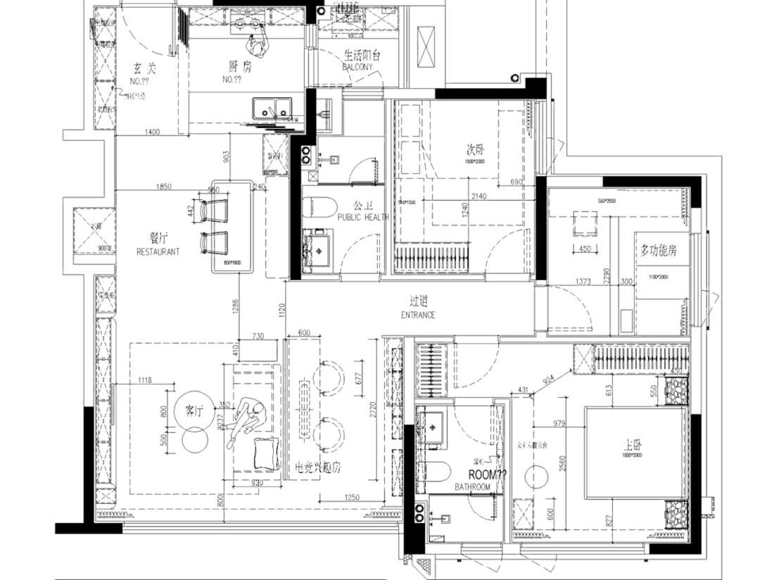
空间面积:110㎡
甲方单位:金茂成渝公司
特别支持:胡松涛、赵立、张九龙
金茂成渝营销及工程团队、李力
摄影团队:千棠视觉 | 唐嘉阳
客服
消息
收藏
下载
最近




















