查看完整案例

收藏

下载

翻译
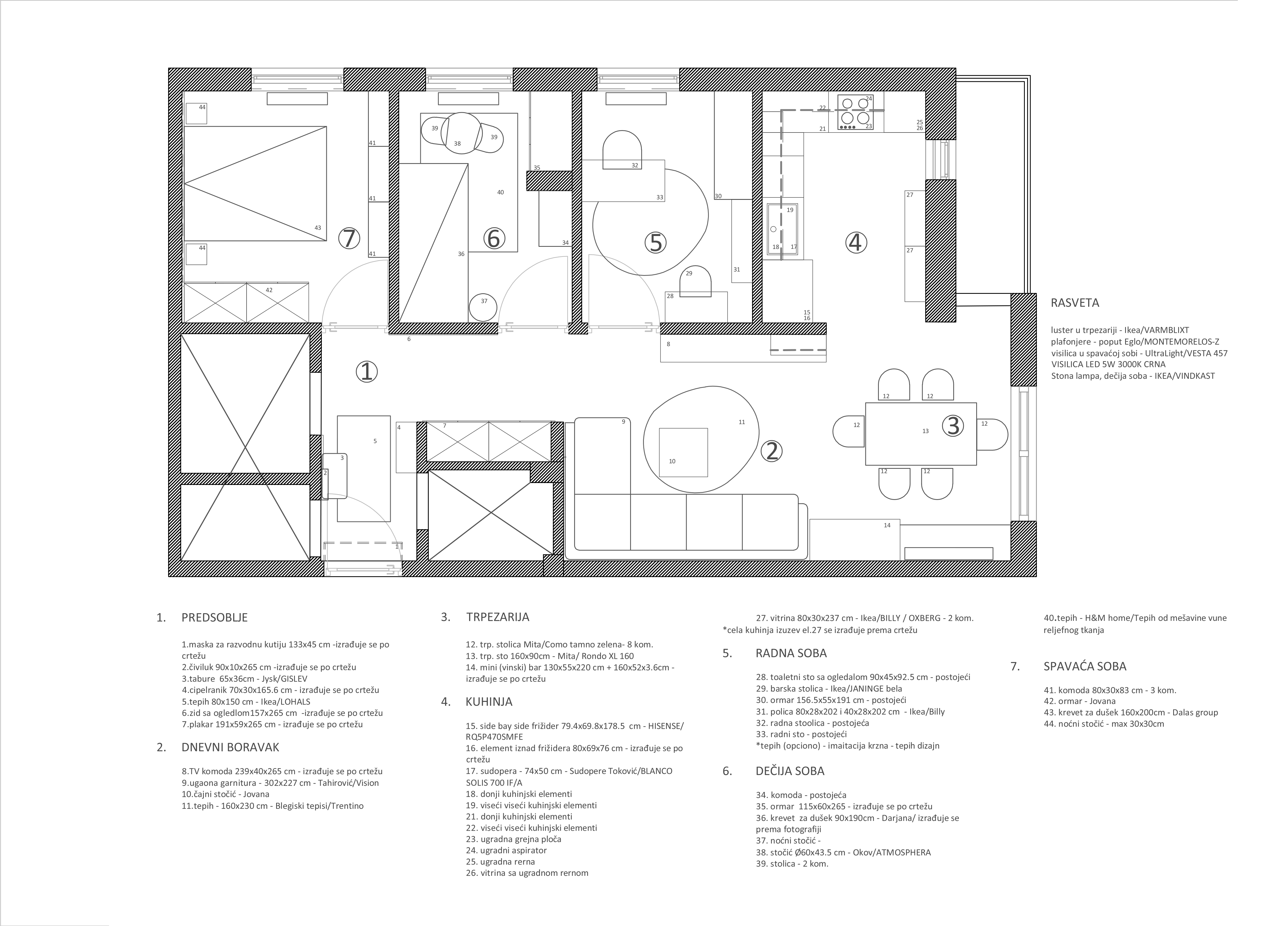
Stara Pazova, 75m²
This apartment was designed for a young married couple with one child, with a clear focus on functionality, warmth, and local craftsmanship. One of the key requirements was to furnish the entire space with furniture made by domestic manufacturers, as much as possible. Additionally, the layout was developed to include generous storage solutions that blend seamlessly into the design.
The overall palette is soft and neutral, with most of the furniture in warm beige tones. This subtle color base is gently contrasted by the dining chairs, which are upholstered in a rich emerald green, adding a touch of personality and elegance to the space.
Upon entering the apartment, the hallway feels narrow and somewhat compact, but it quickly opens up into a spacious and beautifully lit living area. The natural light fills the open-plan living and dining space, creating a cozy and welcoming atmosphere ideal for everyday family life
客服
消息
收藏
下载
最近
















