查看完整案例

收藏

下载
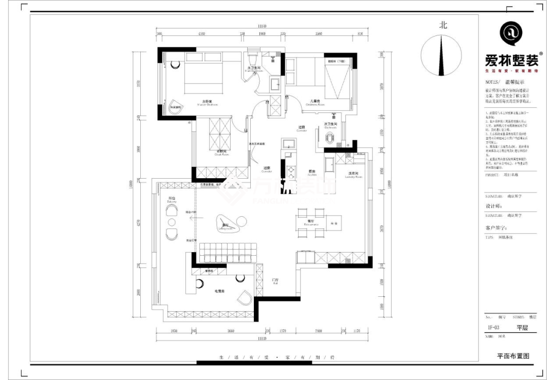
今天来分享一套150m²的意式极简风装修案例~
本案是一户三口之家,业主希望自家简洁大气,以实用为主,不做过多复杂的造型。女主人喜欢偏暖色调,并且希望拥有开放式厨房和电竞房。
一起来看看设计师是怎么满足业主需求的吧~
客厅以米色与原木色为主色调,温柔又复古。地面铺贴木色哑光地砖,更显空间质朴。阳台打造地台,底部搭配氛围灯带,营造出居家仪式感。顶面做悬浮吊顶+无主灯设计,拉满空间层次感。
客餐厨做一体式设计,开放式厨房让空间更显宽敞通透。餐厅和厨房间设计投影幕布做软隔断,既能划分空间又能满足就餐时娱乐的需求。岛台和餐桌一体,延伸就餐区间,同时还能满足收纳需求。
卧室配色简洁大气,宁静质朴。单滑门链接主卧与衣帽间形成套房,满足女主人的衣物收纳需求。衣帽间设计到顶式衣柜,储物空间十分充足。
儿童房色调以暖色为主,与整体风格保持一致,给小朋友营造温馨舒适的休息环境。床体靠墙摆放,拉满安全感。墙面用置物架和装饰画做点缀,搭配两盏射灯营造氛围感,空间更加温馨。
书房是夫妻二人的电竞房空间,与客厅连接,增加空间互动性,不显沉闷。选用人体工学座椅,打造舒适的电竞体验。墙面设计置物架+灯带组合,提高垂直空间的利用率。
客服
消息
收藏
下载
最近
























