查看完整案例

收藏

下载
K1Y Design Lab 位于杭州市中河沿岸,是以设计工作室与精品咖啡店结合的复合型商业空间,K1Y希望打开空间的功能界限,人与城市的交互界限,营造一处属于这座城市的【城市客厅】。
K1Y Design Lab is located along the Zhonghe River in Hangzhou, which is a complex commercial space that combines design studios and boutique coffee shops.
▼外观夜景,night view of exterior© 黑水
▼入口立面近景,closer view of the facade© 黑水
▼办公室与咖啡厅入口,entrance of the office and the cafe bar© 黑水
借用景观河道的绿色植被,将其表现为建筑内的空间装饰。开凿于唐代的中河,沿河步道伴随历史的痕迹,展现出不同色度的绿植,明暗交错。让这幅来自城市景观的展板余韵悠长。
Borrow the green vegetation of the landscape river and express it as a space decoration within the building. Excavated in the Tang Dynasty, the trail along the river is accompanied by traces of history, showing green plants of different colors, interlacing light and dark. Let this exhibition board from the cityscape have a long aftertaste.
▼半室外外摆区,semi-exterior terrace© 黑水
▼露台,terrace© 黑水
室内空间将石材、木元素以不同尺度的形式在空间中交错,入户的石材地面,顶面颗粒,室内天光下的的沙砾与石材墙面,为空间提供干爽明亮的基调。从入户垂坠的幕布配合软装布艺沙发,到天光下的遮阳布幔,借用这些不同尺度的木元素让空间温润流动。温暖的木元素柔化并构建空间的金属与石材。为远道而来的客人提供温暖舒适的休憩与聚会的场所。此刻人与自然的节奏一同舒缓下来。
The interior space interlaces stone and wood elements in the space in the form of different scales, and the stone floor and top particles at the entrance, the sand and gravel and stone walls under the indoor skylight provide a dry and bright tone for the space. From the curtains that hang from the door and the upholstered fabric sofa to the sunshade curtains in the skylight, these wooden elements of different scales are borrowed to make the space warm and flowing. Warm wood elements soften and build the metal and stone of the space. It provides a warm and comfortable place for guests to rest and gather from afar. At this moment, the rhythm of man and nature is soothed together.
▼咖啡厅区域室内,interior of the cafe&bar© 黑水
▼座位区,seating area© 黑水
▼镜面与窗口,mirror and windows© 黑水
▼景观画框,frame view© 黑水
整体建筑空间以对向的景观绿植作为切入点,从室内以逆向视角审视这座城市,灵活的折叠开窗将户外引入室内。外立面保留原有的建筑结构的肌理,横向间隔细腻干净的铝板及轻盈的不锈钢窗框,让自然的斑驳映射在干净的铝板上。在重复规则的金属材料中保留不规则的人为痕迹,让建筑的岁月与人为的痕迹相互交融。
The overall architectural space takes the opposite landscape greenery as the starting point, examines the city from a reverse perspective from the interior, and the flexible folding windows introduce the outdoors into the interior. The façade retains the texture of the original building structure, with delicate and clean aluminum panels and light stainless steel window frames separated horizontally, allowing natural mottling to be reflected on the clean aluminum panels. Irregular human traces are preserved in the metal materials that repeat the rules, so that the years of construction and artificial traces can blend with each other.
▼工作室室内概览,overall of the office area© 黑水
▼暴露的混凝土结构柱,exposed concrete structure column© 黑水
▼办公区,office area© 黑水
▼办公区细部,details of the office© 黑水
▼材料区细部,details of the material area© 黑水
▼细部的,details© 黑水
室内外自然交接处,使用绳网与金属框架共同构建出的座椅装置,为使用者带来更多自由的坐姿,享受自然遵循自我。
At the natural junction between indoor and outdoor, the seating device is constructed using rope mesh and metal frame, bringing users more freedom to sit and enjoy nature following themselves.
▼露台与绳网与金属框架共同构建出的座椅装置,terrace and the seating constructedwith rope mesh and metal frame© 黑水
采用金属蚀刻与雾面不锈钢搭建出的户外装置,成为城市与空间的纽带。让城市成为空间的主人。装置上的镜面不锈钢,只引入对岸的景观河道,和背面的城市客厅,形成与自然共存的——城市化妆镜。单向车道的来向处使用了大面积的雾面不锈钢结合金属蚀刻,记录K1Y留下的痕迹,保护过往行人的视线安全。离向的镜面映射出河岸的景观,是在对离开的行人做一次正式的告别。
The outdoor installation, built with metal etching and matte stainless steel, becomes the link between the city and the space. Let the city be the master of space. The mirrored stainless steel on the installation only introduces the landscape river on the opposite bank and the urban living room on the back, forming a coexistence with nature – an urban makeup mirror. A large area of matte stainless steel combined with metal etching is used at the direction of the one-way lane to record the traces left by K1Y and protect the sight safety of passing pedestrians. The mirror reflects the landscape of the riverbank, which is a formal farewell to the departing pedestrians.
▼户外装置,the outdoor installation© 黑水
▼灯光设计与卫生间,light design and toilets© 黑水
▼轴测图,axonometric drawing© K1Y Design
▼分析图,analysis diagram© K1Y Design
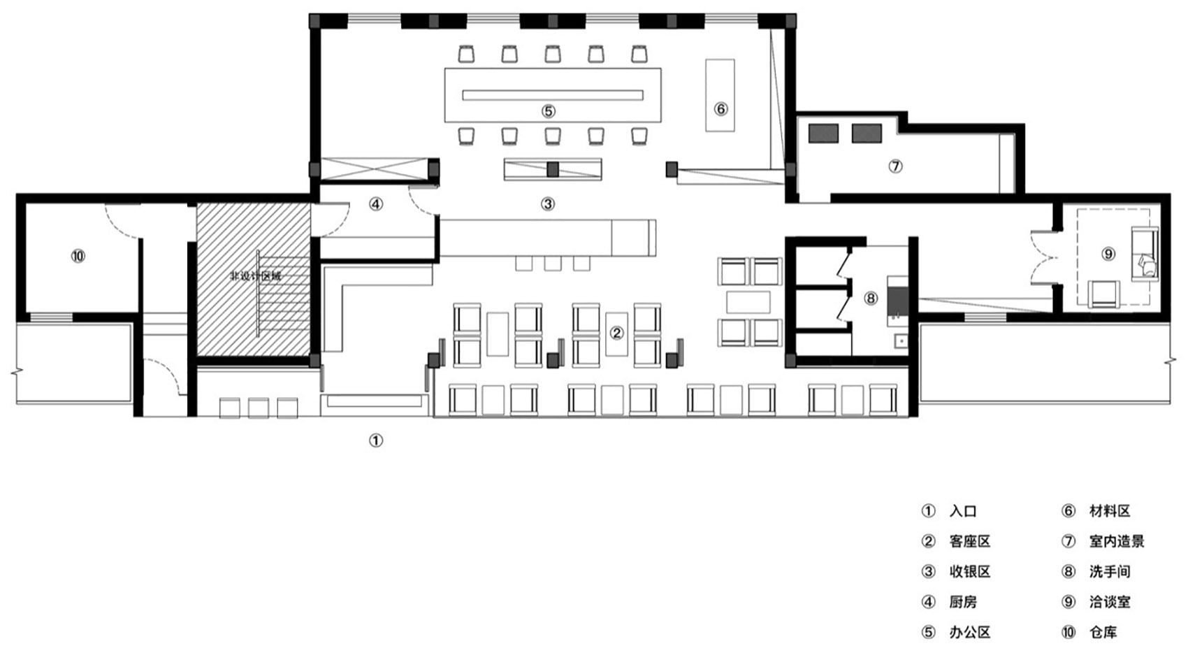
▼平面图,plan© K1Y Design
▼立面图,elevation© K1Y Design
项目名称:K1Y Design Lab
项目类型:复合型商业空间
设计方:K1Y Design
项目设计:K1Y Design
完成年份:2025
设计团队:K1Y Design
项目地址:浙江省杭州市中河南路30号
建筑面积:400㎡
摄影版权:黑水
材料:石材、海沙、不锈钢、玻璃、布艺、混凝土、木饰面
Project name: K1Y Design Lab
Project type: Composite commercial space
Design:K1Y Design
Design year: 2025
Completion Year: 2025
Leader designer & Team: K1Y Design
Project location: No. 30, Zhonghe South Road, Shangcheng District, Hangzhou City, Zhejiang Province
Gross built area: 400㎡
Photo credit: 黑水
Materials: Stone, Sea sand, Stainless steel, Glass, Fabrics, Beton, Wood veneer
客服
消息
收藏
下载
最近




































