查看完整案例

收藏

下载
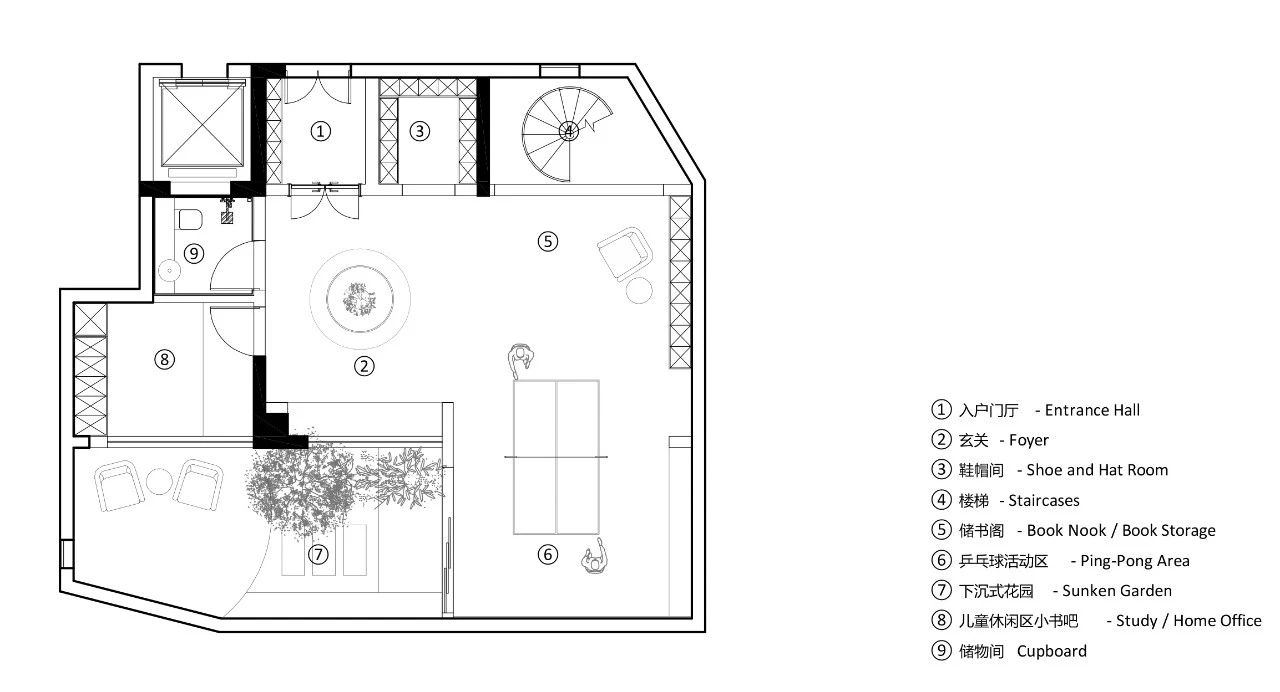
C Y A - D E S I G N -1F平面布局图
夹层平面布局图
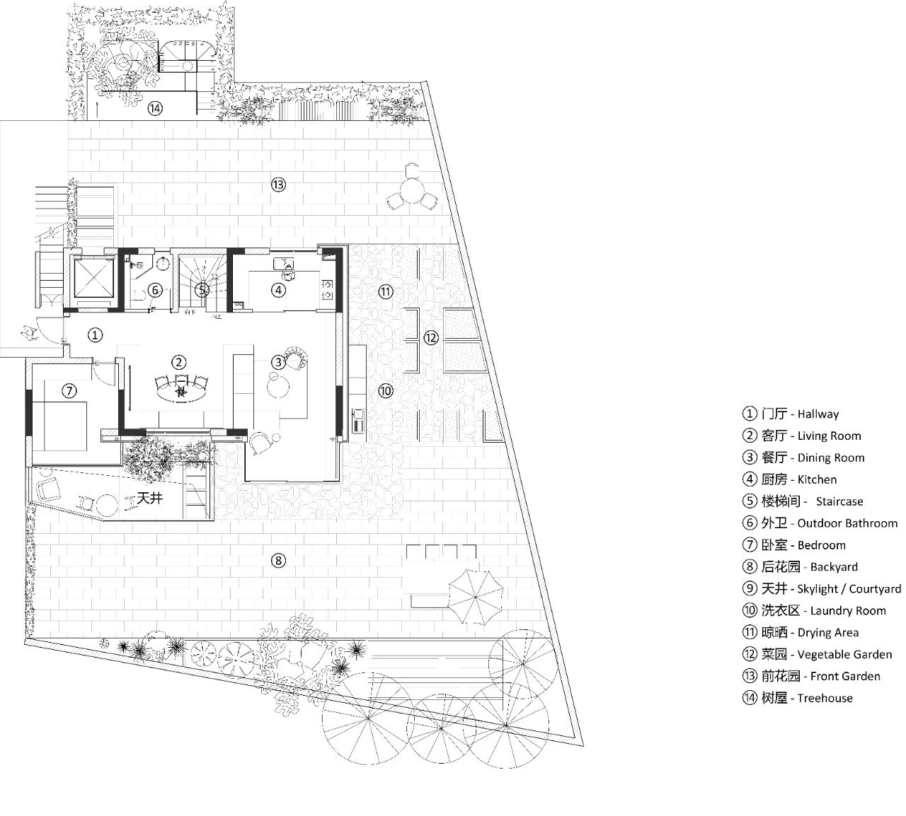
1F平面布局图
2F平面布局图
在我们刚接手这个项目的初期,业主就与我们深刻谈论并探讨了他们对这个家的期待及感受,在无数次灵感与情怀的交织碰撞中,我们一点点读懂了他们藏于岁月褶皱里的生活向往,那些对温馨、舒适与个性的追求,如同散落的星辰,被我们悉心串联。最终,经过反复打磨与推敲,这份满载着期待与匠心的设计方案破茧而出,它不仅是线条与色彩的融合,更是对美好生活的具象描摹。此刻,不妨放慢脚步,跟随我们的笔触,一同踏入这方承载着无限憧憬的空间,去触摸业主心底那份对家的深情期待,感受设计与生活共鸣的动人韵律。
At the very beginning when we just took over this project, the owner had a deep conversation with us about her expectations and feelings towards this home. Through countless interweaving and collisions of inspiration and sentiment, we gradually understood her yearning for life hidden in the creases of time. Those pursuits of warmth, comfort and individuality, like scattered stars, were carefully strung together by us. Eventually, after repeated refinement and deliberation, this design proposal brimming with anticipation and craftsmanship emerged. It is not merely a fusion of lines and colors, but a vivid portrayal of a beautiful life.
At this moment, lets slow down and follow our brushstrokes to step into this space brimming with boundless expectations, to touch the owners deep affection for home in their heart, and to feel the moving rhythm of the resonance between design and life.
踏入玄关刹那,艺术装置如婉约仕女,轻执薄纱半掩娇容,以朦胧之态勾勒含蓄之美。这若隐若现的屏障,恰似为空间添上神秘注脚,既巧妙阻断视线直抵深处,又似抛出无形的邀约,引得人满怀好奇,欲一探究竟。
而装置背后,窗户如同一幅永不褪色的画卷,将天光云影尽数收纳。晨曦穿透玻璃,在室内洒下碎金;暮色漫过窗口,晕染出温柔的诗行。春拥繁花缀满枝头,夏有绿荫摇曳生姿,秋携金叶翩跹起舞,冬裹银装素色入画。即便身处地下室,这般流动的光影与四季更迭,亦将空间浸润得通透敞亮,自然诗意在每个角落流淌。
The moment one steps into the entrance hall, the art installation is like a graceful lady, gently holding a thin veil to half-cover her face, outlining a reserved beauty in a hazy manner. This partially visible barrier is just like adding a mysterious footnote to the space. It not only skillfully blocks the direct view to the depth but also seems to throw out an intangible invitation, arousing peoples curiosity and making them eager to explore further.
Behind the device, the window is like a never-fading painting, capturing all the light and shadows of the sky. The morning light penetrates the glass, scattering golden specks inside; the dusk spreads over the window lattice, tinting the room with gentle poetic lines. In spring, flowers adorn the branches; in summer, green shade sways gracefully; in autumn, golden leaves dance; in winter, the scene is wrapped in a silver coat. Even in the basement, this flowing light and shadow and the changing seasons make the space transparent and bright, leaving no room for oppression, with only the natural poetry flowing in every corner.
步入门厅,仿若踏入一方温柔的生活序章。鞋帽间以妥帖的姿态静候,将每一双走过四季的鞋履、每一件风尘仆仆的衣帽,都妥帖安放,收纳起生活的琐碎与匆忙。转身处,储书阁伫立于此,每一本承载思想的书籍与文字在此寻得安宁的归处,书香与生活的烟火气在此悄然交织,编织出一隅静谧而有序的诗意天地。
Stepping into the foyer, it feels like entering a gentle prelude to life. The cloakroom awaits with a considerate posture, neatly storing every pair of shoes that have traversed the seasons and every piece of clothing and hat that has braved the elements, tucking away the trivialities and hustle of daily life. Just around the corner, the bookcase stands there, where every book and every word that carries ideas finds a peaceful home. The aroma of books and the warmth of lifes hustle and bustle quietly interweave here, creating a quiet and orderly poetic corner.
书香氤氲的储书阁侧畔,一方灵动的天地悄然铺展,乒乓球活动区以恰到好处的距离与之相依。这里,宽阔的场地赋予运动肆意挥洒的自由,良好的隔音设计隔绝外界喧嚣,让每一次挥拍都成为专注而畅快的享受。
在这方动静相宜的空间里,承载着业主对孩子最深切的期许。他愿孩子既能在书阁中饱览古今,涵养精神世界,又能在球台边强健体魄、磨砺意志,让德智体美劳的种子在生活的沃土中,向阳而生,绽放出全面发展的绚烂之花。
Beside the book-filled and fragrant library, a lively space quietly unfolds. The table tennis activity area is placed at a perfect distance from it. Here, the spacious venue grants the freedom to fully enjoy the sport, and the excellent sound insulation design blocks out the outside noise, making every swing of the racket a focused and delightful experience.
In this space that is both dynamic and quiet, the owners deepest expectations for the child are carried. He hopes that his children can not only explore the past and present in the library and cultivate their spiritual world, but also build up their bodies and temper their wills by the tennis table, so that the seeds of morality, intelligence, physical fitness, aesthetics and labor can grow towards the sun in the fertile soil of life and blossom into brilliant flowers of all-round development.
在一隅静谧自成天地的休闲书吧,书香与茶香悄然缠绕。此处既是隔绝喧嚣、沉入知识深海的秘境,亦是偷得浮生半日闲,执盏品茗的雅室。分格的窗扇似画框,将天光云影、四季更迭悉数纳入室内,消融了空间的边界。即便静坐其中,亦觉清风拂面,心随云游,让封闭的角落化作拥抱自然的诗意栖居。
In a quiet and secluded leisure book bar, the aroma of books and tea quietly entwine. This place is both a secret realm isolated from the hustle and bustle and a place to immerse oneself in the deep sea of knowledge, and a refined room where one can steal a half - day of leisure from the hustle and bustle of life and enjoy a cup of tea. The segmented window sashes are like picture frames, incorporating the light of the sky, the shadows of the clouds, and the changes of the four seasons all into the interior, dissolving the boundaries of the space. Even when sitting still in it, one feels a gentle breeze caressing the face, the heart wandering with the clouds, transforming the enclosed corner into a poetic abode embracing nature.
下沉式花园仿若被时光精心雕琢的光之容器,以独特的设计巧思打破地下室的幽暗桎梏,将阳光、空气与雨露悉数收纳其中。那些自然馈赠的珍贵元素,恰似灵动的画笔,勾勒出空间最动人的轮廓,为生活晕染出无尽诗意。
不妨想象,当暖阳倾洒的午后,细碎的光斑在藤蔓间跳跃,与家人围坐于此,茶香袅袅中,欢声笑语与风声鸟鸣交织成曲;或是凛冽寒冬,围炉煮茶,蒸腾的热气模糊了玻璃上的霜花,而暖意却在彼此眼底心间肆意流淌。这般时光,恰似岁月赠予的温柔诗篇,将温馨与美好悄然镌刻进生活的每一寸肌理。
The sunken garden is like a container of light meticulously crafted by time. With its unique design ingenuity, it breaks the dark shackles of the basement and encapsulates sunlight, air and rain all within. Those precious elements bestowed by nature are just like dynamic brushes, outlining the most touching contours of the space and infusing endless poetry into life.
Just imagine, on a warm and sunny afternoon, the fine spots of light dance among the vines. Sitting here with family, the aroma of tea wafts gently, and the laughter and joy interweave with the sounds of the wind and the chirping of birds into a melody. Or in the bitter cold of winter, people gather around a stove to brew tea. The rising steam blurs the frost on the glass, yet warmth flows freely in each others eyes and hearts. Such times are just like the gentle poems bestowed by the years, quietly engraving warmth and beauty into every inch of life.
卫生间也以简笔勾勒温柔底色,删繁就简的设计里藏着岁月静好的意韵。当温润的绿色石材悄然融入空间,恰似将林间清露与春日新芽的灵动收揽于此。那一抹跃动的绿意,在光影流转间舒展生机,为这片私密天地注入鲜活韵律,让每一寸角落都流淌着自然与生活交融的诗意。
The bathroom also features a gentle base color outlined in simple strokes, and the minimalist design conceals the charm of peaceful and serene times. When the warm green stone quietly blends into the space, it seems to have captured the vitality of the clear dew in the forest and the new buds in spring here. That touch of vibrant green, in the interplay of light and shadow, spreads its vitality, infusing this private world with a lively rhythm and allowing every corner to flow with the poetic blend of nature and life.
循着旋转楼梯的优美弧线拾级而上,夹层中藏着一方清雅天地。这里是一方纯粹的茶室,似被时光温柔包裹的静谧角落。无论是与友人共话事业蓝图,或是与家人围坐浅斟香茗,氤氲茶香中,私语呢喃,皆成岁月里的诗意篇章。
侧面的长条窗仿若天然画框,使这里不仅是一处居所,更似一幅徐徐展开的意境长卷,藏纳着生活的闲适与美好。
Following the graceful arc of the spiral staircase, one ascends the steps, and within the mezzanine lies a serene and elegant world. This is a pure tea room, a quiet corner gently wrapped by time. When the sunlight filters through the window lattice, whether its discussing career plans with friends or sitting around with family sipping fragrant tea, the soft whispers in the aroma of tea all become poetic chapters in the passage of time. The long window on the side is like a natural picture frame, making this place not only a residence but also a slowly unfolding scroll of artistic conception, concealment the leisure and beauty of life.
茶室一隅,水吧台静静伫立,宛如自然延伸的枝桠,为这片静谧天地注入灵动的实用气息。它不仅是品茗煮水的便捷之所,更化作隐匿生活琐碎的温柔容器,以恰到好处的收纳巧思,妥帖安放岁月的细碎。
In a corner of the tea room, the water bar stands quietly, like a naturally extending branch, infusing this serene world with a dynamic and practical atmosphere. It is not only a convenient place for sipping tea and boiling water, but also a gentle container that conceals the trivialities of life. With just the right amount of storage ingenuity, it properly places the fragmented moments of time.
书房的扉页以轴门为笔,在空间的宣纸上勾勒出独特的装帧美学。那道弧线流转的门扉,似一方悬空的砚台,将设计感研磨成墨,晕染出虚实相生的意境。当双扇门页如舒展的古籍般完全展开,茶室与书房便在木纹的肌理间完成一场空间的对谈 —— 天光漫过交界的阈值,让视野在通透中生长成一幅横卷,把两个场域的呼吸织就成同一段韵律。而当轴门轻合,黄铜轴芯转动时的微响,恰似书签嵌入线装书的刹那,将满室墨香与茶烟收进一方闭合的诗匣,任外界喧阗如流,此处独守一帧凝固的静谧,让时光在木质纹路里缓缓回甘。
The title page of the study uses the pivot door as a pen, sketching out a unique binding aesthetic on the spatial paper. That arc-shaped door, like a suspended inkstone, grinds the design sense into ink, diffusing an artistic conception of interplay between reality and illusion. When the double door pages fully open like an ancient book, the tea room and the study complete a spatial dialogue through the wood grain texture - the daylight spills over the threshold, allowing the view to grow into a horizontal scroll in transparency, weaving the breaths of the two spaces into the same rhythm. And when the pivot door gently closes, the slight sound of the brass pivot turning is just like the moment a bookmark is inserted into a thread-bound book, enclosing the rooms ink fragrance and tea smoke in a closed poetry box. Despite the outside worlds hustle and bustle, this place guards a frame of frozen tranquility, allowing time to slowly sweeten within the wood grain.
踏入玄关,错落有致的玄关造景如婉约屏风,以恰到好处的含蓄,将客厅的景致半掩半露,似隔非隔间,既消解了一览无余的局促,又为空间增添了几分欲说还休的朦胧美感。转身即见生活吧台,它宛如一位贴心的生活诗人,以流畅的线条勾勒出优雅轮廓。在这里,晨起洗手时指尖掠过的潺潺水流,傍晚清洗果蔬时的清脆声响,都化作了生活里灵动的音符。而它暗藏的收纳空间,更像是藏起琐碎日常的魔法口袋,将实用主义与美学韵律完美相融,让每一寸角落都诉说着对精致生活的热忱。
Stepping into the entrance hall, The well-arranged entrance hall landscape is like a graceful screen, with just the right amount of restraint, half-concealment and half-exposure of the living rooms view, seemingly separated but not partitioned. It not only dispels the cramped feeling of having an unobstructed view but also adds a touch of hazy beauty that is hard to express yet lingering to the space.
Turning around, youll see the Life bar counter, which is like a considerate poet of life, outlining an elegant profile with smooth lines. Here, the gurgling water flowing through the fingertips when washing hands in the morning and the crisp sounds of washing fruits and vegetables in the evening have all transformed into lively notes in life. Its hidden storage space is more like a magic pocket that hides the trivialities of daily life, perfectly blending practicality with aesthetic rhythm, allowing every inch and corner to express the passion for a refined life.
踏入餐厅的刹那,时光仿佛在橡木长凳的肌理间打了个旋 —— 那些以直线韵律织就客席经纬的固定长椅,既以利落的几何姿态收纳了团聚的热闹,又将空间的呼吸感折叠成墙上的藤蔓纹样。铜质星盏般的复古吊灯自穹顶垂落,暖光被波纹玻璃揉碎成暖金的涟漪,正与深褐木椅的包浆色泽玩着光影的迷藏,让每一寸空气都发酵着壁炉般的温煦。当暮色漫过,银匙碰响瓷盘的轻音里,家人肩肘相倚的剪影在灯晕中渐次清晰,恍若一幅正在木纹餐桌展开的活态画卷,让烟火气在复古与温情的交界,凝成琥珀里永不下沉的黄昏。
The moment you step into the restaurant, time seems to swirl in the texture of the oak benches - those fixed benches with their straight-line rhythm weaving the guest seating pattern, not only neatly accommodating the lively gatherings in their geometric form, but also folding the breathing space into the vine patterns on the walls. Copper star-shaped vintage chandeliers hang from the ceiling, their warm light diffused by the rippled glass into golden ripples, playing hide-and-seek with the patina of the dark brown wooden chairs, infusing every inch of air with the warmth of a fireplace. As dusk creeps over the window frames, the soft clinking of silver spoons against porcelain plates grows clearer, and the silhouettes of family members leaning on each other gradually emerge in the glow of the lamps, like a living painting unfolding on the wooden-grain dining table, where the warmth of home is captured in the intersection of vintage charm and tender affection, like amber that never sinks in the setting sun.
餐厅与矮边柜的交界仿佛是一页被时光裁开的手稿 —— 那道齐腰的木质柜体既以温润的弧度承接日常的琐碎,又在虚实之间拓印出多功能的留白。当晨光掠过柜面的木纹肌理,未读完的诗集正枕着雕花铜拉手打盹,积木城堡在玻璃展格里生长出童话的轮廓,而青花瓷摆件的釉色正与柜角的干花共享同一道斜晖。这方介于收纳与展示之间的秘境,恰似一枚双面绣的针脚,将散落的绘本、褪色的魔方与蒙尘的音乐盒,都缝进生活褶皱里的温柔暗格,让每一件物品都在木质抽屉的开合间,找到属于自己的星轨与晨昏。
The junction between the dining room and the low cabinet seems like a page torn by time - the waist-high wooden cabinet, with its gentle curves, not only accommodates the daily trivialities but also leaves a multi-functional blank space between reality and illusion. When the morning light skims over the wood grain of the cabinet surface, the unfinished poetry collection is dozing off with its carved copper handle as a pillow, while the glass display shelves are growing the outlines of a fairy tale with a castle made of building blocks. The glaze of the blue and white porcelain figurines is sharing the same slanting rays of sunlight with the dried flowers in the corner of the cabinet. This secret realm between storage and display is like the stitches of a double-sided embroidery, sewing the scattered picture books, the faded Rubiks cubes and the dusty music boxes into the tender hidden compartments of lifes creases, allowing each item to find its own starry track and day and night within the opening and closing of the wooden drawers.
客厅以素绢为纸,将简约二字拓印成空间的呼吸韵律。设计师以时光为尺,在动线与功能的交界,为银发长者裁出一方茧居般的观影秘境 —— 原木肌理的矮柜恰如搁浅的月光,托举着日常,布艺沙发的褶皱里,晨昏正随着电视屏幕的光影缓缓舒展。而那些暗藏滑轨的家具,原是蛰伏的几何诗人,当暮霭漫过落地窗时,只需轻轻推移,便能让客厅与餐厅的界限如融化的奶油般流淌开来,使天光在开放式的场域里织就经纬,让儿孙绕膝的笑音与杯盏碰撞的轻响,在无界的空间里凝成一帧流动的生活画卷。
The living room uses plain silk as paper, imprinting the word simplicity into the breathing rhythm of the space. The designer, using time as a yardstick, has created a secluded viewing space for the elderly with silver hair at the junction of circulation and function. The low cabinet with the texture of raw wood is just like the stranded moonlight, supporting the daily life of the remote control and reading glasses. In the wrinkles of the fabric sofa, the dawn and dusk are slowly unfolding along with the light and shadow of the TV screen. And those pieces of furniture with hidden sliding rails are originally dormant geometric poets. When the dusk spreads over the floor-to-ceiling Windows, just a gentle push can make the boundary between the living room and the dining room flow like melted cream, allowing the light of the sky to weave the weaves in the open space, and the laughter of children and grandchildren around them and the soft clinking of cups and cups condense into a flowing picture of life in the boundless space.
老人房在一楼的落脚处,恰如时光为银发岁月埋下的温柔注脚 —— 省去了攀爬阶梯的繁琐,让每一步挪移都成为平地铺展的舒展。那面垂落至地的落地窗,将晨光酿成琥珀色的酒盏,不仅让日光在亚麻床品上织就流动的纹样,更把花园里的蔷薇攀援、雀鸟梳羽都框成永不翻页的活态画册,让倚坐窗边的身影,随时能与风中摇晃的绣球花交换眼神。
The elderly room is located on the first floor, just like a gentle footnote planted by time for the silver-haired years - eliminating the hassle of climbing stairs and making every move a smooth stretch on the flat ground. The floor-to-ceiling window that hangs down to the ground turns the morning light into an amber-colored wine cup. It not only weaves flowing patterns on the linen bedding but also frames the roses climbing and the birds combing their feathers in the garden into a living picture book that never turns pages, allowing the figure leaning by the window to exchange glances with the hydrangeas swaying in the wind at any time.
主卧以浅木色为骨,将现代美学写成一首温润的诗 —— 当原有的推拉门如褪色的画轴般隐去,卧室与阳台便在木纹的肌理间完成了一场空间的联结。晨光自此得以在亚麻床品上舒展腰肢,而阳台化作延伸的取景框,让每一寸天光都顺着落地窗的弧度,将花园的绿意酿成流动的琥珀。
梳妆台在旧阳台的旧址上生长成一方琉璃台,当指尖的粉底液与窗外的蔷薇共舞时,玻璃映出的不仅是描眉的手势,还有紫藤花架上雀鸟掠过的剪影。在这里,化妆刷起落间抖落的星光,与键盘敲击时惊起的蝶影,都在大面积的采光里凝成同一段韵律,让每一次对镜梳妆或伏案疾书,都成为与自然对坐的私语时光。
The master bedroom is framed in light wood color, writing a gentle poem of modern aesthetics. When the original sliding door disappears like a faded scroll, the bedroom and the balcony complete an empty connection between the wood grain texture. From then on, the morning light could stretch its waist on the linen bedding, and the balcony turned into an extended viewfinder, allowing every inch of the sky light to follow the arc of the floor - to - ceiling window, transforming the greenery of the garden into flowing amber.
The dressing table has grown into a glass platform on the site of the old balcony. The light wooden countertop holds the morning and evening of the makeup mirror and the laptop. When the foundation on the fingertips dances with the roses outside the window, the glass reflects not only the gesture of drawing eyebrows but also the silhouette of birds passing by on the wisteria pergola. Here, the starlight that falls as the makeup brush rises and falls, and the butterfly shadow that stirs up when the keyboard is struck, all coalesse into the same rhythm in the vast area of natural light, making every time I groom in front of the mirror or write at the desk a moment of whispering to nature.
衣帽间巧借挑空设计,打破空间局限,垂直维度上释放呼吸感,层架有序收纳,换鞋区与鞋物摆放位合理规划,让方寸之地尽显精致。主卫采用干湿分离,双台盆满足双人使用需求,淋浴区与马桶区独立分区,功能明晰,互不干扰,兼顾实用与便捷 。
The wardrobe ingeniously adopts a open design, breaking the spatial limitations and releasing a sense of breathing in the vertical dimension. The shelves are neatly arranged for storage, and the shoe-changing area and the placement of shoes and items are rationally planned, making the small space exude refinement. The master bathroom adopts a dry-wet separation. The double washbasins meet the needs of two people. The shower area and the toilet area are independently divided, with clear functions and no mutual interference, taking into account both practicality and convenience.
二楼次卧拆除推拉门窗后豁然开朗,空间通透敞亮。满墙定制衣柜提供充足收纳,墙面墙板与衣柜无缝衔接,消弭柜体边界,让收纳功能与空间美学浑然一体,营造出和谐统一的视觉效果。
After removing the sliding doors and Windows, the secondary bedroom on the second floor suddenly opened up, with a bright and spacious space. The full-wall custom wardrobe offers ample storage space. The wall panels and the wardrobe are seamlessly integrated, eliminating the boundaries of the cabinet body. This allows the storage function and spatial aesthetics to blend seamlessly, creating a harmonious and unified visual effect.
女儿房以清新淡雅为底色,悬浮床轻盈如云朵悬于半空,搭配造型别致的异形书桌,将每寸空间都化作灵动的诗行。墙面异形书架蜿蜒如藤蔓生长,既收纳书籍摆件,又以独特线条勾勒美感,让实用与艺术在此交织,在有限天地间铺展开阔意境。
The daughters room is based on a fresh and elegant color scheme. The floating bed is as light as a cloud, suspended in mid-air. Paired with a uniquely shaped desk, every inch of space is transformed into a dynamic line of poetry. The irregular-shaped bookshelves on the wall meander like vines growing, not only storing books and ornaments but also outlining beauty with unique lines, allowing practicality and art to interweave here and spreading a broad artistic conception within the limited space.
Project Name 项目名称 | 誉浪东望
Project Design 项目设计 | 曹瑜 CYAN- 任峻宏 Frank
Location 项目地址 | 中国 成都
Design Drawing 设计制图 | Watson 任峻宏 Frank
Effect of Rendering 效果呈现 JC DESIGN
Editor 文案编辑 | 赵璐Audrey
Area 项目面积 | 272㎡ 300㎡花园
Project Time 设计时间 2025.02
Mailbox
地址:四川省成都市锦江区捌楼八号设计社区
客服
消息
收藏
下载
最近














































