查看完整案例

收藏

下载
澳大利亚布里斯班的 oir Balmoral 就是一个典型例子。它看起来像一栋低密度的现代别墅,实际上是一栋仅 4 层、共 6 套住宅的高端公寓项目。虽然规模不大,但无论是设计感、建筑工艺,还是生活品质,都堪称标杆级水准,甚至远超许多传统高层住宅。
项目由本地开发商 Cielo 集团打造,Z Architects 设计,是极少数同时兼具私密性、奢华感与地理优势的高端住宅之一。项目预计将于 2025 年 8 月完工,起价为 585 万澳元(约 2,726 万人民币 )。
Part 01
多层建筑
建筑沿着地势自然延伸,顺应 15 度的坡度,结构布局有层次感,既提升了每户的采光和通风条件,也保证了视野无遮挡,尽览布里斯班城市天际线。
Voir 的立面设计是其最大的亮点之一,呈现出一种极具雕塑感的现代风格。整个外立面采用定制混凝土打造,通过柔和的弧形轮廓打破传统几何直线带来的生硬感。
细节上还加入了金属格栅材质,进一步提升了整体的精致感与辨识度。
底层入口设计得非常讲究,不是那种夸张张扬的「豪宅感」,而是通过材质、灯光和动线的细腻处理,营造出一种沉稳又有仪式感的归家体验。
车库处也特别打造了一个极具仪式感的电梯厅入口,高质感的材质铺装,搭配定制照明和艺术化墙面细节,即使只是地下车库的出入口,也透露出低调而讲究的高级感。
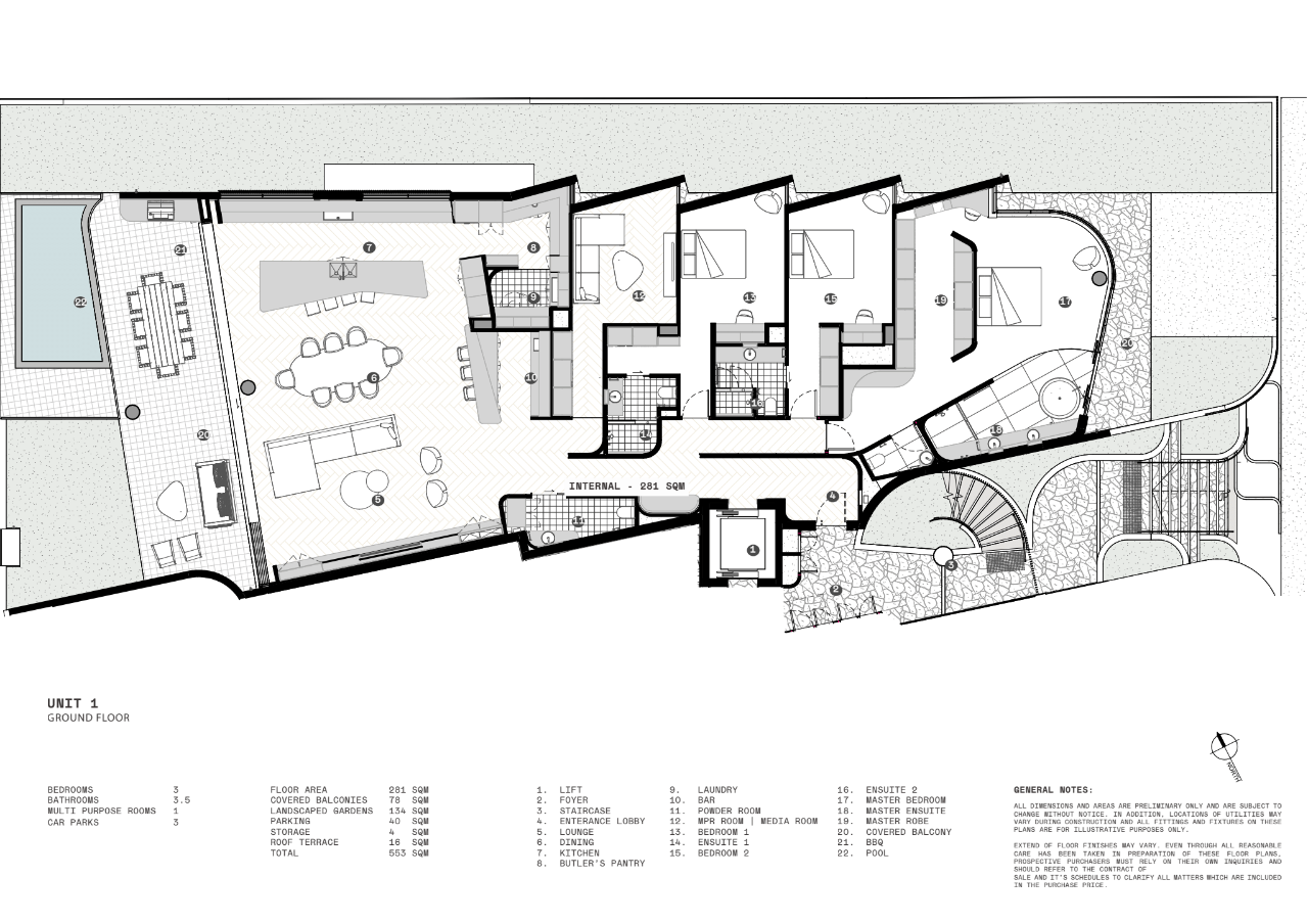
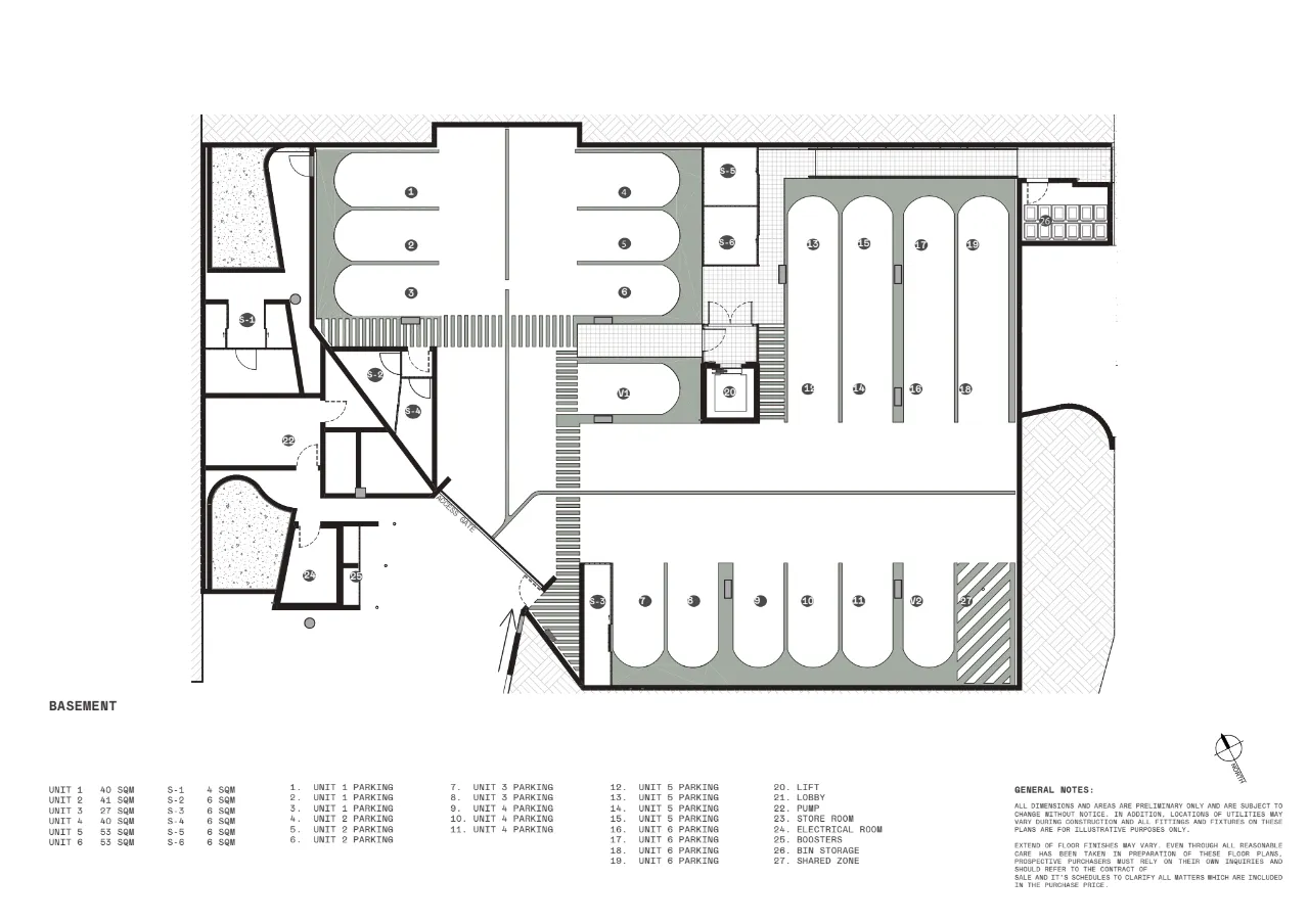
楼层平面图▽
△一层
△二层
△三层
△四层
△地下层
Part 02
半平层室内
Voir Balmoral 总共就只有 6 套住宅,面积在 376㎡~553㎡ 之间,每一套都是半层设计,户户独立、互不干扰。
△509㎡
533㎡
348㎡ 348㎡ 415㎡
394㎡客厅空间开阔、动线流畅,搭配人字拼橡木地板、低饱和色调软装与定制灯光,营造出一种既现代又非常温暖的氛围。
餐厅紧邻客厅,形成一个联动的生活中轴,设计上注重尺度感,能容纳 8 人同时用餐。
每套住宅都配备了一个超大厨房,5.2 米长的岛台直接成了全屋的视觉焦点。
厨房不仅美观,更是高度实用,搭载全套 Gaggenau 高端电器、Liebherr 冰箱与酒柜,以及定制橱柜系统,兼顾收纳和美感。
室内还特别设置了一个独立吧台区域,吧台延续了厨房的天然石材与金属细节,搭配隐藏式灯带,整洁而高级。
主卧空间采用套房式布局,进门就是定制弧形床头背景墙,既是设计亮点,也增加私密感。
弧形墙后是宽敞的步入式衣帽间、独立梳妆区、充足的自然采光与静音处理,每一处都在强调「住得舒服」这件事。
开放式主卫采用天然石材铺面,配备双台盆、独立浴缸和大尺寸淋浴间,整体感觉简洁又高级。
镜柜、灯带、挂钩等小细节都非常贴心,真正做到了美观与实用并存。通风与采光也处理得很到位,不压抑、不潮湿,让日常洗漱变成一种享受。
Part 03
私密配套
虽然 Voir Balmoral 只有 6 套住宅,但在配套上却一点都不「小」。它不像传统公寓那样追求堆叠功能,而是以「精致实用 私密尊享」为核心,把生活的每一个细节都做到刚刚好
独立屋顶露台,设有休闲区、户外餐桌、烧烤区,有的还带瑜伽平台和冥想角。可以三五好友小聚,也可以一个人发呆看日落,这种空间在市区非常难得。
配套的独立包厢设计,既能换衣洗澡,也适合泡完泳后小憩一会儿,真正把「休闲」做到极致。
屋顶的无边泳池呈不规则形态,更贴合整体建筑的有机流线,也让空间多了几分自然与灵动。
未来,这一类小型住宅楼不仅是提供基本居住需求的空间,而是成为人们对品质生活的向往与追求的体现。Voir Balmoral 无疑是这一趋势的先锋,精致、舒适、豪华,且与自然和城市环境和谐相融。
客服
消息
收藏
下载
最近

































