查看完整案例

收藏

下载
设计师如何在空间中“Work-Life Balance”?
柯布西耶的巴黎工作室在他设计的公寓Immeuble Molitor顶楼。这一公寓有着良好的位置和视野,临近公园和体育场,并配有地下车库。
柯布西耶采用围绕中心柱、延伸混凝土楼板的做法,并安装玻璃砖和大玻璃窗,使得公寓拥有最良好的采光。
顶楼的柯布西耶公寓拥有上下两层,一层是主要住所和工作室,二层是一个阁楼小客房和屋顶花园。
房间内处处充满个性化的装修,哪怕并不符合日常日用的尺度。为了看到远处的瓦伦汀山,床被抬高到了桌子的高度。
从入户开始穿过走廊,先到达的是画室。拱顶在空间利用最大化的同时带来了强有力的形式感。磨砂玻璃和天窗均匀柔化了室内采光。
▲画室
对于书房部分,更像是一个用于专注的树洞,隐蔽地藏在画室角落。
画室是他的整个公寓里房间层高最高的部分,左转进入真正的起居空间后,层高降低,到了床边的用餐区层高再次放开,空间不停变化。
卧室内的卫生间是干湿分离。浴缸和淋浴间被置入如同树洞一样的空间中,并在墙壁上涂上浅蓝,产生了放松的沐浴空间。
隔开几个主要区域的门都是偏轴旋转门,没有门框、门尺寸大到几乎是一堵墙的设计弱化了门的存在,空间变得更流通。关上门,空间更整体。
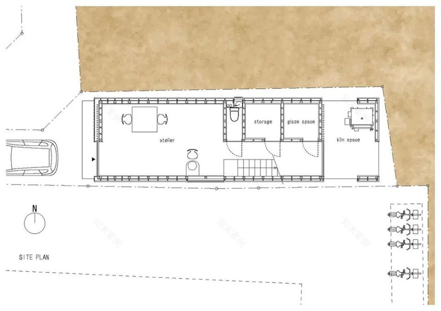
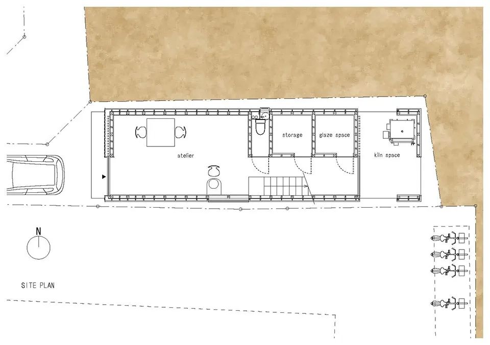
在大阪郊区的一个宽3m深34m的狭长地块里,陶艺艺术家的私人住宅兼私人工作室被完美嵌入场地。
场地周围建筑混杂,建筑师将建筑内交通空间置于景致略逊的一侧,开窗面向远山,又将整个空间在进深方向打通。私密和敞亮便同时拥有。
多种层高的错落设置是丰富小空间满足多种功能的惯用方式。七种错落的高度由钢结构楼梯相连,每一个平台都有专属功能。
一个巨大的陶艺展示架贯穿了整个建筑,展示架的底层是工作室,起居空间置于建筑的另一侧,为确保私人空间的私密,错层将起居空间进行部分遮挡。
▲剖面图
这样一来,艺术家在起居空间可以望向工作室和展示墙,而工作区因为楼梯和平台的错落不会对起居造成干扰。空间连续又彼此独立。
这对设计师业主夫妇希望工作空间是家里的一个重要部分。因此,这一独立住宅更像是一个公司和一个住宅的结合体。
建筑的公私层级很分明,居住空间和工作空间在一层被分开,往下工作往上居住。居住空间中,卧室和客餐厅被一个花园隔开,既保证了室内良好的通风和采光,也让家人获得更私密更放松的休息。
考虑到房主的父母,坡道的置入使得建筑各空间更方便到达。同时也软化了整个建筑的连接方式,居住变得更轻松灵活。
用餐区的爬架则是给小朋友的娱乐区,旁边的玻璃可以看向工作室的一部分。这样的功能结合与实现互动,使得家人们可以聚在这一最大空间里彼此陪伴。
客服
消息
收藏
下载
最近




































