查看完整案例

收藏

下载

翻译
Architects:MM++ architects
Area:255m²
Year:2025
Photographs:Hiroyuki Oki
Lead Architects:Pham Thi My An
Category:Houses
Lead Team:Pham Thi My An
Design Team:Tran Dac
Technical Team:Toan Nguyen, Ngo Thuy, Kha Tu, Kim Hiep
City:Ho Chi Minh City
Country:Vietnam
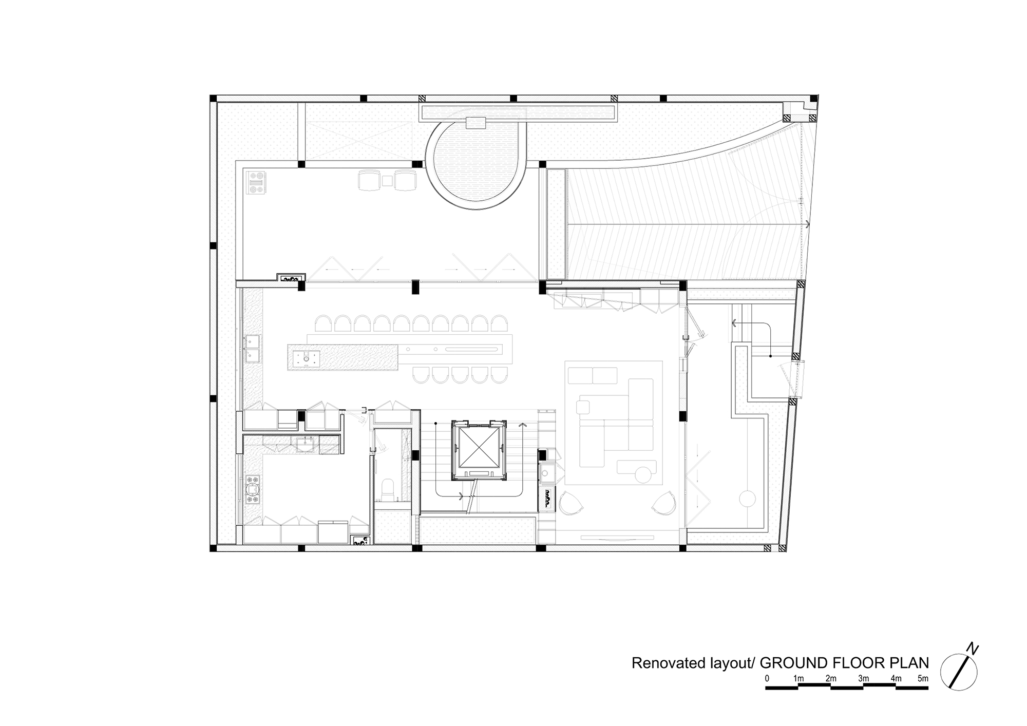
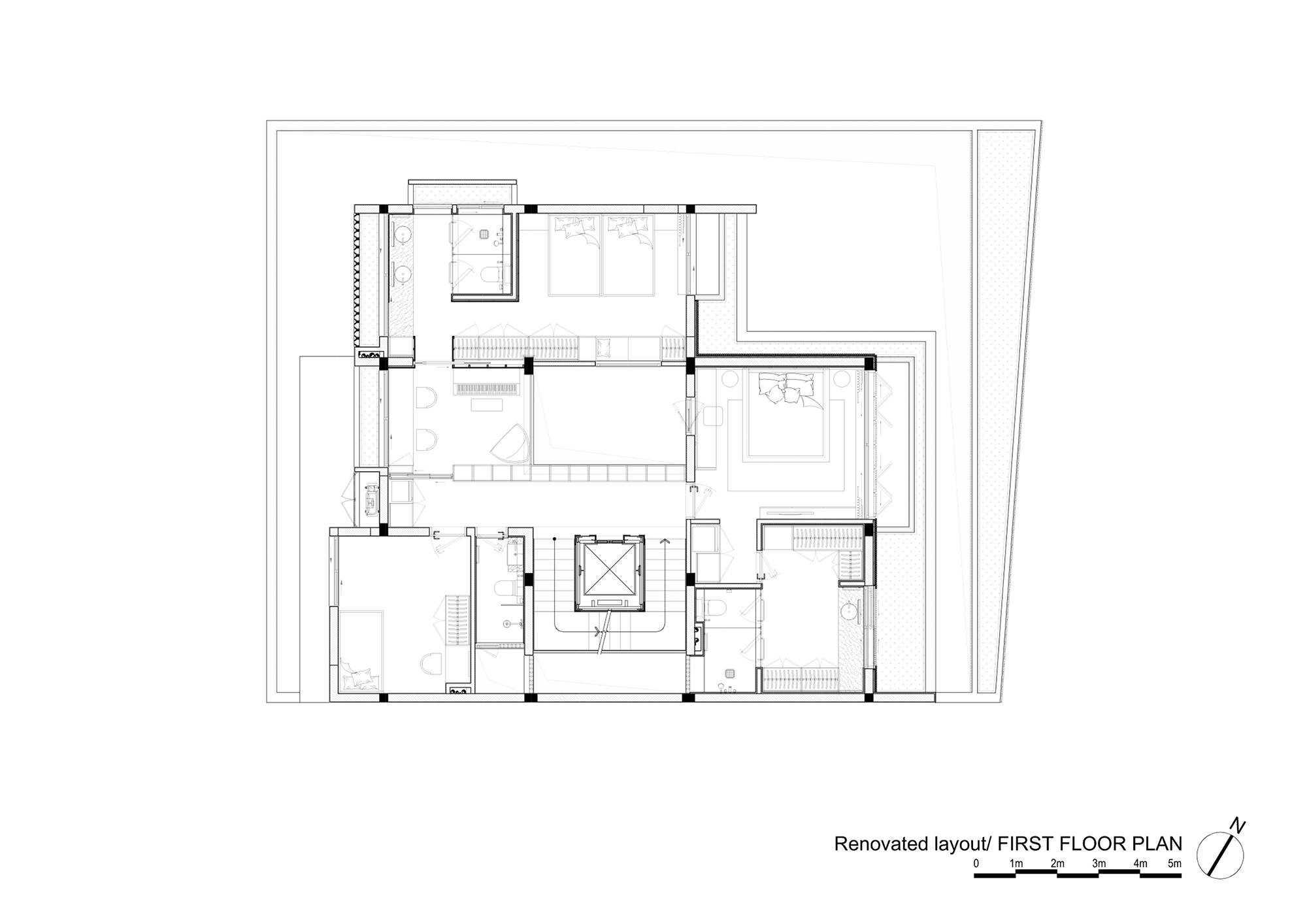
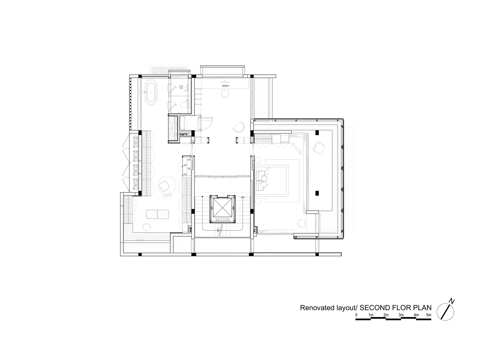
Text description provided by the architects. Located in a quiet riverside residential area, far from the city center, Black Cube House is a renovation project of a four-storey townhouse, built in 2019. The house has three open sides and a wide view of the Saigon River. However, the old space organization made the house lack light, stuffy, and not suitable for the open and nature-friendly lifestyle of the homeowner.
The main constrain was to keep the existing structure, while reorganizing the traffic flow and improving the quality of living. The proposed design solution was to move the elevator shaft, creating a clear skylight from the roof to the ground floor to bring natural light and ventilation deep through the house, helping the space to be airy and save energy.
Around the house, reinforced concrete flower pots are attached to the existing frame system, creating additional green layers at different heights. The facade of the building is covered by a system of black oiled wood slats that can be opened and closed flexibly, both providing shade and creating privacy, and playing the main role in shaping the building. The overall building is shaped like a black box - calm and solid, embracing the vitality radiating from within.
Project gallery
客服
消息
收藏
下载
最近


































