查看完整案例

收藏

下载
Colección ES总部项目涉及对位于西班牙北部桑坦德市约600平方米空间的翻新,将其转变为一位知名商人的私人当代艺术收藏的展示场所。除了主要功能外,这个空间还被设计为一个办公室,以及一个用来举办会议和接待朋友与客人的场所,所有活动都围绕艺术收藏展开。
The Colección ES Headquarters project involved the renovation of an approximately 600-square-meter space in the city of Santander, in northern Spain, transforming it into a setting for the private contemporary art collection of a prominent businessman. In addition to its primary function, the space was also conceived as an office and a venue for hosting meetings and gatherings with friends and guests, all centered around the art collection.
▼项目概览,Overall view © José Hevia
空间的很大一部分被用作展览区域,这些展览区域与用于存放收藏品的储藏室、私人浴室、两个客用卫生间、一个带用餐区的厨房(用于准备和供应餐点)、以及一间带大窗户的办公室共同存在,办公室的窗户可以俯瞰到桑坦德典型的内院之一。
A significant portion of the space is devoted to exhibition areas, which coexist with a storage room for the collection, a private bathroom, two guest restrooms, a kitchen with a dining area for preparing and serving meals, and an office featuring a large window that offers a view onto one of Santander’s characteristic inner courtyards.
▼展览区域,Exhibition area © José Hevia
▼展示的画作,Paintings on display © José Hevia
▼展示的艺术作品,Artworks on display © José Hevia
更具实用性、私密性或功能性的区域——如厨房、浴室和储藏室——通过粉色框架的方形玻璃隔断与展览空间无缝连接,这种设计贯穿整个布局。这种不断的视觉连接使得艺术品始终可见,而日常场景则像是收藏中的额外照片或画作,仿佛被框定在其中。
The more practical, intimate, or utilitarian areas—such as the kitchen, bathroom, and storage room—are seamlessly linked to the exhibition space by square glass partitions framed in pink, repeated throughout the layout. This unbroken visual connection keeps the artworks in constant view, while everyday scenes are framed as if they were additional photographs or paintings in the collection.
▼厨房外观,Kitchen © José Hevia
▼厨房,Kitchen © José Hevia
空间的布局基于笛卡尔坐标轴的几何逻辑,作为对收藏者数学背景的致敬。日本建筑的影响——源于建筑师们早期在东京的职业经历——不仅体现在空间的平静、克制的氛围中,还体现在模块化设计的使用上——在这里,正方形作为建筑组成的基础元素。
The layout of the space is based on the geometric logic of Cartesian axes, as a tribute to the collector’s background in mathematics. The influence of Japanese architecture—rooted in the architects’ early professional experience in Tokyo—is reflected not only in the calm, restrained atmosphere of the space, but also in the use of the module—here, the square—as the foundational element of the architectural composition.
▼储藏室,Storage room © José Hevia
▼储藏室内部空间,Storage room interior space © José Hevia
▼从房间内看向展览空间,View from the room to the exhibition space © José Hevia
白色主导了空间,通过一些微妙的元素柔和了这一色调:灰色地板、粉色框架的隔断、浅蓝色的家具,以及几间小房间中的桦木天花板。这种精心选择的色调反映了建筑师与这个海滨城市的情感联系——他们在这里度过了童年时光——以及作为一个与活跃艺术家紧密互动的收藏家所持有的温和、孩童般的视角。
White dominates the space, softened by subtle touches: grey flooring, pink-framed partitions, light blue furnishings, and birch wood ceilings in a few smaller rooms. This carefully chosen palette reflects both the architects’ emotional connection to this coastal city—where they spent their childhood—and the gentle, childlike perspective of a collector closely engaged with the work of living artists.
▼白色作为空间主导色,White as the dominant color in the space © José Hevia
▼浅蓝色与粉色,Light blue and pink © José Hevia
▼卫生间外观,Toilet © José Hevia
▼卫生间,Toilet © José Hevia
Colección ES总部被设计为艺术和人类联系的舞台,每个建筑决策都致力于创造一个宁静、精心构建且富有目的性的氛围。一个在这里,沉思、工作和社交互动找到了自然平衡的地方。
Colección ES Headquarters is conceived as a stage for art and human connection, where every architectural decision contributes to creating a serene, thoughtfully structured, and purposeful atmosphere. A place where contemplation, work, and social interaction find a natural balance.
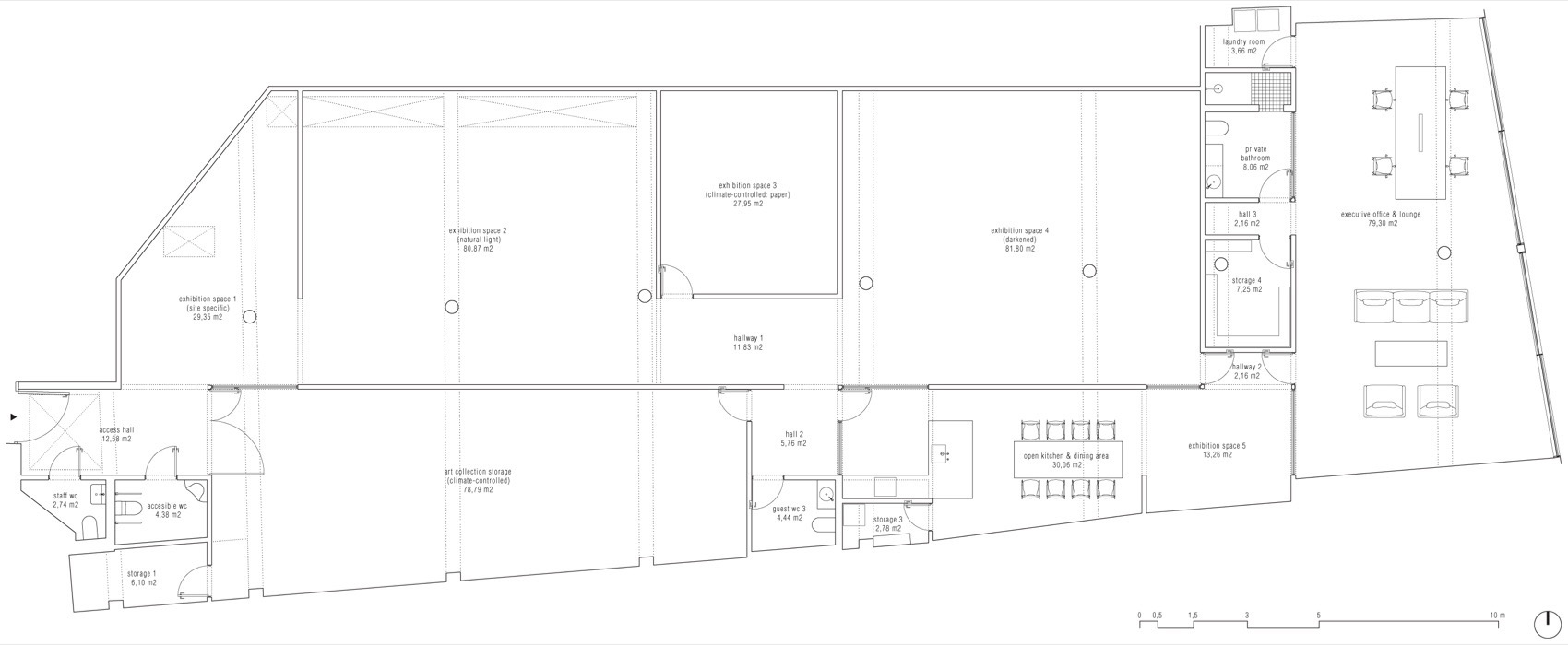
▼平面图,floor plan © Carbajo Hermanos
Studio: Carbajo Hermanos
Author: Andrea Carbajo, Galo Carbajo
hola@carbajohermanos.es
Social media: /carbajohermanos
Studio address: Calle Cristóbal Bordiú 35, oficina 205, 28003 Madrid, Spain
Project location: Santander
Project country: Spain
Project year: 2022
Completion year: 2024
Usable floor area: 660 m²
Client: Colección ES
mail@josehevia.es
Collaborators and suppliers: Legal advice and Instalations: Transprojekt,
客服
消息
收藏
下载
最近





































