查看完整案例

收藏

下载
太空探索为我们留下了超越科学的遗产:最大化居住空间潜力的能力。栖息舱是航天器的重要组成部分,作为自主且紧凑的单元,集中提供所有基本的生命支持需求。
Space exploration has left us with a legacy that goes beyond science: the ability to optimize habitable spaces to their fullest potential. Habitat modules are an integral part of spacecrafts, functioning as autonomous and compact units that concentrate all basic life-support needs within.
▼项目概览,street view© Milena Villalba
Módulo Hábitat 位于卡塔赫纳港前,建在位于Muralla del Mar(海墙)上的一座结构上,殖民化了这个空间,并为其提供了必要的服务,将其转变为一个舒适而实用的家。紧凑的、技术化的核心与其周围环境之间的二元性通过系统和材料的选择表现出来:模块采用创新的建筑解决方案,而周围空间则配置成一个温暖的、富有自然质感和有机几何形状的景观。
On this occasion, Módulo Hábitat lands in front of the Port of Cartagena, atop a structure situated on the Muralla del Mar, colonizing it and equipping it with the necessary services to transform it into a comfortable and functional home. The duality between the compact, technologized core and its immediate surroundings is expressed through the selection of systems and finishes: while the module employs innovative construction solutions, the surrounding space is configured as a warm, earthy landscape defined by natural textures and organic geometries.
▼看向附近港口,street view© Milena Villalba
设计策略
STRATEGIES
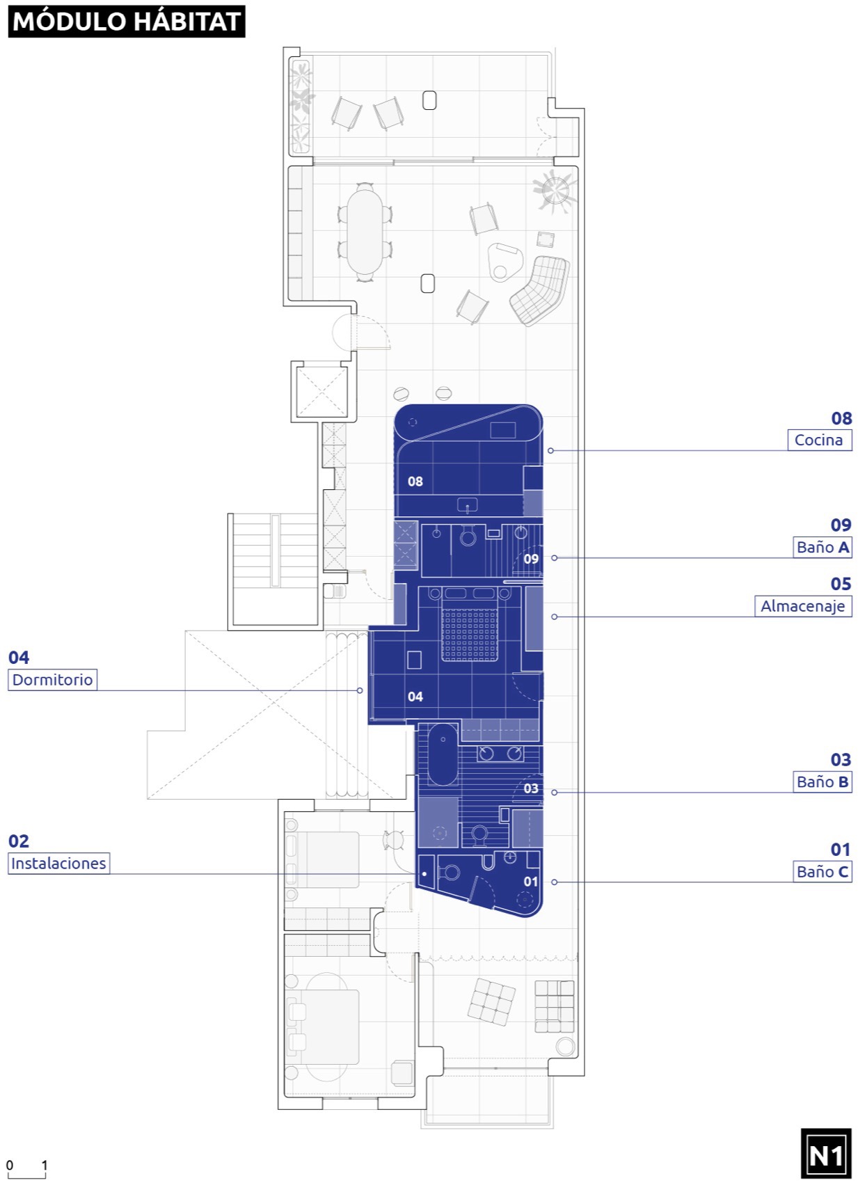
1.紧凑的功能核心
Compact Functional Core
Módulo Hábitat 以一个紧凑的核心形态展现,集中所有基本服务:厨房、浴室、储物空间、设施和气候控制。受到模块化空间设计的启发,这种方法腾出了可用地面面积,允许更灵活和流动的内部布局。
Módulo Hábitat takes shape as a compact core that concentrates all essential services: kitchen, bathrooms, storage, installations, and climate control. Inspired by modular space design, this approach frees up usable floor area and allows for a more flexible and fluid interior layout.
▼项目模型,street view© meii estudio
▼轴测分析图,street view© meii estudio
通过将所有系统——管道、排水、电力和暖通空调——整合到一个单一、易于接触的体积中,设计不仅优化了空间,而且降低了建设成本,简化了维护。这个集中式配置提高了技术效率,并增强了建筑系统的清晰度。
By grouping all systems—plumbing, drainage, electricity, and HVAC—into a single, accessible volume, the design not only optimizes space but also reduces construction costs and simplifies maintenance. This centralized configuration improves technical efficiency and enhances the clarity of the construction system.
▼起居空间,street view© Milena Villalba
2.技术化的材料性
Technologized Materiality
该模块采用预制金属结构和多层聚碳酸酯面板建造,提供外部隔热的同时保持技术系统的可见性。它光亮、半透明的外壳反射周围环境,并强化了其技术特征。通往核心的入口点由LED面板标识,激活外立面,使其成为一个可读且响应式的界面。
The module is built using a prefabricated metal structure and multilayer polycarbonate panels, which provide insulation from the exterior while keeping the technical systems visible. Its shiny, translucent envelope reflects the surroundings and reinforces its technological character. Access points to the core are marked by LED panels that activate the façade as a readable and responsive interface.
▼起居空间近景,street view© Milena Villalba
内部空间通过精心策划的色彩策略来定义。一些空间通过使用单一的大胆色调来解决,色彩应用于干净的哑光表面,创造强烈的视觉标识。其他空间则采用微妙的色彩渐变,营造动态的氛围并增强空间感知。
Inside, the rooms are defined through a carefully curated chromatic strategy. Some spaces are resolved using a single bold hue applied to clean, satin-finish surfaces, creating a strong visual identity. Others feature subtle color gradients that generate dynamic atmospheres and intensify spatial perception.
▼设计细部,street view© meii estudio
3.健康的景观
Healthy Landscape
模块的未来感、高科技感与其周围环境形成鲜明对比,后者被设计成一个温暖而自然的空间。沙质地板和纹理墙面——没有直线或刺眼的白色——创造了一个有机且宜人的景观。
The module’s futuristic, high-tech presence contrasts with its immediate environment, designed as a warm and natural space. Sandy floors and textured walls—devoid of straight lines or stark whites—create an organic and welcoming landscape.
▼厨房,street view© Milena Villalba
周围的设计遵循神经建筑学和环境舒适度的原则。通过使用有机形状、自然质感和温暖的色调,空间鼓励与场所的连接,并增强用户的福祉。
The surrounding design is guided by principles of neuroarchitecture and environmental comfort. Through the use of organic forms, natural textures, and a warm palette, the space encourages a connection to place and enhances user well- being.
▼厨房近景,street view© Milena Villalba
4.与艺术共生
Living with Art
为一户具有游牧和冒险精神的国际家庭设计,项目被构思为一个灵活且渗透的环境,能够容纳日常生活以及社交聚会和多种活动。
Designed for an international family with a nomadic and adventurous spirit, the project is conceived as a flexible and permeable environment, capable of hosting daily life as well as social gatherings and diverse events.
▼看向卧室,street view© Milena Villalba
▼走廊空间,street view© Milena Villalba
超越居民,空间通过来自穆尔西亚地区的艺术家和设计师的存在而焕发生机。他们的干预不仅在视觉和材料上丰富了空间,同时也让其文化根植于当地背景。
Beyond its residents, the space comes alive through the presence of artists and designers from the Region of Murcia. Their interventions enrich the space visually and materially, while also grounding it culturally in its local context.
▼卫生间,street view© Milena Villalba
▼浴室,street view© Milena Villalba
DelAmorYlaBelleza、Sancal、PottProject、Catalina Catarsis、SomosFino、martasanchez ia、Omar Miranda 和 Gonzalo M. Moreno 等工作室为创造独特的氛围作出了贡献,这种氛围深深植根于其周围环境,具有真实的身份。
Studios such as DelAmorYlaBelleza, Sancal, PottProject, Catalina Catarsis, SomosFino, martasanchez ia, Omar Miranda, and Gonzalo M. Moreno contribute to creating a singular atmosphere with an authentic identity deeply rooted in its surroundings.
▼平面图,street view© meii estudio
meii estudio
@meii_estudio
Start: September 2024
End: January 2025
Built surface: 200 m2
Place: Muralla del Mar, Cartagena
Client: Elda Moreno Villanueva
Team: Jose María Mateo, Elvira Carrión, Javier Albacete, Andrea Sanabria, Juan Antonio Abril
Photography: Milena Villalba ()
Contractor: Traza Construye ()
Art and furniture: DelAmorYlaBelleza, Sancal, PottProject, Catalina Catarsis, SomosFino, martasanchez ia, Omar Miranda y Gonzalo M.Moreno
客服
消息
收藏
下载
最近


























