查看完整案例

收藏

下载
优雅空间
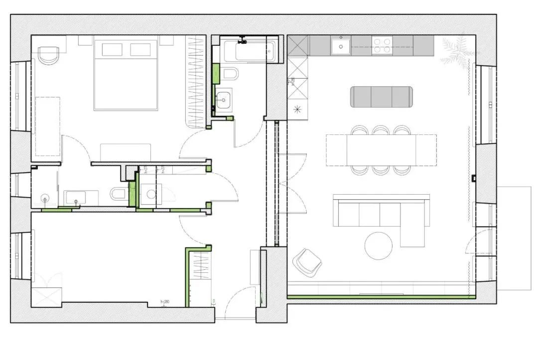
JIW studio新作,一对年轻夫妻的93㎡公寓,业主希望打造一个宽敞的起居区域,同时要有倍感亲切的巴黎氛围。双扇法式门、经典橡木实木地板、天花板石膏线等元素共同营造出这种风格。
经过改造后形成了三个房间,其中一个是与厨房区相连的大客厅。
轴对称布局扮演着重要角色,不仅在日间活动区的功能布局及配套照明点位中采用这一设计,走廊的储物柜与卧室的门体组合等细节也融入了对称美学。
厨房的石英台面与柜间面板上,大理石纹理的连贯过渡得以完美呈现。
为实现视觉连贯性,房间均采用反向开门设计。
卧室是一个明亮开阔的空间,大型衣柜通过弧形设计柔和过渡,弧形区域内嵌装饰搁板。
第一间浴室采用薄荷绿手工砖与灰色大尺寸瓷砖搭配;而业主的私人浴室则再次运用了小砖块元素,珊瑚色“Ovo M+”洗手盆为空间增添了一抹亮色。
空间布局
▽
客服
消息
收藏
下载
最近





















