查看完整案例

收藏

下载
ZEECO 吱个
——发酵的生长
ZEECO吱个 是一家位于沈阳的烘焙空间,拥有稳定的产品与面向年轻用户的品牌形象。我们希望,这个空间不仅是一个售卖面包的地方,更是一个城市日常中被酵香包围的慢节点。
ZEECO is a bakery space located in Shenyang, known for its consistent products and youth-oriented brand identity. We envisioned it not just as a place to sell bread, but as a slow, everyday retreat within the city.
原始空间为双层通高状态,具备极为开阔的体量优势。我们在此基础上增加了局部夹层,将一层售卖区整体挑空,配合二层局部退让,形成具有垂直感的连续性,保留了视觉上的最大通透感。
The original space featured a double-height volume with a generous scale. We introduced a partial mezzanine while keeping the ground-floor retail area fully open. The recessed second floor creates a sense of vertical continuity and preserves maximum visual openness.
“酵母剧场”
面包不止是商品,它在空间中应该像“被看见的现场感”。站在门口,可以看到面包摆放、陈列、制作的全过程;也可以望见楼上的座位、灯光与人的活动,让这座店成为一个开放而透明的“酵母剧场”。
Bread is more than a product—it should feel present and visible in the space. From the entrance, one can see the full process of display and preparation, as well as the upstairs seating, lighting, and activity. The result is an open and transparent theatre.
街道立面采用解构主义的两段式的构成方式:一段是封闭的石材墙面,用来聚焦入口;另一段则完全打开,展开了一个通透的折叠门界面,拉开后形成内外连通的开放咖啡座。
The street-facing façade is composed in two parts: a solid stone wall that anchors the entrance, and a fully openable folding door system that connects the interior with an outdoor café area.
外立面材质选用了一种表面有轻微不平整感的米色砖,结合木色系统与灯光,形成柔和而克制的视觉调性,符合品牌柔中带拙的面包哲学。
The exterior features a beige brick with a subtly uneven texture, paired with warm wood tones and soft lighting to create a gentle, restrained visual language—echoing the brand’s philosophy of rustic refinement.
让氛围自然生长
我们希望在一层实现最大限度的通透。玻璃折叠门打开之后,面包的香气、街道的光线、坐着喝咖啡的人,这三者是互通的。我们希望这个空间不是强调功能,而是强调氛围的自然生长。
We aimed for maximum openness on the ground floor. When the folding glass doors are open, the aroma of bread, the light from the street, and people enjoying coffee flow seamlessly together. The space is designed to grow organically with atmosphere, rather than be defined strictly by function.
The central bread counter on the ground floor remains fully open to the double height, surrounded by a mix of public and semi-private seating. Circulation flows naturally between the retail and dining areas, creating a dynamic interplay of seeing and being seen.
我们将二楼定义为“坐得久”的空间。相比一楼的流动性,这里是一个“酵香慢下来”的地方。我们将座位分散布局,嵌入书架、陶器、托盘车、绿植等带有“松弛感”的装置,使这个空间既可以静静坐着看书,也可以成为小型聚会、约会、工作会议的节点。
We designed the second floor as a space for lingering. In contrast to the fluidity of the ground level, this area invites a slower pace. Seating is loosely arranged among bookshelves, ceramics, trolleys, and greenery, elements that create a relaxed atmosphere suited for reading, small gatherings, dates, or informal meetings.
空间中以实木、陶罐、面粉袋、货架为界面,定义出一种质朴又轻松的空间感。这些场景不是功能装饰,也不是视觉导览,它们更像是被面包气味激发出来的某种生活碎片。这也是我们在做空间时想坚持的,不是把空间填满,而是保留想象和日常的空隙。
The space is framed by elements like solid wood, clay jars, flour sacks, and shelves, creating a sense of simplicity and ease. These scenes are neither purely functional nor decorative. They feel like everyday fragments evoked by the scent of bread. This reflects our approach: not to fill the space, but to leave room for imagination and daily life.
ZEECO是一个节点,是一种城市中“面包生活感”的持续实验。我们希望它不仅是一家面包店,而是成为一个区域生活的组成——可以偶遇、可以停留、可以打开。就像发酵,是慢慢长出味道的过程。
ZEECO is a node—an ongoing experiment in the everyday culture of bread. We hope it becomes more than a bakery, growing into part of the neighborhood’s rhythm—a place to stumble upon, to linger in, to open up. Like fermentation, it’s a slow unfolding of flavor.
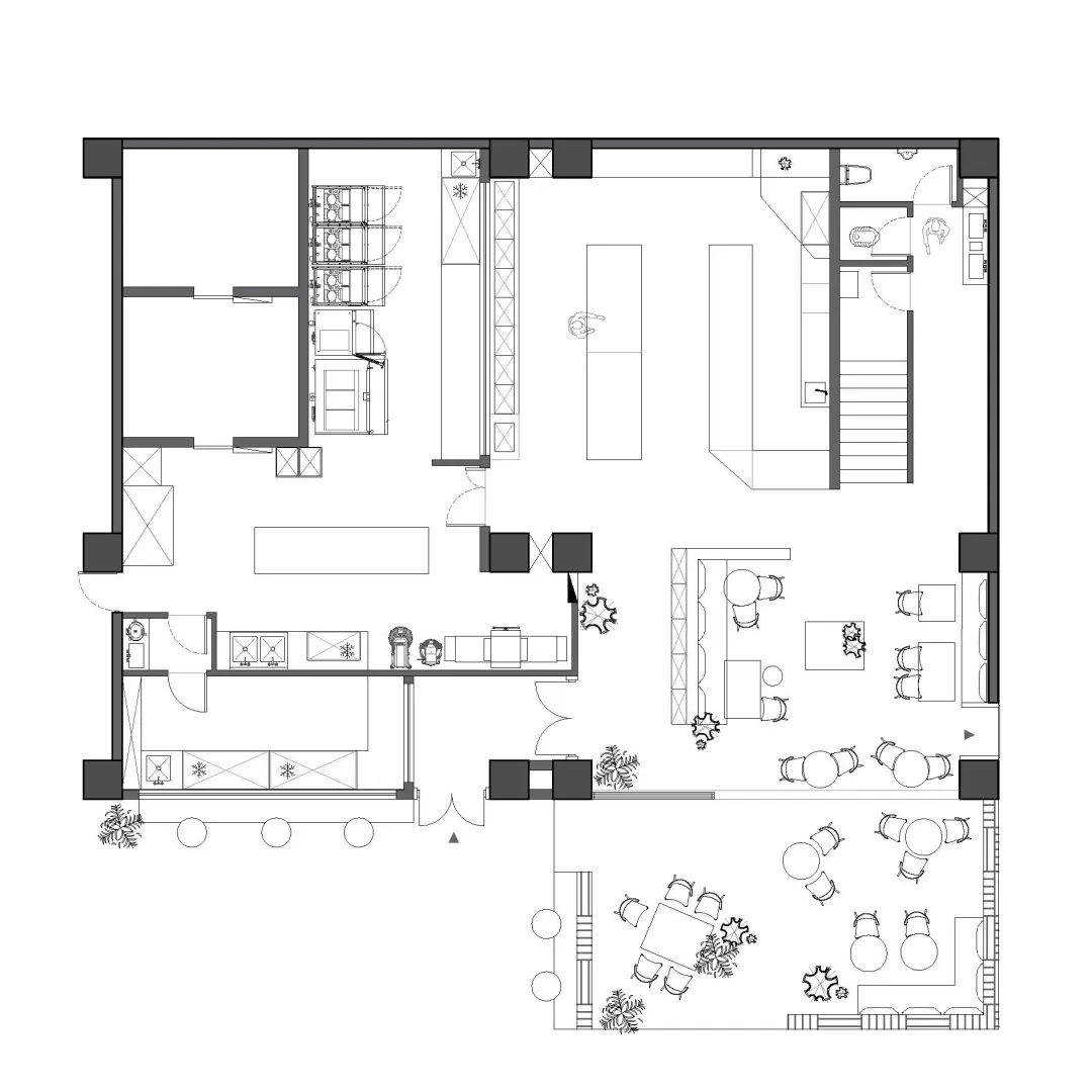
一层平面图
二层平面图
项目地点:辽宁沈阳
项目面积:472 sqm
设计公司:白菜设计
照明设计:亦卉灯光设计
空间摄影:图派视觉
客服
消息
收藏
下载
最近







































