查看完整案例

收藏

下载
取一抹徽文化音符
融于水岸间木的韵律
项目设计以“古今交融”为核心理念,巧妙平衡现代美学与传统文化底蕴,最终营造出兼具历史厚重感与未来先锋气息的独特空间氛围。建筑外立面的设计尤为点睛——传统中式建筑的经典元素与通透的现代玻璃幕墙相互碰撞,既保留了文化记忆的温度,又彰显了当代设计的利落,在光影流转间形成丰富的视觉层次与对话张力。
| 项目图纸
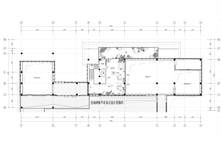
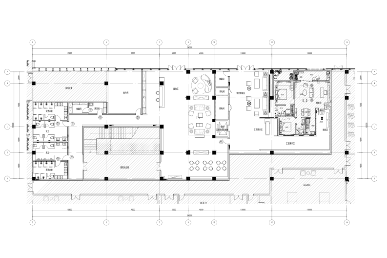
1F、2F、-1F平面图
左右滑动,查看更多 →
当视线掠过开放式落地窗,泳池的碧蓝与自然湖泊的粼粼波光浑然相接,仿佛整个空间都化作湖岸的延伸——置身于室内空间,抬眼是室内与自然交融的惬意,低头便似要坠入那片衔接着天地的澄澈,任身心在这般虚实相生的自然怀抱中遨游。
内部设计以大面积温润木色为基底,巧妙融入东方传统图形意象——格栅窗棂的几何韵律、榫卯结构的线条美感、在木质肌理中自然铺展。这份设计既以木材的天然质感传递出高端雅致的品质感,更借由东方图形中“天人合一”的哲思,呼应着对生活本真的珍视与对自然万物的敬畏,让空间在温润中透着东方文化独有的沉静与从容。
沙龙区以开放式格局铺展,通透的玻璃与格栅百叶交替错落,将窗外的无边水景不着痕迹地纳入视野。粼粼波光透过轻盈的隔断,与室内空间达成默契的视觉共鸣——水景仿佛顺着地板的肌理自然漫入,化作一条虚实相生的景观走廊,让开阔感与静谧感在光影流转间肆意流淌。
半室外楼梯作为垂直交通的中枢,以木材为笔勾勒出独特的艺术形态,让每一级台阶都浸透着温润的质感。木色的自然肌理与周遭的天光、原石艺术品,营造出优雅沉静的空间氛围。
设计以现代美学为骨、多元手法为肌,深度解构并巧思运用自然景观——或是将天光云影引入室内,或是以绿植水景呼应窗外景致,于细节处尽显对自然肌理的深刻洞察。这般设计不仅赋予空间脱俗的艺术格调,更精心打造出兼具实用功能与美学价值的高端适老化房地产展示场域,让潜在客户在感受自然与空间共生之美的同时,亦可直观触摸到适老设计的人文温度与品质质感。
项目信息
项目名称:巢湖中铁佰和佰樂滨水服务中心
项目位置:安徽,合肥
项目面积:1700平方米
设计公司:
金螳螂第十四设计院
设计团队:周维、吕春锋
项目摄影:业主提供
周维
金螳螂第十四设计院 常务副院长
代表作品:
海澜之家企业总部、景嘉微企业总部、中铁佰和佰樂巢湖国际健康部落项目、南京水墨大埝综合馆方案设计、利辛邦泰君澜国宾酒店、
四川绵阳吉盛酒店。
金螳螂设计研究院致力于提供酒店餐饮、办公、住宅、医养、商业、科教文体、轨道交通等室内设计全程服务。在美国《室内设计》杂志公布的全球室内设计百大排名中,金螳螂设计名列商业全球第1、住宅全球第2、酒店全球第3,综合排名亚洲第1、全球第4。
客服
消息
收藏
下载
最近




















