查看完整案例

收藏

下载
焱火美学 喜炙和牛
-
“焱” 确是个绝妙的名字。“焱” 字三火相拥,藏着层层深意:一火炙肉锁鲜香,二火炼技控火候,三火聚客引欢颜;“喜” 字含愉悦圆满之意,是味蕾满足与亲友围坐的暖意。两字相契,是火焰熊熊的炽烈生命力,是炭火跃动的温度,是烟火人间的鲜活气,更是对生活不褪的热忱。
门头采用黑金配色点缀红色光芒,整体以墨黑为底,金色拱形造型自下而上,稳稳伫立在眼前,气势磅礴,它似一道敞开的盛情门扉,以雄浑姿态迎接每一位来客,内里红色火苗图案似跃动的焰,与旁侧红壁炉的暖相互呼应。这般意象与情致,恰与和牛烧肉店的气质严丝合缝。
入口挑高大厅,经顶面镜面映衬更显开阔。绯云状纸艺装置舒卷灵动,如流霞漫过、似混天绫飘荡,从一头延至另一头,欲挣脱空间束缚,在光影中搅动炽烈浪涛。酒柜直抵顶面镜面,与镜中倒映出的虚影上下相衔、虚实交织。
楼梯间内,扶手与踏步下的灯带漫溢出暖光,将整个空间晕染得氛围感十足。楼梯尽头,一尊红色摆件静静伫立,与周遭暖意相映,别添几分意趣。
墙面火山岩浆肌理灯箱带着粗粝的肌理,而嵌入其中的壁炉却透着几分精致,粗糙与精致相碰,与烧肉元素十分契合。一楼就餐区整体以暗黑色为底,墙面各处点缀品牌符号,黑与红相衬,隐隐透出几分神秘感。
造景区石头上迎客松盆景的绿与格子灯箱的红形成鲜明对比,增加了空间的层次感和自然感。石头与盆景的组合,营造出一种宁静、和谐的氛围,让顾客在享受美食的同时,也能感受到自然的气息。
二楼走道尽头造景区朱雀屹立,熠熠生辉。朱雀原指古代传说中的一种神鸟,象征着吉祥、繁荣和美好的未来。朱雀自古属火,与 “焱喜” 的炽烈之意一脉相承,更与烧肉的原始烟火气隐隐相契。
盥洗区的红色墙砖,带着炭火炙烤后的光泽,把烧肉的热乎气悄悄揉进了空间里。黑石台盆与红墙相衬,粗粝里藏着股张力,像炭火与肉的碰撞,克制中自有力量。
二楼的包厢里也藏着不少巧思,从那些包厢的名字,便足以让人窥得一二。壹和,一帆风顺,和和美美。贰贵,两全其美,富贵满堂。叁吉,三生万物,吉祥安秦。肆喜,四通八达,喜气洋洋。伍福,五谷丰登,福星高照。陆顺,六六大顺,顺风顺水。柒祥,七星高照,福社吉祥。
[color=rgba(0, 0, 0, 0.9)]
壹和
[color=rgba(0, 0, 0, 0.9)]
包厢
[color=rgba(0, 0, 0, 0.9)]
以暗黑色调为基底,餐椅
[color=rgba(0, 0, 0, 0.9)]
、
[color=rgba(0, 0, 0, 0.9)]
装饰画、玻璃砖的红,不偏不倚地点缀在空间各处,分寸拿捏得恰到好处。
[color=rgba(0, 0, 0, 0.9)]
伍福包厢以暗黑色调为底,视觉中心墙面,红色灯光温柔包裹“LOGO火焰”超级符号,其跃动意象与烧肉热烈氛围相映成趣。
整体空间以红色为主色调,红色象征着热情与活力,与和牛烧肉的热烈烹饪过程相呼应,能够刺激顾客的食欲,增添用餐的愉悦感。本案设计将和牛烧肉的热情与自然的宁静完美融合,为顾客提供了一个独特而难忘的用餐体验。
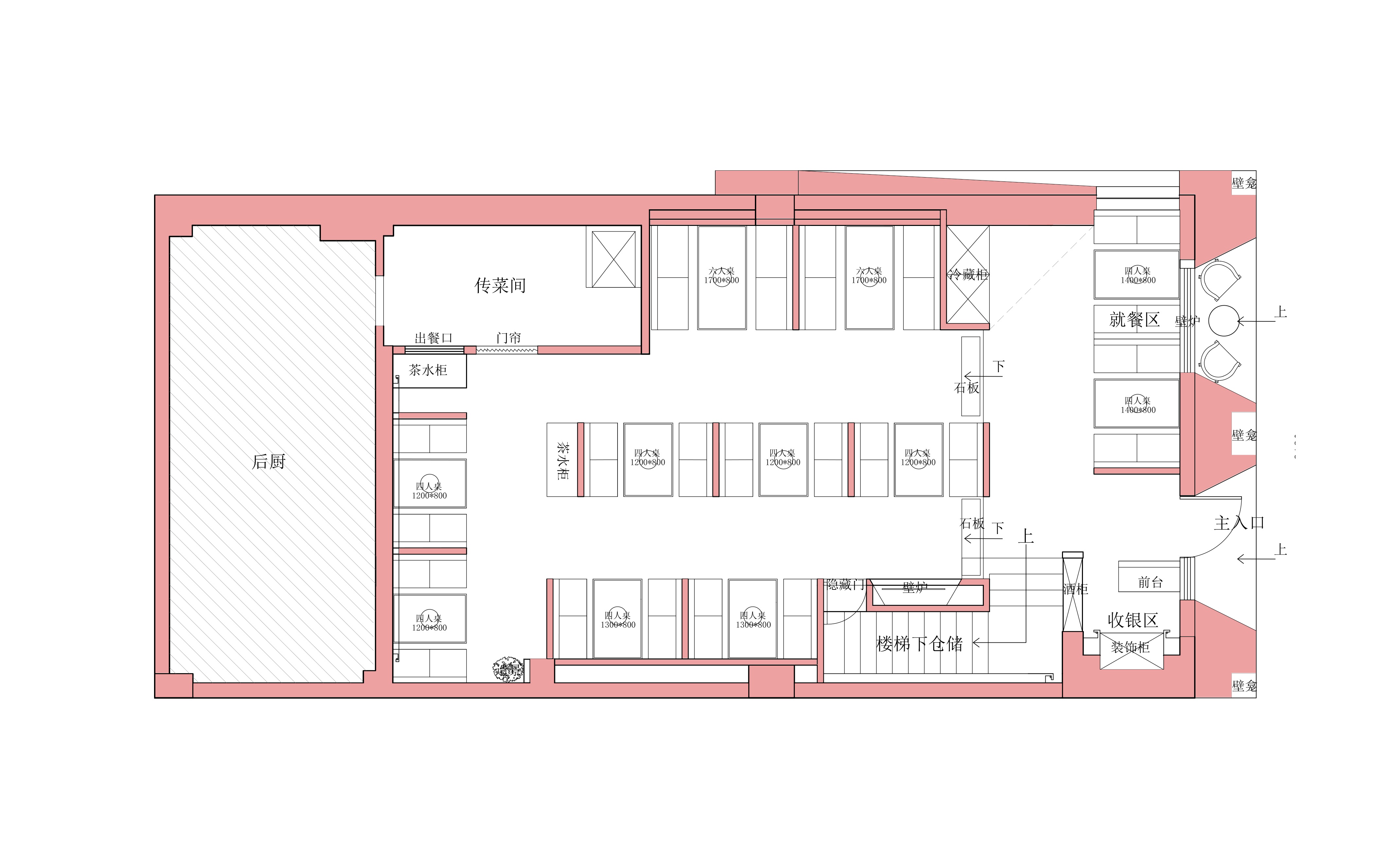
一层平面布局图
二层平面布局图
项目信息:
项目名称 | 焱喜.和牛烧肉
项目地址 | 江苏连云港
项目面积 | 200㎡
设计时间 | 2025年4月
完工时间 | 2025年6月
设计团队 | 点度空间设计
主创设计 | 曾毅
品牌顾问 | 秦泗平
参与设计 | 丁利飞、谢雨情、孟洁
项目摄影 | 张先哲、王俊义
客服
消息
收藏
下载
最近











































