查看完整案例

收藏

下载
一座会呼吸的家庭美术馆
——让空间随着四季吐纳艺术,在时光流转中生长出独特的生活诗学。
项目视频
在这个跃层洋房中,美术馆的审美基因与居住空间的温度,在每一次呼吸间完成共生。
这套跃层洋房以“光的流动”为设计线索,通过隐藏嵌入系统、双挑空客厅与悬浮楼梯重构空间叙事。设计师坦言:“我们要做的不是房子,而是一个会呼吸的家庭美术馆。”
挑空客厅的光之戏剧
空间不再是物质的简单堆砌,而是通过光的流动、材质的对话、功能的隐现,构筑出一个能让人真正放松的精神场域。
6米高的挑空客厅,搭配巨幅落地窗,让阳光自一层倾泻至二层。阳台外扩后,空间更显开阔通透,客厅成为家庭的核心场域。
奶白色的微水泥墙面如同画布,捕捉着一天中不同时段的自然光影;悬浮的旋转楼梯不仅是连接空间的通道,更似一件动态雕塑,在行走间完成人与建筑的互动仪式;隐藏式的收纳系统和嵌入式家电,让生活需求被优雅地包裹,留下的只有纯粹的空间体验。
当女主人倚在沙发阅读时,当一家三口围坐在餐桌共进晚餐时,当女儿在莫兰迪粉的房间里安静学习时——这个家便超越了物理空间的范畴,成为记忆的载体、情感的纽带,以及每个家庭成员都能找到归属感的灵魂居所。
真正的奢华,从不是物质的炫耀,
而是让空间成为滋养生活的容器,
在日复一日的使用中沉淀出属于这个家的生命痕迹。
旋转楼梯雕刻光之路径连接一二层的悬浮式旋转楼梯,以玻璃扶手与光带踏步营造轻盈感。楼梯下方植入绿植景观,将自然引入室内,形成一处微型的生态角落。在城市核心腹地,这处绿意是连接自然的通道,是对生命力的赞美。
简单的极致指向丰盈
设计师杨婷认为,“少,却要更好。”这种“少”不是单调的减法,而是通过精准的比例把控、极致的细节处理、考究的材质搭配,让每一个保留的元素都发挥最大价值。
餐厅呈回字型,设备与功能退后,隐藏于柜体之内,满足生活需求,家人用餐中的互动和交流成为不变的核心,被强调和放大。
在这里,极简不是目的,而是手段——通过做减法,让真正重要的生活场景得以凸显,让家庭成员间的互动更加纯粹,让空间真正回归为人服务的本质。一张超长茶台与置物架便构成了茶室。自然光透过纱帘,在空间中留下柔和的光影轨迹和两种空间表情:白昼通透,暗夜静谧。看似虚无,却蕴含无限,成为主人停留最久的空间。
主卧空间里藏着酒店套房设计哲学,空间序列以隐藏门为开端,进入睡眠区,双通道衣帽间,三分离卫浴间。
这不是简单的卧室复制,而是将高端酒店的舒适基因,转化为更适合中国家庭日常的“可居住的艺术品”。
一场粉红色的成长礼
“每个女孩都值得一个既能做梦又能扎根的空间。”设计师以这样的初心,为小主人打造了这个会随着年岁生长的浪漫宇宙。
成长不必着急,童年无需过早退场。最好的儿童房不是幼稚的游乐场,而是一个尊重独立人格,又保留童心的温柔宇宙。在这里,小女孩可以安心地慢慢长大,因为空间早已为每个年龄段的她,准备好了恰如其分的拥抱。
空间是生活的容器,时光是最好的设计师,把建筑的诗意写在硬装里,把三餐烟火写在软装中,而最重要的故事,永远留给居住者自己书写。
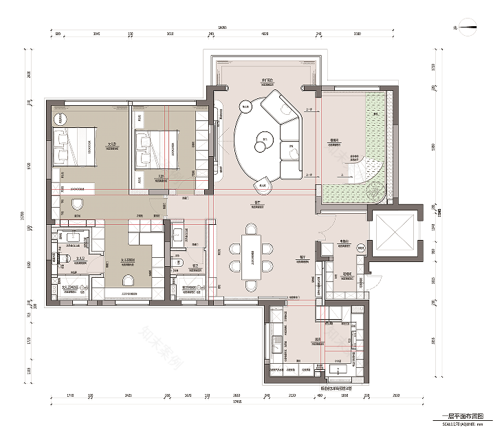
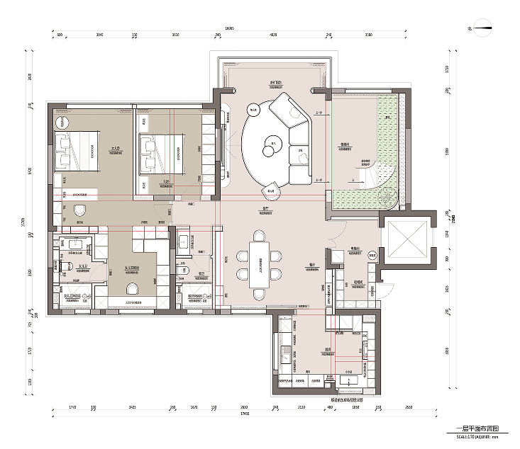
平面图
(一 层)
(二 层)
项目地址:新世界卓铸
合作模式:全案托管
设计风格:现代风格
主案设计师: 杨婷
参与设计师:朱东
设计机构:沈阳杨婷装饰设计有限公司
项目面积:425㎡
设计时间:2023.07
完成时间:2024.12
主要材料:木作、理石、岩板、艺术漆、金属
杨 婷
Yang Ting
杨婷设计机构 创始人/设计总监
室内建筑师室内设计师
陈设艺术设计师
专注于原创设计,打造属于客户独特的个性标签。
在设计上也与传统设计方式有所不同,设计采用数据化SU建模的设计方式,采用1:1精准设计使项目精准落地实现。全程使用3D可视化设计,改变原有设计思维模式。使家装设计的细节部分可以清晰、真实的显现。
在施工上定义新的施工标准,用科学数据化模式指导工程。
做到设计与现场的精准对接,直观的了解现场现状,有效的提高工作效率、节约成本和缩短工期。
在服务上做到以“管家式现场工地管理”服务模式的核心,将项目做为一个整体,统一的协调管理,为客户把关,做到让客户对所得到的服务感到全面满意。
客服
消息
收藏
下载
最近








































