查看完整案例

收藏

下载
「天物有所」位于上海浦东高桥镇夏碧路、毗邻外高桥保税区,前身为永乐电器商场。为回应社区复合化发展需求,设计在尊重场地历史文脉的基础上,将建筑打造为开放性、渗透性的空间界面。通过空间活化与复合业态引入,融合艺术策展、文化事件与生活美学体验,激活街区活力,提升区域生活品质与人文价值。
Located on Xia Bi Road in Gaoqiao Town, Pudong, Shanghai, and adjacent to the Waigaoqiao Free Trade Zone, Tianwu Yousuo is the former Yolo Electrical Appliances Shopping Centre. In response to the community’s demand for composite development, the site’s historical heritage was respected and an open and permeable spatial interface was created in the design. Through spatial revitalization and the introduction of integrated industry, the art curatorship, cultural events and aesthetic life experiences were integrated to activate the vitality of the neighbourhood and enhance the quality of life and humanistic values of the area.
▼建筑主入口,Main entrance to the building ©存在建筑-建筑摄影
天物有所延续了场所的记忆,通过解构与重组,体块相互穿插咬合,营造丰富的立体层次。改造后建筑轻盈通透,用打开和退让的设计手法,模糊内外边界,拥抱城市街巷,让建筑可以呼吸,唤醒人、建筑与自然的关系。
Tianwu Yousuo keeps the memory of the place. Through deconstruction and reorganization, the massings are interspersed with each other to create a rich three-dimensional hierarchy. The transformed building is light and well ventilated. The internal and external boundaries were blurred with opening and backing down design techniques, so that the building can breathe and embrace the city streets and alleys, and the relationship between human beings, architecture and nature is awakened.
▼建筑原貌,Factory Before Interventions ©本哲建筑
▼东侧入口,East entrance ©吕晓斌
▼金属书架从室内往外延伸 The metal bookshelves extend from the interior to the exterior ©Arch-Exist Photography ©存在建筑-建筑摄影
改造后的公共空间由「不眠书店」主理,24小时运营模式建立空间公共性与时间维度。在空间策略上,入口区域成为设计的焦点,金属书架从室内向外延伸,引导空间流线,强化了建筑作为社区活力的公共属性。
The transformed public space is managed by Bumian Book Store. The public nature of the space and time dimension were established in a 24 - hour operation mode. In terms of spatial strategy, the entrance area became the focus of the design. The metal bookshelves extend from the interior to the exterior, guide the flow of the space and reinforce the public attributes of the building as a vibrant community.
▼主入口中庭,Atrium at the main entrance ©存在建筑-建筑摄影
▼破壳新, Breaking the shell for new life ©吕晓斌
中庭部分通过立体交通串联高低区,以金属网构建“破壳新生”的视觉意向,重构空间脉络。原本功能化的垂直交通核,由此蜕变为富有生命张力的艺术装置。消解传统交通空间的乏味,让穿梭其间的人们沉浸于新生场所的叙事之中。中庭顶部被打开,光成为空间的线索,通透温暖。
The atrium connects the high and low zones through three-dimensional traffic. Metal mesh was used to construct the visual intention of ‘breaking the shell for new life’ and reconstruct the spatial vein. The original functional vertical traffic core was transformed into an art installation full of vitality. The tediousness of the traditional traffic space was relieved to immerse the people travelling through it in the narrative of the new place. The top of the atrium was opened up, and light became the clue of the space, which is transparent and warm.
▼金属网构阶梯一层入口,Entrance of the metal mesh stair at the ground floor ©存在建筑-建筑摄影
▼金属网构阶梯转角,Metal mesh staircase corner ©吕晓斌
一楼简化的平面示意图,以LED灯管标志装饰呈现,以有趣的设计语言,与原始斑驳的肌理墙面进行对话。
The simplified plan schematic of the ground floor is presented with LED light tube logo decorations, which is in dialogue with the original mottled textured walls in a playful design language.
▼咖啡角,Coffee corner ©吕晓斌
首层核心区为阅读空间,通高书架连接高低区,小尺度连廊串联错层空间,在这里无论是阅读,探索、轻声交流还是漫步,都能感受到亲密的邻里关系。灵活多变的场景转换,让活动、展览和市集等社交方式轻松实现。
The reading space is the core area of the first floor, with through-height bookshelves connecting the high and low zones, and small-scale connecting corridors stringing together the staggered spaces, where the close neighbourhood relationship can be experienced while reading, exploring, softly communicating or strolling. Flexible and versatile scene conversion allows socialization methods such as events, exhibitions, bazaars, etc. to be easily realized.
▼一层阅读休闲区,The reading and leisure area at the first floor ©吕晓斌
▼书店一角,A corner of the bookstore ©吕晓斌
▼金属材料构成表达,Metallic material composition and expression ©吕晓斌
▼LOFT连廊,LOFT corridor ©吕晓斌
原始的空间功能单一,在改造后,二层原有装饰天花被拆除,对裸露顶部进行梳理,铺设镀锌线槽,植入发光LED字母组合,引导人流路径,为空间增加了戏剧性。
The original space was monofunctional. In the renovation, the original decorative ceiling on the first floor was removed, the exposed top was combed, galvanized wire channels were laid, and a combination of illuminated LED letters were implanted to guide the traffic and add drama to the space.
▼引导人流路径,Traffic guiding path ©吕晓斌
▼二楼主通道区,The main passage area of the second floor ©吕晓斌
▼组合式书架,Combined bookshelf ©吕晓斌
部分结构顶部被打开,安置多个异形玻璃顶篷,自然光线透进室内,空间得以延展,也再次回应了本哲建筑的设计理念:建筑、人与自然之间的关系。
Part of the structural ceiling was opened up and multiple shaped glass ceilings were installed. The natural light penetrates into the interior to extend the space, which once again responded to the design concept of Benzhe Architecture Design: the relationship between architecture, man and nature.
▼多个异形玻璃顶篷,Shaped glass ceilings ©吕晓斌
▼悬吊式原木楼梯,Suspended Log Stairs ©吕晓斌
▼通向屋顶向前探索,Access to the roof for further explore ©存在建筑-建筑摄影
空间的肌理主要为耐候钢和不锈钢,与裸露的混凝土砖墙旧结构交织共存,粗野解构,完成一场当下与往昔的对话。见证“破壳”和“再生”后,继续向前探索。
The texture of the space is mainly made of weather-resistant steel and stainless steel, which intertwines and coexists with the old structure of the exposed concrete brick wall, roughly deconstructing and completing a dialogue between the present and the past. After witnessing the “breaking shell”and “regeneration”,you are expected to explore forward.
▼东北侧沿街视角,View along the street on the north-east side ©存在建筑-建筑摄影
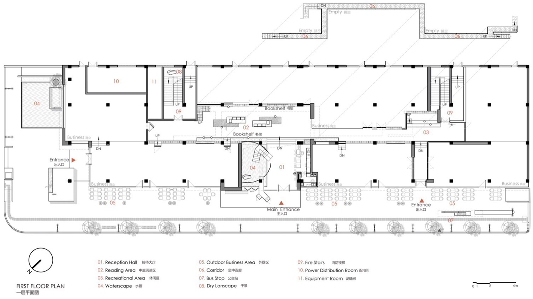
▼一层平面图,One-level floor plan ©本哲建筑
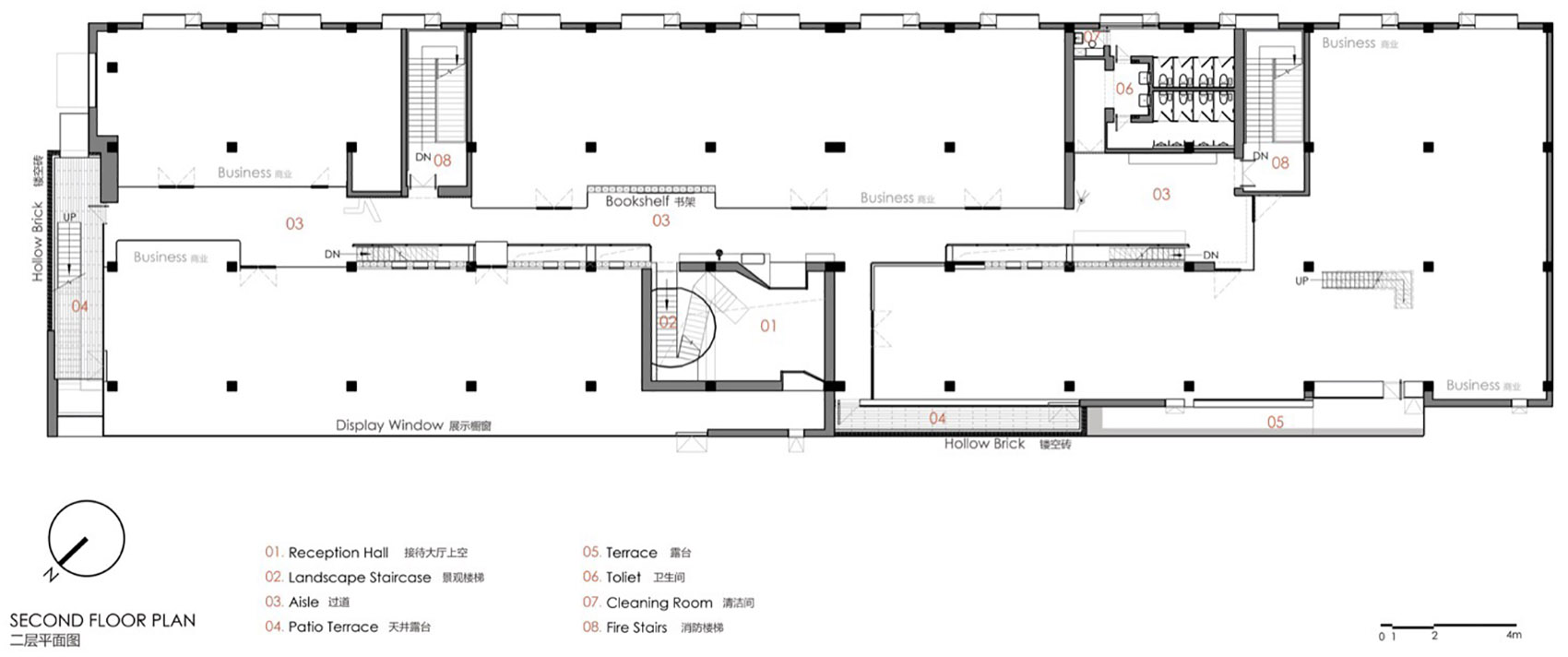
▼二层平面图,Two-level floor plan ©本哲建筑
▼屋顶平面图,Roof-top floor plan ©本哲建筑
▼北立面图,North facade ©本哲建筑
▼东立面图,East facade ©本哲建筑
▼剖面图,Section ©本哲建筑
▼剖面图,Section ©本哲建筑
项目名称:天物有所
项目地点:中国上海市浦东新区夏碧路367号
建筑/室内/景观设计:本哲建筑
主创建筑师:蒋华健
设计团队:姚瑞艮 林桐
建筑面积:2600m²
占地面积:1300㎡
设计时间:2023年3月-2023年6月
竣工时间:2024年10月
业主方:上海本物文化发展有限公司
摄影:存在建筑-建筑摄影、吕晓斌
Project name: Tianwu Yousuo
Location: 367 Xiabi Road, Pudong New Area, Shanghai, China
Building/interior/landscape designer: Benzhe Architecture Design
Senior architect: Jiang Huajian
Design team: Yao Ruigen, Lin Tong
Building area:2600m²
Floor space:1300㎡
Design time: March 2023-June 2023
Completion time: October 2024
Company Email:
Owner: Shanghai Benwu Culture Development Co.,Ltd
Photography: Arch-Exist Photography, Lv Xiaobin
客服
消息
收藏
下载
最近






























