查看完整案例


收藏

下载
地点:罗卡63,乌斯怀亚市,火地岛,阿根廷。
艺术概念/项目/建筑文件/室内设计
HitzigMilitelloArquitectos
建筑经理:
莱昂纳多·米利泰洛
协作者,合作者,勾结者( collaborator的名词复数 ):
弗吉尼亚·博坦(Docentación)
曼努内拉·文图拉
表面积:
地下38平方米
一楼53平方米
该项目位于世界最南端的城市,阿根廷巴塔哥尼亚的乌斯怀亚,该城的建筑是典型的港口城市之一。地点是材料选择的决定性因素。这意味着所使用的材料主要是土产的,因为与该国最具活力的城市中心相距很远。这意味着对材料的合理使用,这些材料大多是木头和钢板。是一种建筑,它似乎一直停留在时间上。室内结构也主要是木材和气球框架结构。
这个项目的开始是通过木箱建立“Ramos Generales”杂货店(传统的阿根廷仓库),以及它的“明星”产品,啤酒装在种植者手中。
将种植者作为电器和木箱作为产品货架的决定就是一个例子,其中包括一些专门设计的元素,其目的是创造一种与所销售的产品类型绝对具有约束力的美学建议。
拉姆加是阿根廷巴塔哥尼亚的原木,被选为一楼的内衬。选择了一楼的黑板,目的是作为销售产品的沟通工具。
该项目将两种材料-木和白瓦-结合在一起,以平衡材料的调色板,使空间不完全依赖于木材。
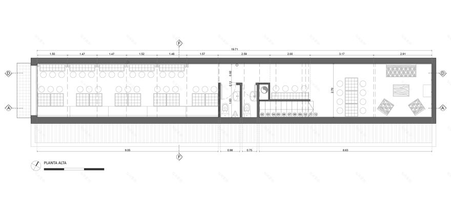
空间面积只有90平方米,一楼和一楼的宽度仅为2.75米,布局是一个巨大的挑战。
在底层的想法是建立自助服务和取走区域,以响应客户的要求,给予空间灵活性,允许不同类型的消费者。一楼分布在不同的用途:低桌子,酒吧,生活。
Firm Hitzig Militello arquitectos
Type Hospitality + Sport › Bar/Nightclub Restaurant
STATUS Built
YEAR 2017
SIZE 0 sqft - 1000 sqft
BUDGET $100K - 500K
keywords:architecture, architecture news, interiors, interior design, portfolio, spec, brands, marketplace, products The Birra
关键词:建筑,建筑新闻,室内设计,产品组合,规格,品牌,市场,产品
客服
消息
收藏
下载
最近

































