查看完整案例

收藏

下载

翻译
BY
360 ARCHITECTS
SCOPE
Creating concept designDesign plans and 3D as a preliminary designModeling & 3d Visualizing
LOCATION
Sadat City,Menoufia, Egypt
©2024.360 ARCHITECTS
All Rights Reserved
DESIGN CONSIDERATION
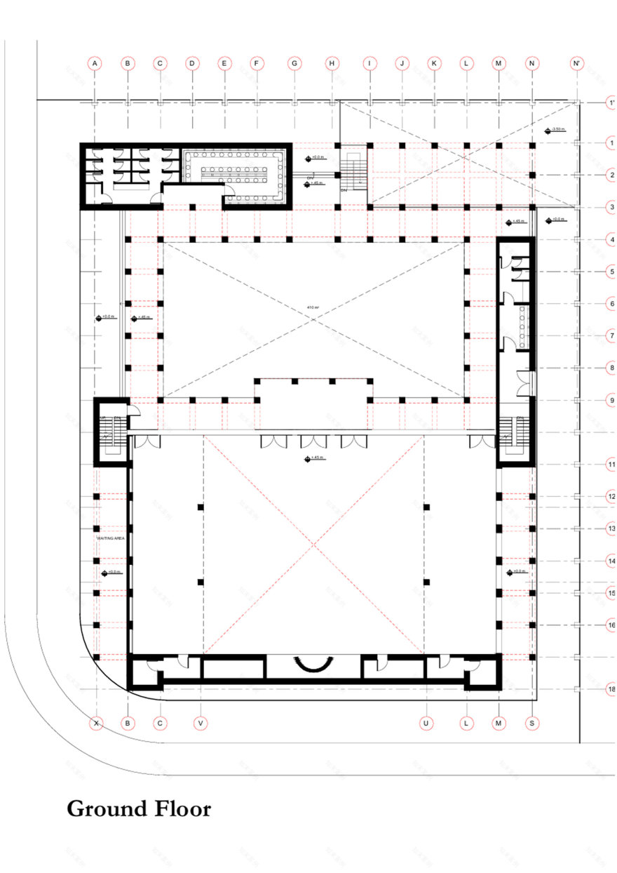
ARCHITECTURAL PLANS
VISUALIZATION SHOTS
HUMAN SHOTS
AERIAL SHOTS
VIDEO
客服
消息
收藏
下载
最近




















