查看完整案例

收藏

下载

翻译
PROJECT OF THE HOTEL COMPLEX "VISTA"
Location: Russia, Sochi
Area: 14 hectares
Year: 2025
Выпускная квалификационная работа, включающая магистерскую диссертацию и проектную часть, посвящена разработке гостиничного комплекса в городе Сочи, расположенного на участке со сложным природным рельефом. Главной идеей проекта стало создание архитектурной среды, гармонично вписанной в природный ландшафт, с сохранением его уникальных особенностей.
Особое внимание уделено адаптации объемно-планировочной структуры к уклонам местности, а также интеграции зданий с окружающей средой — через использование террасирования, природных материалов и панорамных видов.Целью проекта является формирование комфортного и эстетически выразительного пространства для отдыха, которое обеспечивает тесную связь человека с природой, минимизируя вмешательство в ландшафт.Проектируемое пространство находится в городе Сочи по адресу: Хостинский район, Новороссийское шоссе, 13а. Участок расположен в зеленой зоне с активно развитыми дорожными путями. Местность имеет перепад высоты от 10 до 60 метров в сторону моря. Участок и пляж разделяет железная дорога, для преодоления которой был спроектирован пешеходный мост.
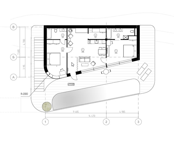
Проектное предложение включает в себя создание основных зон: главное здание с рестораном и гостиничными номерами, 4 типа вилл, здание для персонала, эко-тропа, главная аллея с зоной фонтана, спа-салоном, рестораном, открытым и крытым бассейном, зоной коворкинга и пешеходным мостом со смотровой площадкой. Через весь участок проходит главная дорога, которая выполняет транзитную функцию для пешеходов и персонала и также техническую функцию для обслуживания комплекса. В верхней части участка, примыкающей к дороге, расположены подземный и наземный паркинги.
В главном здании комплекса со 2 по 4 этаж находятся 8 типов гостиничных номеров с выходом в общий сад; на 1 этаже разместились просторная зона ресепшен и зона отдыха, барная зона, просторная видовая терраса, багажная камера, технические помещения и лестницы для персонала.
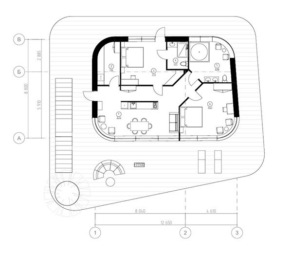
В проекте гостиничного комплекса предусмотрено четыре типа вилл, каждая из которых разработана с учётом особенностей природного рельефа и гармоничного взаимодействия с окружающей средой. Архитектурный облик зданий стремится к балансу между приватностью, комфортом и открытостью к природе. При планировке были выделены основные зоны: просторная гостиная, спальни, ванные комнаты, комната для стирки и сушки одежды, кухонные зоны, а также различные приватные зоны, которые отличаются в зависимости от типа виллы.Данная вилла подходит для проживания маломобильных групп населения, так как вход предусмотрен через пандус. Рассчитана для проживания двух семей. На первом этаже расположен бассейн, который принадлежит номеру, а в номере на втором этаже расположена личная комната с джакузи.Вилла типа 4 является самой большой по площади на участке. В ней могут проживать 4 семьи, по 2 на каждом этаже. Был предусмотрен личный бассейн и эксплуатируемая кровля с садом для прогулок. В каждом номере предусмотрено личное джакузи.
Особое внимание уделено вопросам визуальной интеграции архитектурных объектов в природную среду и поиску конструктивных решений, соответствующих как эстетическим, так и инженерным задачам. Архитектурный образ комплекса формировался с учётом природных особенностей участка: перепады высот, живописные виды на море и растительность стали основой для композиции застройки и объемно-пространственных решений.Здания комплекса ориентированы вдоль рельефных террас, что позволило минимизировать объем земляных работ и сохранить существующую структуру ландшафта. Пространственная организация зданий предполагает поэтапное «раскрытие» пейзажа для каждого типа размещения — от общего обзора с главного корпуса до уединённых, приватных видовых точек у вилл. Архитектура опирается на принципы природной пластичности и горизонтальности: здания вытянуты вдоль склона, а кровли используются как дополнительные смотровые или зелёные эксплуатируемые поверхности, создавая эффект «исчезающих» объёмов на фоне холмов.
Дипломный проект Панамаревой Вероники (рук. доц. Лобанов Е.Ю., конс. асс. Шаманова С.А.).
客服
消息
收藏
下载
最近























