查看完整案例

收藏

下载

翻译
Architects:Greyscale Design Studio
Area:5000ft²
Year:2024
Photographs:Anand Jaju
Lead Architects:Girish Mysore, Magesh Manohar, Ninu Ahluwalia
Category:Houses
Lead Team:Rutvik Rustampur
Engineering & Consulting > Structural:Civitech Design
Engineering & Consulting > Civil:Pro Constructions
Writing:Megala Gurumurthi
City:Bengaluru
Country:India
A residence that Embodies Continuity and Change – In the rapidly transforming residential pockets of Bangalore, homes are quietly evolving. With rising densities and shifting family dynamics, architecture must respond to both spatial constraints and changing lifestyles. Heirlooms in Concrete, a residence designed by Greyscale Design Studio, is one such thoughtful response. The home balances tradition and modernity, offering a design that grows with the family while holding onto memories of the past.
Located in a longstanding residential layout of Bangalore, the site held a home that had been witness to family histories for over two decades. With generational change came shifting needs. Children had grown up, spaces had grown outdated, and lifestyles had outgrown the architecture that once supported them. The family, rather than opting for a piecemeal renovation, decided to rebuild entirely—a bold yet sentimental decision that acknowledged the limitations of the old while honouring its spirit. The brief to the architects was clear yet complex: design a home that was current, functional, and aesthetically aligned with contemporary sensibilities, but do not erase the emotional memory of the place. It had to support the comfort and routines of the older generation while embracing the pace and recluse that the younger members desired.
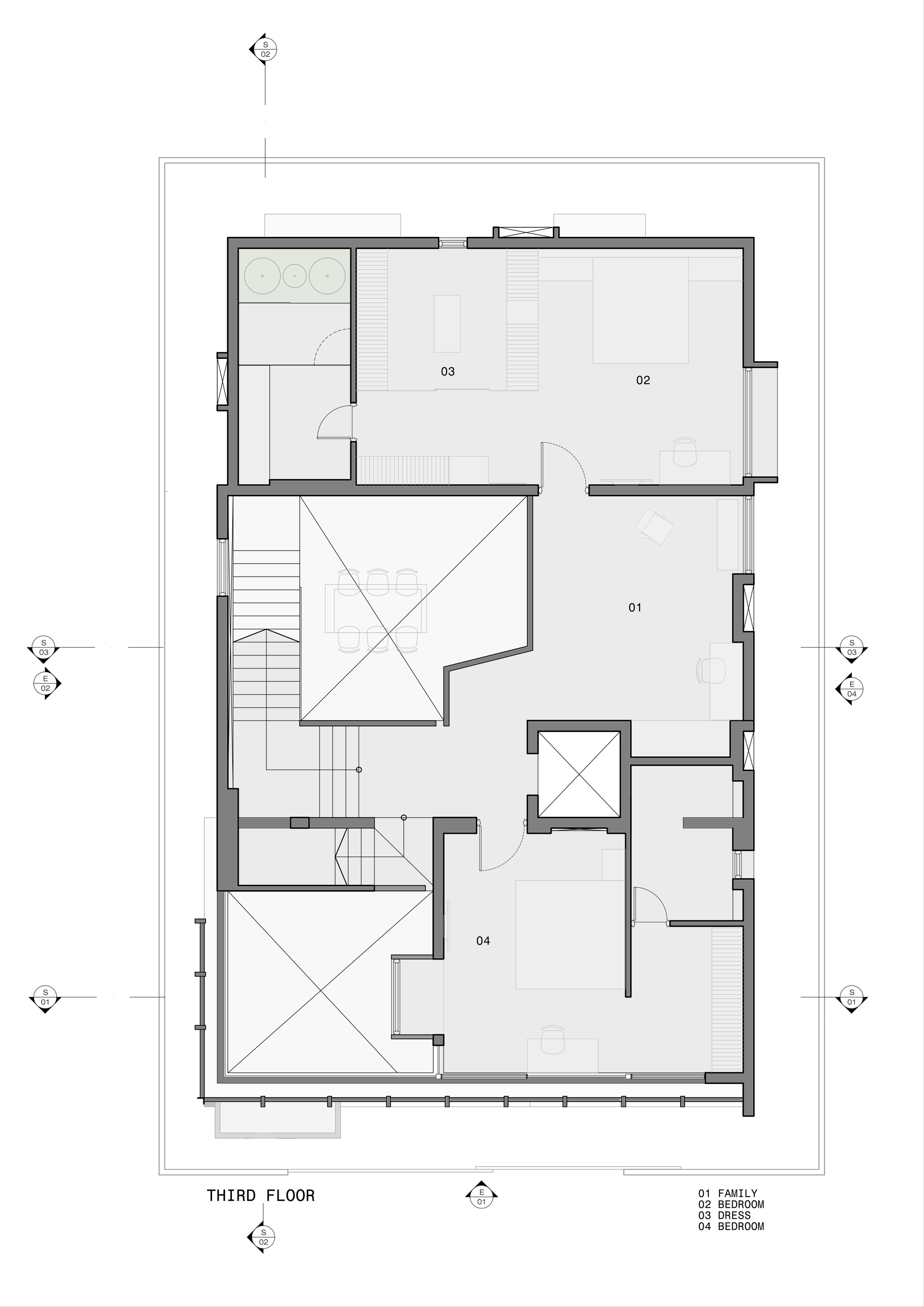
A Twin Home for Two Generations – The design response came in the form of a twin house: the older generation occupying the lower floors and the younger family living above. This vertical separation allowed both autonomy and proximity, enabling the two generations to maintain their lifestyles while staying connected. On the lower floors, proximity to the street and garden offers easy access, sociability, and rootedness—ideal for the elderly parents. The upper floors, in contrast, are introverted and sky-facing, shaped around openness, privacy, and spatial flow. Yet, these vertical divisions do not result in isolated units.
One of the most memorable aspects of the project is the striking enclosing wall to the courtyard. More than a peripheral enclosure, the wall is a sculptural, kinetic surface—both a threshold and a muse in concrete. Conceived from the outset to be both secure and expressive, the client imagined a feature that could function as a fringe while also embodying the design ethos of the home—a wall that speaks as much as it shelters. Initially conceptualized as a series of sloped precast concrete panels, the early iterations felt too static. Through design evolution, the team introduced alternating slopes that create a rhythmic, dynamic illusion. The wall now feels alive—its geometry and shadows constantly shifting with the movement of the sun and the viewer.
Constructed using raw, unfinished concrete panels held in a steel framework, the wall celebrates material honesty. Its imperfections are not masked; they are embraced. Dark matte-finished steel frames provide a crisp outline, while corten steel fins on the upper floor add a layer of warmth and tactile contrast. Practicality is not sacrificed for form. The wall, exposed to rain and weather, includes carefully sealed joints and an internal gutter system to channel water away and preserve visual clarity. The result is a visually commanding wall that transcends its functional role, asserting the home's evolved identity.
The Courtyard: A Breathing Spine – At the heart of the house lies a two-storey-high courtyard, the anchor and pulse of the residence. Courtyards are an age-old typology in Indian domestic architecture, often serving as spatial mediators between inside and outside, private and public, communal and individual. In Heirlooms in Concrete, this central volume reinvents the traditional courtyard as a multi-sensory, cross-generational common space.
A skylight above ensures the space is always filled with diffused natural light. The courtyard connects the living room, dining area, and the upper-level commons, creating seamless spatial integration across floors. It becomes the family's gathering place, a zone for conversation, play, rest, and celebration. A pastel green swing with brass detailing, suspended delicately within this space, becomes a visual and physical bridge between the courtyard and the adjacent seating areas. It is both nostalgic and modern, a symbolic reminder of how the old and the new coexist in this home.
Details and Materiality – From a design standpoint, Heirlooms in Concrete emphasizes restraint, clarity, and craftsmanship. The language is contemporary and minimal, allowing the architecture to act as a backdrop for life rather than overwhelm it. Passive thermal comfort was also a key consideration—cavity walls were incorporated into the envelope to provide insulation against Bangalore's fluctuating temperatures. Skylights, fitted with discreet mesh ventilators, allow warm air to escape from double-height volumes, promoting cross-ventilation and passive cooling throughout the day. Every material, finish, and detail is chosen with a dual intent: comfort and expression.
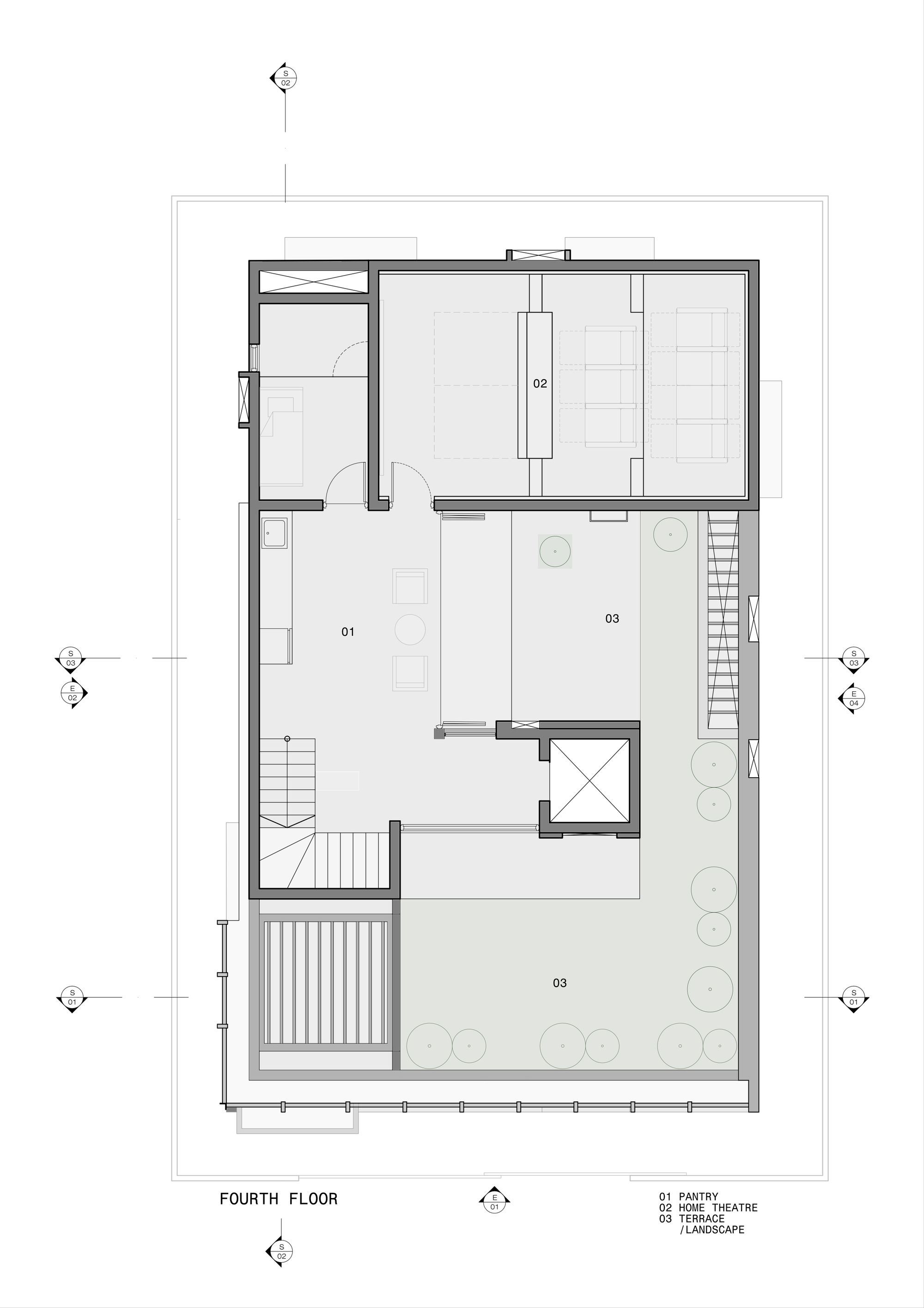
The interiors are defined by soft neutrals, exposed materials, and subtle textures. Stone and oxide flooring grounds the spaces, while timber and metal accents provide contrast and warmth. The living room opens into the courtyard, allowing filtered light to wash over its surfaces through the day. The sculptural staircase that rises from the dining area is a striking element—oxide-finished, curved and quiet in its elegance. As it ascends, it guides movement to the upper level and further to the terrace. The terrace is imagined not as a residual space, but as an active programmatic zone with a gym, home theatre, pantry, and terrace garden. This topmost floor functions as a recreational and contemplative retreat. Designed for leisure and family interaction, it offers expansive views and is wrapped in greenery. Here, architecture provides the opportunity for pause, reflection, and delight. The terrace also houses a solar installation, enabling the home to partially power itself with renewable energy, reducing its environmental footprint and marking a step toward self-sufficiency.
Accommodating New Family Structures – Indian families are in a state of flux. As societal roles evolve and urban lifestyles diversify, the joint family is no longer the norm, yet the nuclear family often finds itself incomplete. Heirlooms in Concrete reflects this ambiguity. It does not impose a fixed model of family living, but instead allows for interdependence within independence. This spatial negotiation—offering connection and privacy simultaneously—is the key to the project's success. Whether it is the shared courtyard, the layered access, or the autonomous upper terrace, each design choice responds to emotional and functional needs.
A Home That Reflects Its Time – At its core, Heirlooms in Concrete is a story about belonging. It is about how families adapt to time while holding onto the threads of familiarity. The architecture captures this with grace—using light, volume, and material to choreograph everyday life. The project resists the temptation to be overdesigned. It does not chase architectural spectacle, but creates spaces that are warm, intentional, and adaptable. It is a reminder that homes are not static; they are repositories of time, memory, and future possibilities.
Building for Legacy and Living – In documenting the evolution of family and form, Heirlooms in Concrete offers a compelling architectural typology for Indian cities. It answers pressing questions: How do we build for the present without forgetting the past? How do we design for individuality without eroding community? How can architecture speak softly, yet profoundly? This residence does all of that. It grows with its users. It holds stories within its walls. It offers introspection and celebration, routine and surprise. It is a model of contemporary Indian domestic architecture that honors complexity, embraces change, and reimagines continuity. In the everyday lives that unfold here, in the shadows cast by the feature wall, in the laughter in the courtyard, and the solitude of the nooks—Heirlooms in Concrete stands as a built testament to the evolving spirit of home.
Project gallery
客服
消息
收藏
下载
最近



























