查看完整案例

收藏

下载

翻译
Однокомнатная квартира в современном скандинавском стиле
Проект разработан в учебных рамках и посвящён созданию дизайн-концепции для однокомнатной квартиры в современном скандинавском стиле.
Задача - сделать пространство функциональным, уютным и визуально лёгким.
Интерьер строится на сочетании светлых тонов, мягких текстур, и акцентных оттенках бирюзового.
Программы: 3Ds Max + V-Ray, AutoCAD, Adobe Photoshop.
Мудборд
В начале проекта был создан мудборд, определяющий настроение интерьера: доминирует белый, светло-серый и древесные цвета, с элементами лёгкой элегантности и акцентами в бирюзово-голубой гамме.
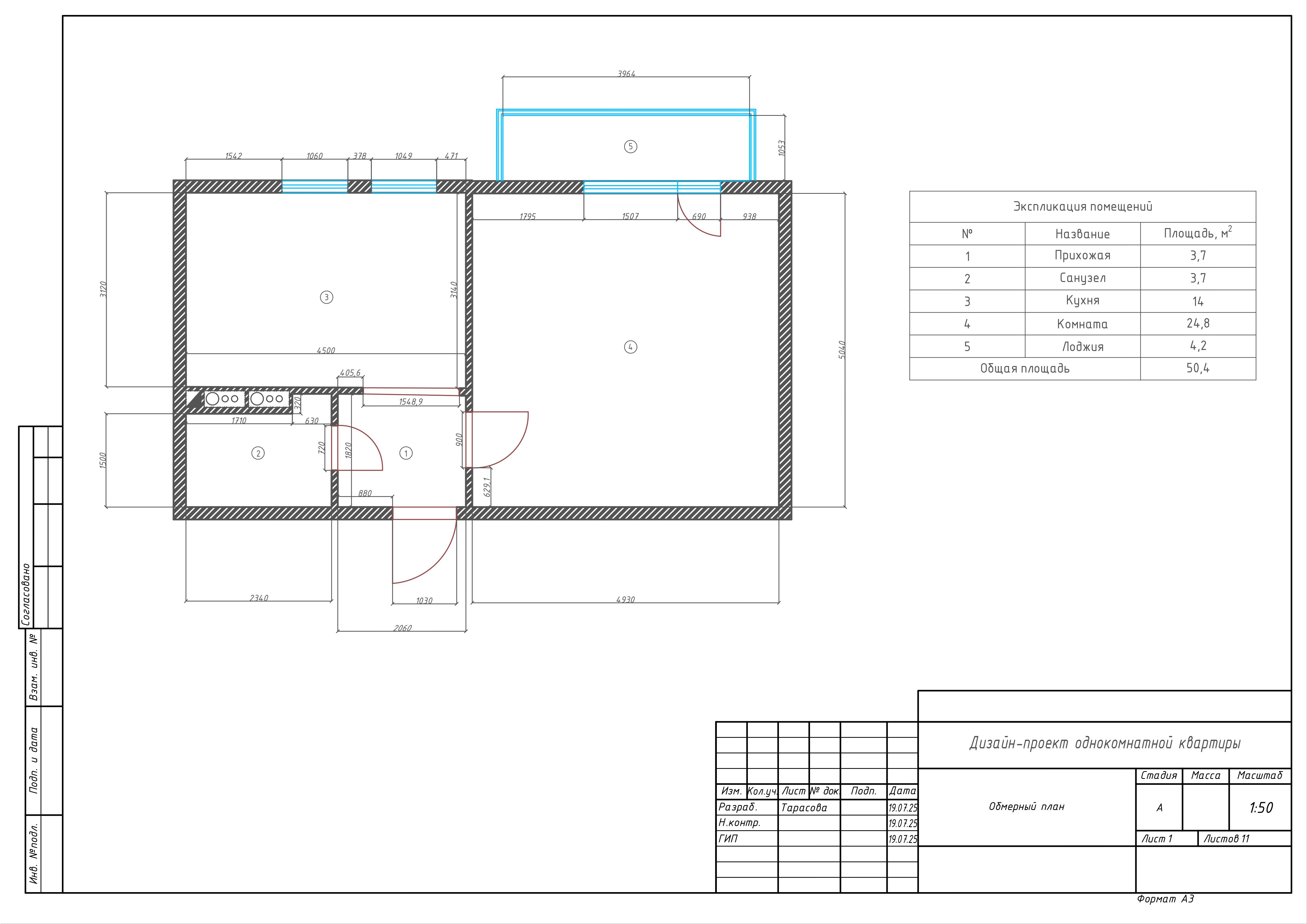
Обмерный план
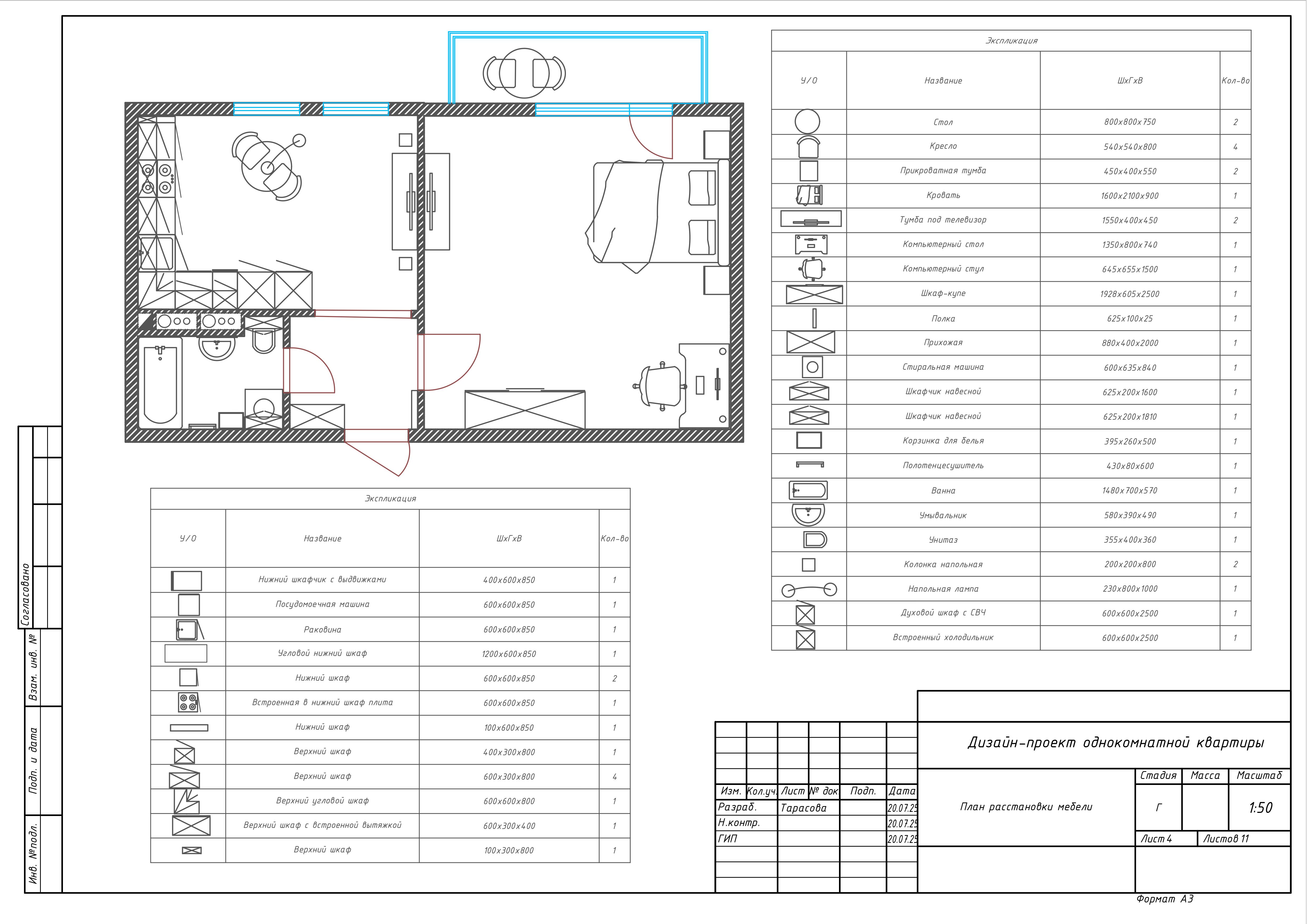
Окончательный план расстановки мебели
План полов
План потолков
План электрики и освещения
Концепт-борд
Подбор материалов
Для создания гармоничного пространства составлена карта материалов: выбор напольного покрытия, отделки стен и потолков, мебели и текстиля.
Визуализация
Кухня-гостинная
Спальня
Санузел
Для визуализации проекта использована программа 3Ds Max + V-Ray.
Интерьер выполнен в светлых тонах, с натуральными текстурами дерева и минималистичной мебелью.
В интерьере предусмотрено несколько сценариев освещения: общее, локальное и декоративное.
Функциональная мебель подобрана с учётом компактности и вместимости.
Проект демонстрирует навыки комплексной работы над интерьером: от идеи и визуализации до разработки всех необходимых чертежей и выбора материалов.
Пространство отвечает современным требованиям к эргономике и эстетике скандинавского стиля.
客服
消息
收藏
下载
最近



















