查看完整案例

收藏

下载
Odin Hills 日本二世谷 Niseko 备受推崇的奢华住宅项目,以卓越建筑美学及与自然和谐共生的理念闻名。
由日本著名坂茂建築設計倾心打造的四间现代小木屋,与二世谷的自然环境完美融合。这些小屋专为应合Odin Hills多变的自然地势而开发,遵循了灵活多样的设计原则,以成就梦想中的亲子度假胜地。
四种设计,四种配置,适用于各种场所。内部空间从 295㎡ 到 615 不等。灵活的室内布局,可定制的户型,精心挑选的材料和配置设施,以至高端家具套装,提供一个全面的平台,打造您梦想中的静谧之所。
6000 别墅▽
左滑查看更多照片→5000 别墅▽
左滑查看更多照片→
4000 别墅▽
左滑查看更多照片→3000 别墅▽
左滑查看更多照片→
如今,该项目再添新作,推出两款全新别墅设计「系列别墅和系列别墅」,进一步扩充其高端住宅系列。
左:系列别墅
右:系列别墅
此项目同样由日本建筑师坂茂(Shigeru Ban)设计,坐落于北海道的壮丽景色之中,背靠羊蹄山(Mount Yotei),将现代设计与日本美学巧妙融合,打造优雅宁静的居住体验。
坂茂(Shigeru Ban)
这两栋最新别墅设计承袭Odin Hills高山设计理念、卓越工艺和恒久风格,巧妙平衡现代风格与实用功能,为追求高品质生活的家庭提供土地住宅一体化购置方案,打造日本最受青睐的奢华山居生活方式。
Part 01
系列别墅——北海道核心地带的多代同堂奢居之选
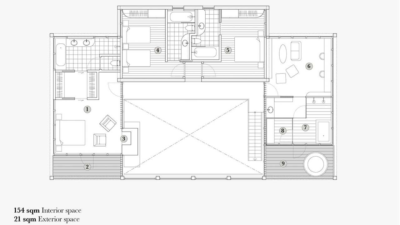
系列别墅集高山风格与灵活布局于一体,设有四至五间卧室,正面尽揽羊蹄山壮丽景致,背倚静谧森林及花园滑雪场(Hanazono Ski Pistes)。此系列注重舒适性与功能性,并充分利用北海道得天独厚的自然环境。全套房设计确保家庭成员在共享珍贵时光的同时,也能享受私密空间。
户型图▽
左滑查看更多照片→首层设有宽敞的双人床卧室,每间均配备独立卫浴,提供极致舒适体验。此外,日式温泉风格的水疗区搭配集成桑拿房,为住户打造理想的休憩之所。
步入二层,开阔的开放式起居空间营造轻松的社交氛围,适合家庭欢聚及宾客款待。二层空间根据个人喜好定制卧室或娱乐室,灵活调整以满足不同生活方式需求。而在户外,定制火炉、烧烤台坐落于私家庭院,让住户沉浸于二世谷的四季美景之中,享受静谧悠然的生活。
Part 02
系列别墅
现代优雅的全新演绎
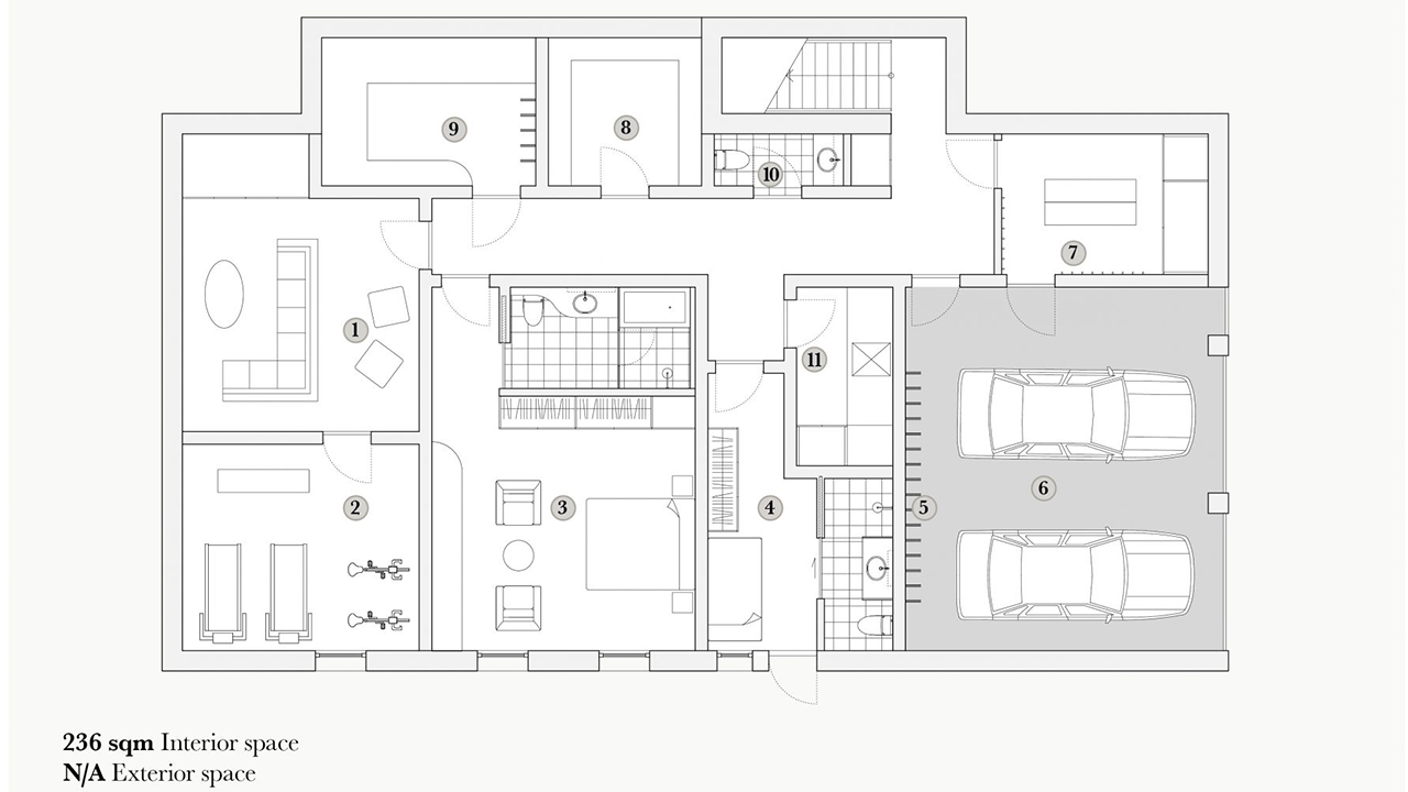
系列别墅采用双层布局,四间卧室,为住户带来卓越的奢华居住体验的同时兼具价格优势。超大落地窗与挑高天花板营造出通透明亮的空间感,呈现羊蹄山的壮丽景致。
户型图▽
左滑查看更多照片→现代化厨房、巧妙的空间规划及高端饰面,兼具实用性与美感,满足对生活品质有更高要求的住户。
为提升居住体验,系列别墅提供多种个性化定制方案,满足不同生活方式需求。阁楼卧室为住户提供更加私密的休憩空间,而专属篝火区与BBQ露台,则是户外休闲及社交聚会的理想场所,让住户沉浸于二世谷的宁静自然之中。每个细节均体现Odin Hills对奢华生活的极致追求,融合卓越功能性与精致美学,打造无与伦比的居住环境。
Part 03
私人会所
正念奢华与身心疗愈的和谐融合
作为 Odin Hills 社区的一部分,住户可尊享 Odin Hills Clubhouse 的高端配套设施——全年无休的四季活动体验,涵盖丰富的室内外项目。
ODIN 私人会所是 Odin Hills 社区的焦点,是提供一整套服务、休闲娱乐和活动项目的大本营。会所透过开放空间的方式连接每一个功能区,确保充足的自然光线,沿用天然物料的设计风格更吐露巧思,为空间注入历久弥新与质朴之美。
会所内设有康养空间,包括公共及私人日式温泉、冷泉池、可饱览二世谷壮丽景观的恒温泳池、世界级健身房、多功能空间,以及全天候营业的餐厅及酒廊(Dining Lounge - Bar),让住户在温暖的壁炉旁放松身心,享受轻松惬意的社交时光。
此外,Odin Hills还提供全方位管理服务,包括物业维护及专属礼宾服务,让住户尽享无忧居住体验。目前,两种全新设计别墅已正式开放购买。
客服
消息
收藏
下载
最近
















































